您好,欢迎访问轩鼎房屋图纸网,轩鼎建筑为您提供新农村房屋设计图、别墅设计图纸以及别墅定制设计与咨询服务。
 
 
  热门搜索:自建房 别墅设计 房屋设计图   
网站首页 图纸大全 定制设计 作品展示 建房图文 联系我们
一层房屋图纸
二层房屋图纸
三层房屋图纸
四层以上图纸
双拼房屋图纸
其他建筑图纸
 
 
 您的位置:首页 ->> 建房图文 ->> 1款带阳光房的别墅图片,沐浴阳光超享受,满满都是幸福感
 
 

1款带阳光房的别墅图片,沐浴阳光超享受,满满都是幸福感

发布时间:2022/7/6 17:20:35 点击数: 2270次 

阳光房营造出的灵性空间,将休闲、遐思、会客、娱乐、融为一体,让每一位拥有别墅的朋友,都能从闭塞的空调房里走出来,也增加了家人与自然的交流机会。

本期精选一款带阳光房的别墅,夏日看雨景,冬日晒暖阳,回家建一栋,潇洒似神仙。


别墅全景图:


3611f48da6bc4e77a2f921181c7038f6_magic.jpg


1、别墅楼层:三层

2、主体毛坯参考造价:71-81万

3、占地面积:279平方米

4、建筑面积:709平方米

5、开间19.2米,进深16.8米

6、异型框架结构,建筑高12.6米


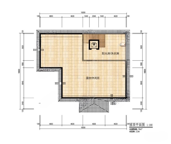
楼层平面图:



 
· 最适合养老的别墅就是这款,错过...
· 桐木可以做家具吗(桐木板材的优...
· 三层自建别墅小楼房屋设计图纸(...
· 采用大量木质结构的二层中式别墅...
· 建房最重要的是施工图纸,更重要...
· 农村房屋住宅风水禁忌与破解(农...
· 农村160㎡双层港风别墅设计,两...
· 农村别墅设计,外观美观实用的二...
  关于我们 网站事务 帮助中心
客服热线:400-079-6579
客服QQ:10928711 10928755 10928799
地址:山东省潍坊财富大厦1801
 

预定须知
顾客必读
配送方式

 


Copyright 2016 www.lemeizhai.com All Rights Reserved ICP备案序号:鲁ICP备2026012448号-1
轩鼎房屋图纸 电 话:0536-3385581 3385582 传 真:0536-3385581 地 址:山东省潍坊财富大厦1801


keywords:房屋设计图 房屋设计图 农村房屋设计图 农村房屋设计图 建房图文