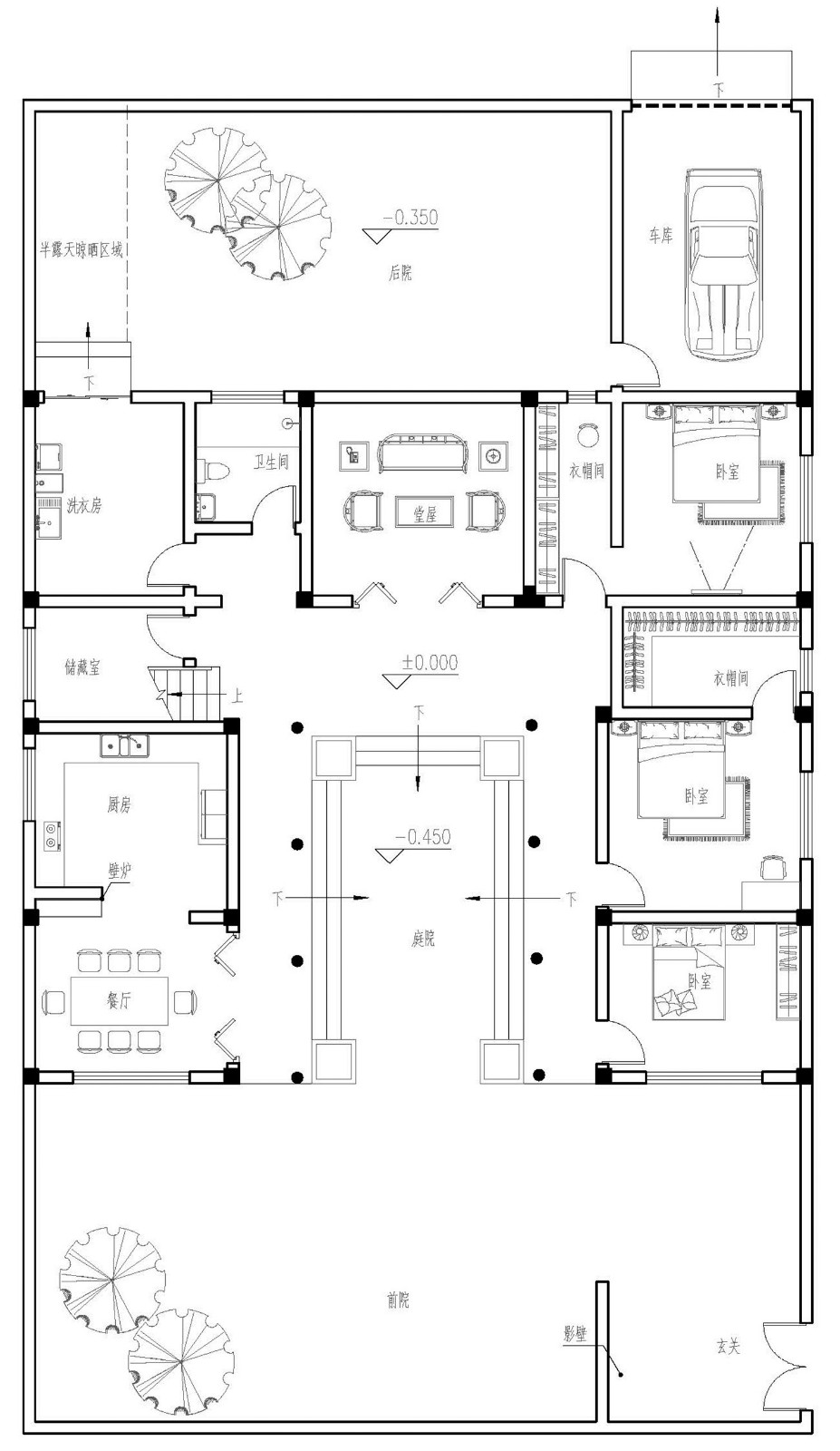
家住山东的郭总特别喜欢二层中式="://www.lemeizhai.com/Picture.asp?PicClassID=88" target="_self">别墅设计,就找到了公司的设计师刘工,设计师根据郭总的要求,设计了倒凹形的二层别墅,这款别墅还有前后院和车库,采用大量木质结构,门窗是传统的木门窗,地面硬化处理干净好看。

别墅层数: 二层
别墅风格: 中式
占地面积:358㎡
开 间:16m
进 深:22.4m
建筑占地:16m×22.4m
建筑面积:326㎡
主体造价:45.0~50.0万
建筑结构:其他结构


主体设计:

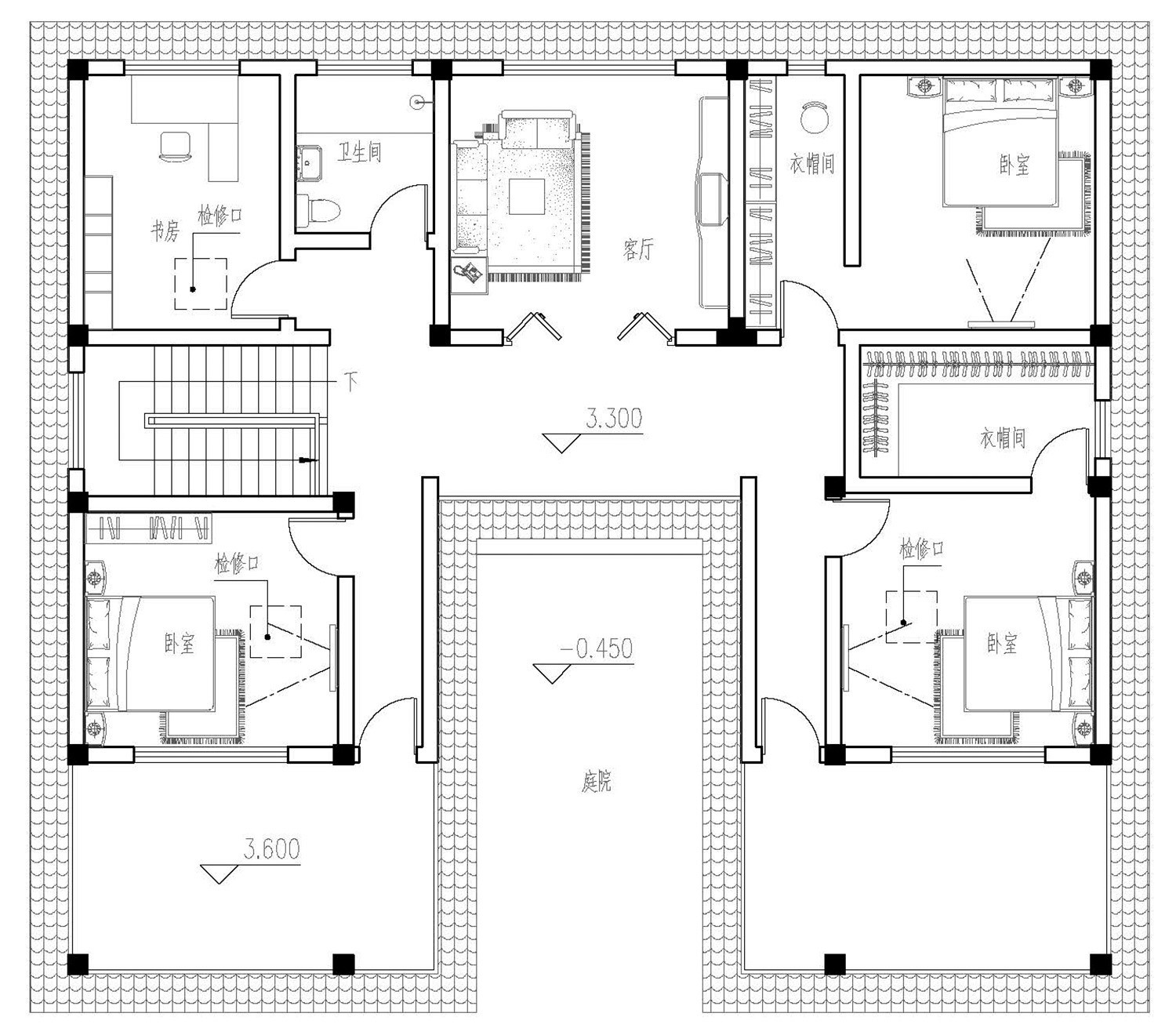
客厅、餐厅、厨房、卧室、公卫、阳台、露台。

。
="://www.lemeizhai.com/index.asp" target="_self" style="font-size: 24px; text-decoration: underline;">转载请注明出自轩鼎别墅设计:://www.lemeizhai.com/index.asp