推荐: 3定径套="://lemeizhai.com" target="_self">新农村3层别墅的房屋建设修订图
户型一
户型是三层新农村的一户别墅,占地114平方米,总建筑面积305平方米,总占地194平方米,建筑高度10.8米。




一楼有客厅、餐厅、厨房、老人寝室、厕所、淋浴房,外面有医院场所,有洗衣池、沼气池、家禽圈
二楼设有卧室、起居厅、书房、厕所、晒台
三楼有下一间卧室、客房、小盆友房间的书房、厕所。
本户型由平屋顶和坡屋顶组合而成,外观、形状简洁,色彩明亮,房间尺寸设定合适,空间利用率高,适合垄断小院建设。
户型二
三楼农村自营别墅设订图纸录音带阁楼和停车库
图纸概要:
建筑占地面积:门面13.32米*深13.72米=182.75平方米
建筑高度:9.9m;
建筑层数:三楼有阁楼
屋顶形式:斜面屋顶
结构形式:混合结构
设定修订功能:





一楼是卧室、厨房、客厅、餐厅、厕所和汽车房
二楼是三卧两卫、屋顶平台
三楼没有修订房间用途
图纸格式计程仪:图纸包括一层、二层三层和屋顶平面图,包括立面、侧面、剖面图完整结构图、一至三层结构图、屋顶结构图、大样本图和节点图。
户型为单家独院式,占地面积13米*13.7米,建筑高度9.9米。 一楼设有客厅、餐厅、厨房、卧室、厕所、停车库的二楼设有三卧两卫、屋面台的三层房屋用途采用可自由修改的户型屋顶,采用混合结构,外观、造型简洁、色彩明亮,房间尺寸修改合适,空间利用率高
32.8万
户型三
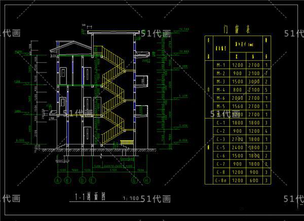
此表格信息如下
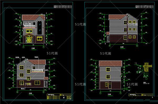
(1)效果图1部分
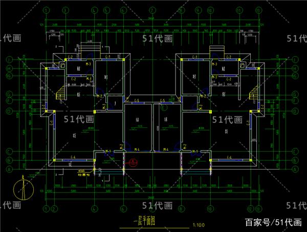
(2)各层的平面设定修正图
(3)各立面图
(4)剖面图(包括楼梯设置修订图)
(5)地梁平面图、按穿山鼠开关梁平面图;
(6)构造设定修订说明。



户型为单家单院式,建筑面积282.35平方米,总高度12.8米。
一楼设有老人房、储藏室、厕所、厨房、客厅、餐厅、楼梯间
二楼有卧室、衣帽间、厕所和阳台
三楼设有卧室、厕所、棋牌活动室和屋顶花园。
户型外观造型简洁大方,房间尺度设定适宜,空间利用率高,分区功能简洁合理,设定修订可靠寿命50年,耐火等级为二级的屋面防水等级二级抗震强度为6度。
转载请注明出自轩鼎别墅设计="://lemeizhai.com" target="_self">://www.lemeizhai.com