带车库的农村二层别墅,有5间、3间,很实用

城市大厦林立,人们的居住空间被压缩,很多人都想回到家乡建别墅,家乡的爱车停车安全成为大家考虑的第一个问题,带车库的乡村别墅成了新的风俗,其次小编介绍一些带经济实用车库的乡村别墅
带车库的欧式别墅
浪漫的田园风格

整体建筑外观时尚雅致
独立的车库设计,简单实用,崭新独特
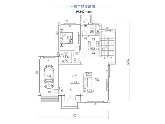
图纸的详细情况
结构形式:砖混结构
建筑开间: 17.7m米
建筑深度: 12.6m米
占地面积: 213.58
建筑面积: 256.58
主机成本: 20万~22万
(根据各地区的施工详情,价格有所变动)


整体布局时尚大气,2厅,4卧,2卫,1娱乐室
一个衣帽间、一个储藏室、娱乐一体化
二楼有带车库的凉亭,车库别墅
整个建筑都错了
弧形门庭,八角凉亭
高雅高雅,表现出卓越的品味
图纸的详细情况

结构形式:砖混结构
建筑开间: 13.5m米
建筑物深度: 18m
占地面积: 234.52
建筑面积: 527.81
主机成本: 42-52万
(根据各地区的施工详情,价格有所变动)

整体新颖独特,3厅、5卧、4卫、1休闲区
让住的人静静地听见花落,坐着云云清爽,很不舒服
带三层车库的简欧洲别墅
浮雕设计可以营造出欧式奢侈的氛围
多窗口设计明亮透明
天很亮,冷中透过几分钟的烟花
图纸的详细情况
别墅层数: 3层

结构形式:框架结构
建筑开间: 12.2m米
建筑深度: 12.5m米
占地面积: 135.75
建筑面积: 350.77
主机成本: 25-35万
(根据各地区的施工详情,价格有所变动)



整体布局水平丰富,3厅、4卧、3卫、1车库
在外面选的露台,满足家人种花草,闲聊坐着,十分安静舒适
在别的车库别墅享受
二楼美丽的简欧别墅

主机参考成本: 22-32万
带三楼豪华摊位的欧式别墅

主机参考成本: 58万
带屋顶庭园的三层别墅

主机参考价格: 32-42万
转载请注明出自轩鼎别墅设计="://lemeizhai.com" target="_self">://www.lemeizhai.com