古色古香的一款="://www.lemeizhai.com/search.asp?SearchType=Software&imageField.x=28&imageField.y=38&SearchKey=%D0%C2%D6%D0%CA%BD" target="_self" style="font-size: 24px; text-decoration: underline;">中式别墅设计推荐给大家,这款别墅采用现代仿古工艺,虽然没有真正古宅的样子但丝毫不差,古韵还是有的。别墅主体最高预估价54万左右,砖混结构二层,围栏廊道的设计不怕雨淋,还可以加装玻璃封住,设计有偏房作为储存室。

别墅层数: 二层
别墅风格: 中式
占地面积:116㎡
开 间:14m
进 深:8.3m
建筑占地:14m×8.3m
建筑面积:355㎡
主体造价:49.0~54.0万
建筑结构:砖混结构


主体设计:

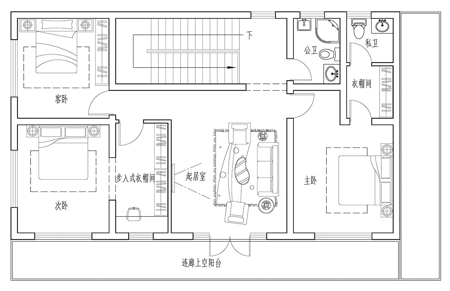
客厅、餐厅、厨房、卧室、公卫、阳台、露台。

。
转载请注明出自轩鼎别墅设计:://www.lemeizhai.com/index.asp