家住海南的刘总定制了一款景观三层别墅,这款别墅在刘总老家,平时放假就到别墅里放松放松。这款="://www.lemeizhai.com/Picture.asp?PicClassID=91" target="_self" style="font-size: 24px; text-decoration: underline;">三层别墅设计中间是镂空设计,刘总喜好树木,别墅内部有树,顶上有花园,住在这种别墅里心情肯定不错

别墅层数: 三层
别墅风格: 现代
占地面积:133㎡
开 间:11.9m
进 深:11.2m
建筑占地:11.9m×11.2m
建筑面积:322㎡
主体造价:43.0~48.0万
建筑结构:框架结构


主体设计:

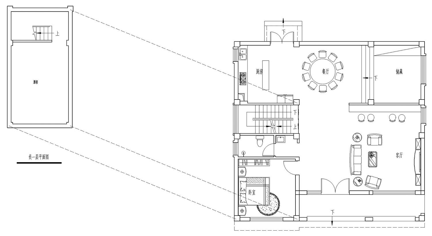
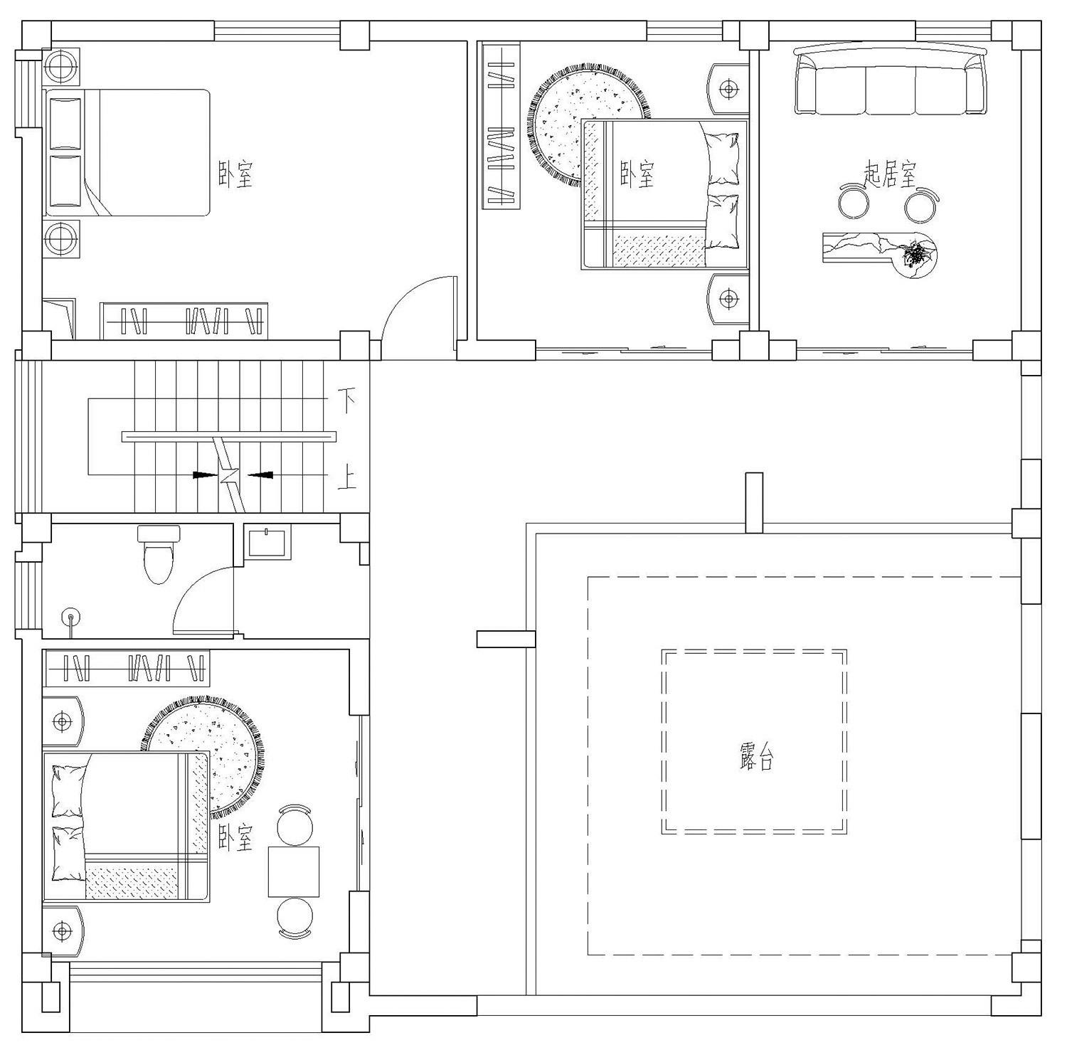
客厅、餐厅、厨房、卧室、公卫、阳台、露台。



。
转载请注明出自轩鼎别墅设计:://www.lemeizhai.com/index.asp