今天给大家推荐一款非常适合在农村建造的现代别墅设计,这款="://www.lemeizhai.com/Picture.asp?PicClassID=91" target="_self">三层别墅设计主体造价预估最高50万。别墅的的造型非常现代,外贴瓷砖搭配木质结构与真石漆,别墅看起来非常舒适,在农村建一栋这样的别墅别提多风光了!

别墅层数: 三层
别墅风格: 现代
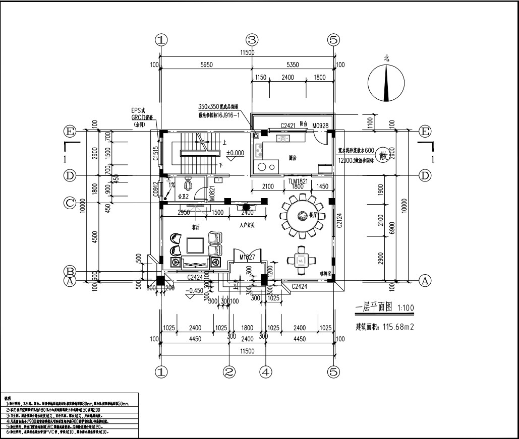
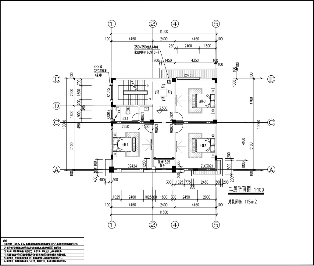
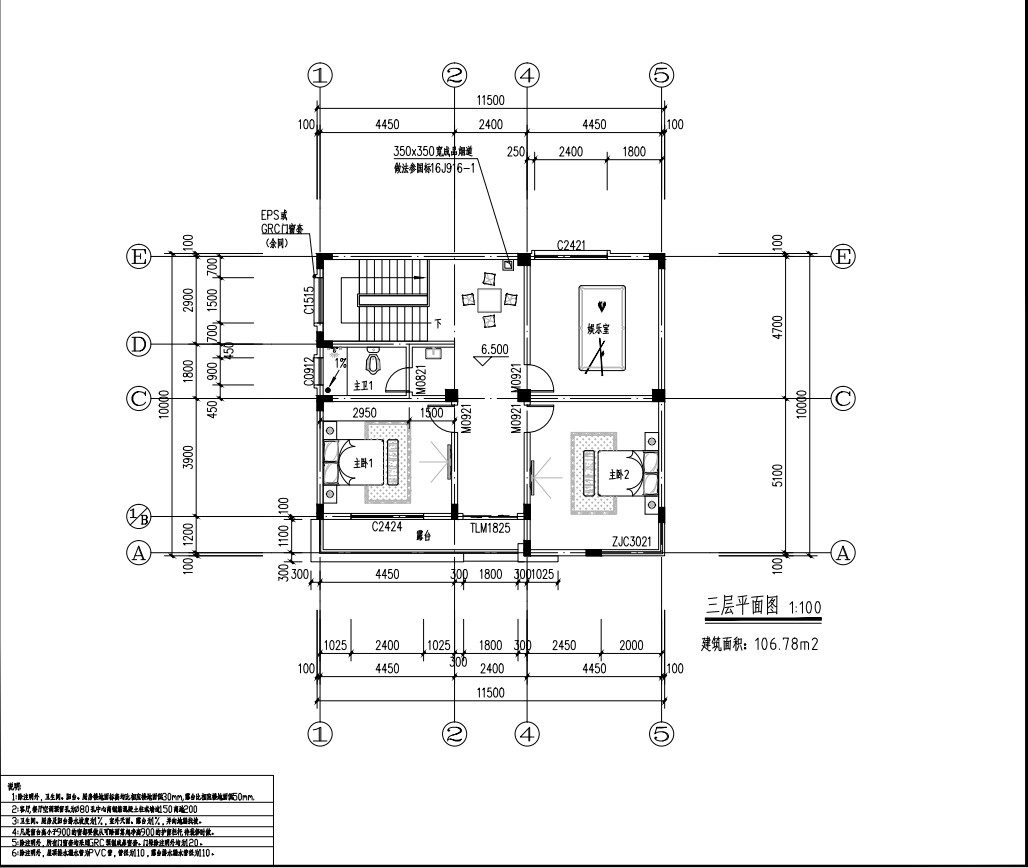
占地面积:115㎡
开 间:11.5m
进 深:10m
建筑占地:11.5m×10m
建筑面积:452.46㎡
主体造价:45.0~50.0万
建筑结构:框架结构


主体设计:

客厅、餐厅、厨房、卧室、公卫、阳台、露台。

。

转载请注明出自轩鼎别墅设计:://www.lemeizhai.com/index.asp