自建别墅最重要的是价格可控,在一个款式要适合具体的地貌与环境,你可以到别墅自建网站,咨询具体信息细节。看惯了花里胡哨的别墅,那就自己建一栋别墅,有了想法就马上实现,行动起来,晚了可就没机会了趁着政策还宽松,建一栋实用大气的好别墅很有必要。
这款别墅设计得当,价格还可控,非常适合我们普通收入的人群自己建。二层满足大多数家庭的需求,不需太多或太少。
外墙搭配


南向透视

西南透视

东南透视

南向鸟瞰
不大的地基,两层的设计,更适应这类风格。体量处理高低错落,进退有序,整体视觉上高宽比会显得更和谐,也使得立面更加生动、活泼
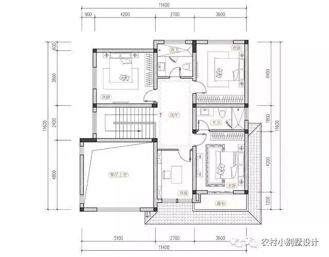
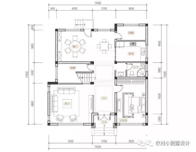
平面图
一款平面户型,功能组织总是有得有失,只有根据每个用户不同的生活方式,不同的观念认识,找出主次点来平衡,从而获得满意的设计


转载请注明出自轩鼎别墅设计://ww.lemeizhai.com/