这样,="://lemeizhai.com" target="_self">农村自建房屋就有了庭院和风景,生动活泼,房屋分散,层次丰富
房子的定义是我们居住的地方,它能给我们带来温暖的家和舒适的港湾。这里有我们成长的点滴,也是我们承载许多美好回忆的地方。本案是一个全新的中式庭院别墅设计。我们希望在我们新建的房子里扎根传统文化,用独特的建筑语言描述现代生活方式。房子结合了当地的风俗和现代的生活方式,并通过“房子”和“庭院”的互动创造了一个高质量的生活环境。
鸟瞰图




作为农村地区的自建房屋,它不一定需要太多的奢华,而是生活的温暖和舒适。我们把客厅和庭院空间以“花园”的形式连接起来,这样我们在院子里行走的时候随时都能看到不同的风景,生活变得有趣起来。
自建房屋信息:
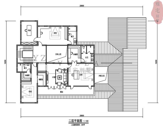
房屋宽长:19.2米x 28.8m米
楼层数:1 2层
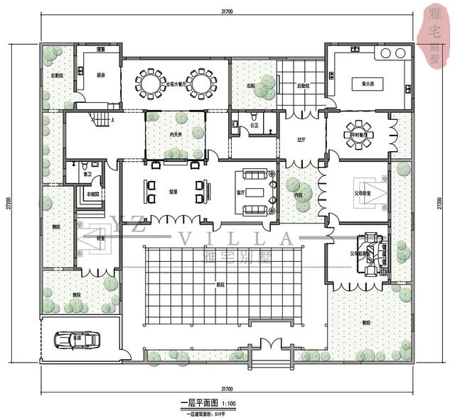
该房屋总建筑面积:660平方米
该房屋建筑面积:420平方米
房屋结构:框架结构
主体建筑为两层,局部建筑为一层,通过走廊串联成几个不同大小的生活场景庭院。如今,越来越多的人开始喜欢中式住宅,这也是我们对传统文化的接受和热爱。中式住宅不可缺少的是建一个庭院。有了院子,就有了我们活动的地方,在这里我们可以玩耍、娱乐、放松、观看和风干。
布局图:


与整体布局相比,住宅用地相对较方,易于使用。房子位于南边,东边两层,西边一层。室外阳台相连并转换成不同的庭院空间,整体上显得自然而活泼。同时,传统的天井与建筑融为一体,使室内空间充满绿色。
功能布局注重动态和静态分区。结合家庭成员的使用,接待区布置在西侧主楼,东侧首层为父母单独居住,既保证了父母住所的私密性,又保护了他们不受打扰。
其他角度的场景:




转载请注明出自轩鼎别墅设计="://lemeizhai.com" target="_self">://www.lemeizhai.com