回到乡下,用电梯、白色墙壁和灰色瓷砖建造一座="://lemeizhai.com" target="_self">农村中式的别墅
别墅参数:
土地使用面积:23.9x25.5米
建筑层数:3层
建筑面积:232平方米
总建筑面积:550平方米
建筑结构:框架结构
空白成本:60-70万
室内:5个房间,3个大厅,2个厨房和5个浴室
南鸟瞰


北侧鸟瞰图


这座别墅位于湖南省长沙市的农村地区。北面和南面是村子里的主要道路。建筑从北面进入住户,在南面打开,形成一个观景庭院和一个生活庭院。建筑采用新中式风格,房屋布局与景观相结合,营造高品质的居住环境。室内主要房间为套房,注重室内品质的营造。公共空间主要是开放的,从地板到天花板的门窗被用来将室外景色引入室内。
北侧鸟瞰图
平面图:



一层平面
一楼北侧的阳台进入住户,前院空间作为菜地和晾晒处。半室外门厅设在家中,一楼有独立电梯。这种生活方式是中西厨房的形式。家里通常有很多客人,而且餐厅很大,面朝南,这使得观赏效果更加舒适。客厅是独立的,与室外休闲平台相结合,使用更加方便。
二楼平面
二楼有三间套房,东、南侧有一些生活露台。
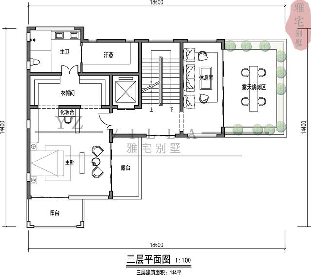
三层平面
三楼是主卧空间,相对独立,有大衣帽间、蒸汽室、休息室、露台烧烤区,露台和阳台朝南。
其他角度效果:




转载请注明出自轩鼎别墅设计="://lemeizhai.com" target="_self">://www.lemeizhai.com