现在有很多人都在农村建房,因为农村环境好,在加上城里买房压力大是导致人们到农村建房这原因。农村自建房不需要多么奢华只要实在实惠就行,实在实用是自建房的标准,在农村建房子就选适合农村地区的房子,只有这样,房子建出来才漂亮, 今天小编推荐的这3款自建房,占地110平,不仅外观让人觉得舒适大气,室内布局也是不可多得的好户型,主要是造价也不会太高,比起城里买房要便宜太多,建了你指定不后悔。
户型一



开间:10.8米;
进深:10.1米
占地面积:109.28平方米
建筑面积:249.11平方米
主体造价:25万—30万
这套别墅主正面造型大气简单,其它三面墙体也做了别有新材的文化石点缀,耐看有经典。整体的颜色搭配沉稳肃静,烘托出别墅高档的格调。
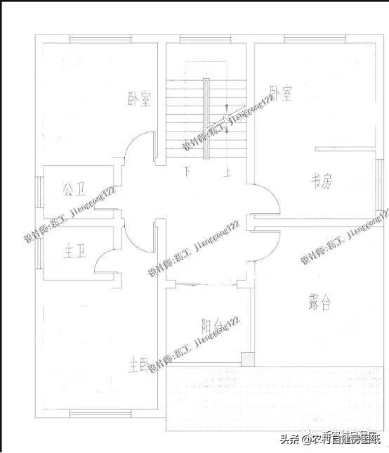
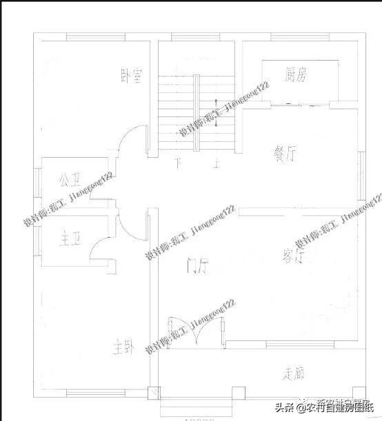
进门有一个门庭,接人待物可以过渡;北面设计厨房、卫生间和一间卧室。高质量的生活少不了丰富的配置,二层两间朝南主卧都带有内卫,书房的设计更是贴心实用。
户型二
开间:10米;
进深:11米
占地面积:115.5平方米
建筑面积:202.44平方米
主体造价:22万—26万



这是一款热情洋溢的欧式别墅,洋红色的屋顶层次感丰富,和门檐相互呼应,成了一道亮丽的乡村风景。牙黄色的真石漆涂料,搭配原汁原味的红砖,配上大气高挑的门庭,无处不在的设计感小心机。
农村的房子既要美观还要实用舒适,不仅有满足基本生活的客厅、餐厅、厨房、卧室、卫生间等,还提高了居住品质,一二层的主卧都带有内卫,同时设计了增加活动空间的走廊、阳台、露台等,让农村生活更加丰富和谐。
户型三
开间:11米;
进深:10米
占地面积:109.26平方米
建筑面积:314.084平方米
主体造价:32万—38万




这一套为三层欧式自建房,深色调的外墙涂料搭配莫兰迪色屋顶,沉静有气场,房屋四面都设有独立采光窗,可以有效提升室内和光照通风,内部空间设计更是一应俱全。
一层设计有堂前、客厅、洗衣房、厨房、卧室、餐厅、卫生间。进大门是堂前,可以摆放神位;为了让农村生活更加便利,特意设计了洗衣房,卧室靠近卫生间,十分便利。二层设计三间卧室,可以满足农村大家庭的居住需求;活动室位于二层中间,方便家庭成员交流,还有餐厅功能。小阳台的设计不仅提升书房的采光,居住舒适性更加强烈。二层的卧室可以自主也可以用来待客,露台可以根据情况晾晒、摆放花草,或者设计成户外活动室。想一想为什么人们都会说老三会过日子呢?
转载请注明出自轩鼎别墅设计:://www.lemeizhai.com/