一直难以理解我们的农村朋友,几十万的房子都准备建,然而出千元房屋设计平面图的时候却犹豫不决呢?后来才知道,他们不是不舍得花这个设计钱,而是对于自己的房屋外形完以及房屋设计平面图全没有设想,不专业,就算有想法也不知道从哪着手,只能从网上找些房屋设计平面图先参考参考,下边这几套房屋设计平面图,非常大气上档,回村里建上一栋,那是非常有面子的:
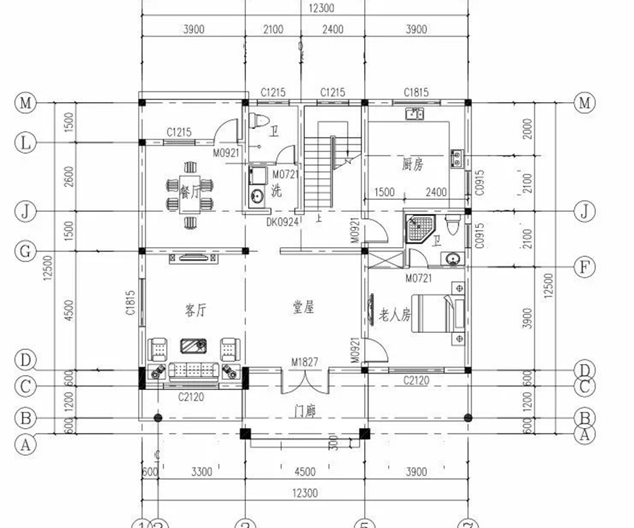
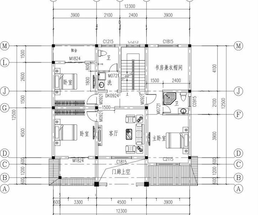
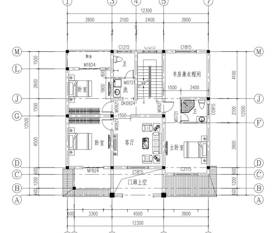
房屋信息:
开间:12.3米
进深:12.5米
占地面积:153.75平米




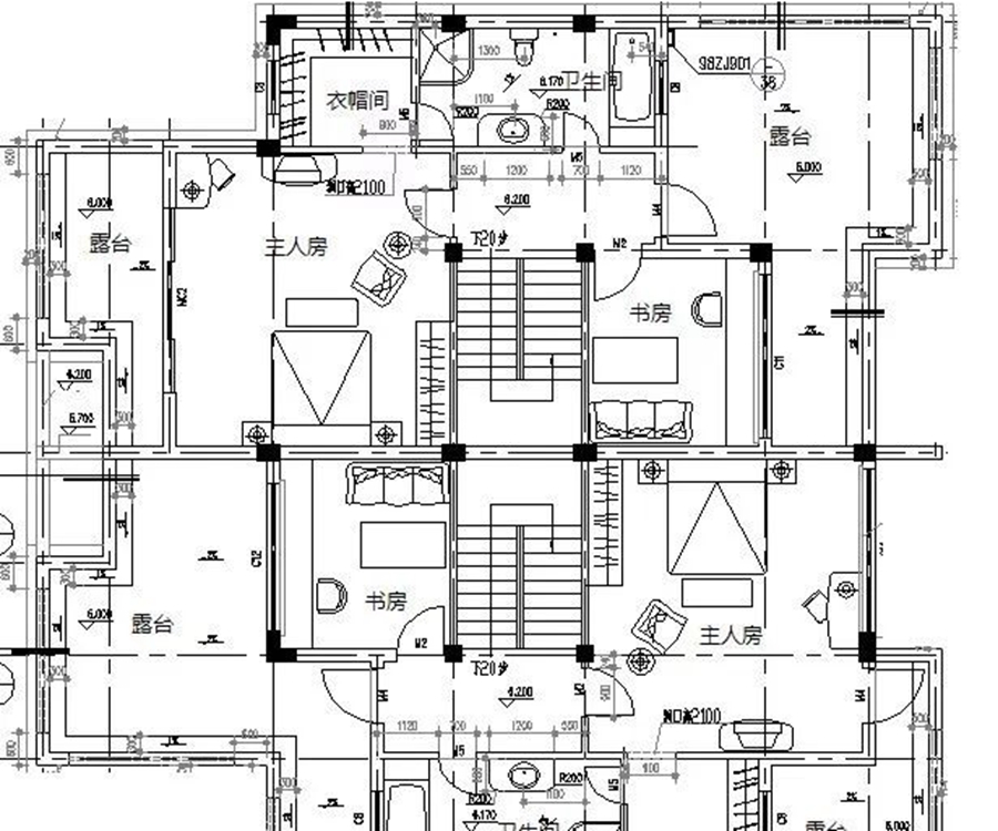
房屋信息:
开间:16.3米
进深:双拼15.8米
占地面积:236.7平米




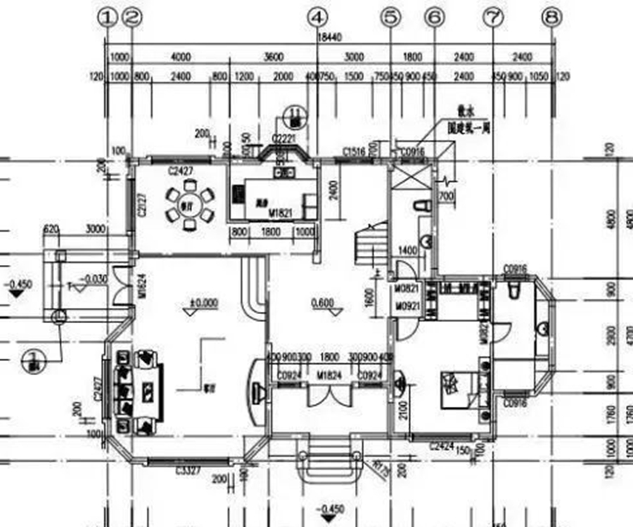
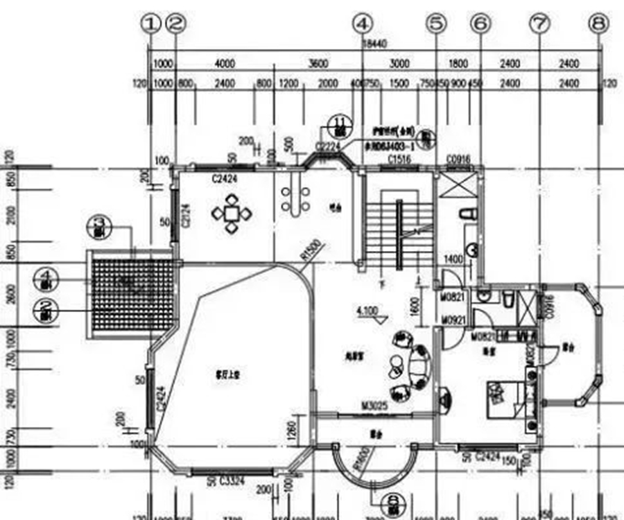
房屋信息:
开间:18.44米
进深:12.5米
占地面积:200.26平米




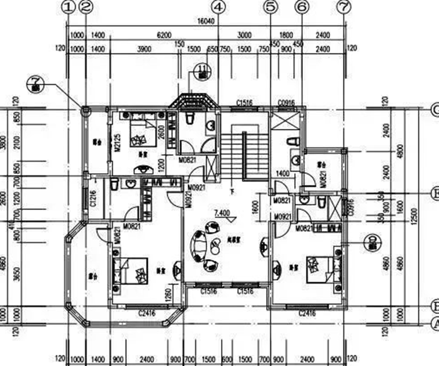
房屋信息:
开间:13.6米
进深:11米
占地面积:155.7平米




这几套房屋设计平面图,你相中那款了呢,快快收藏起来吧