
80平米新款农村二层楼房设计图,黄色的真石漆外墙,清新有活力,一层门庭旁的门柱和二层阳台上的方柱增强了别墅立面的立体感。由于是小户型,所以设有前后门,增强室内的采光。户型布局简单,适合小家庭建造。
开间: 8.1 米进深: 9.8米 占地面积: 80平方米 结构形式: 框架结构

一层:客厅、餐厅、厨房、老人房、卫生间

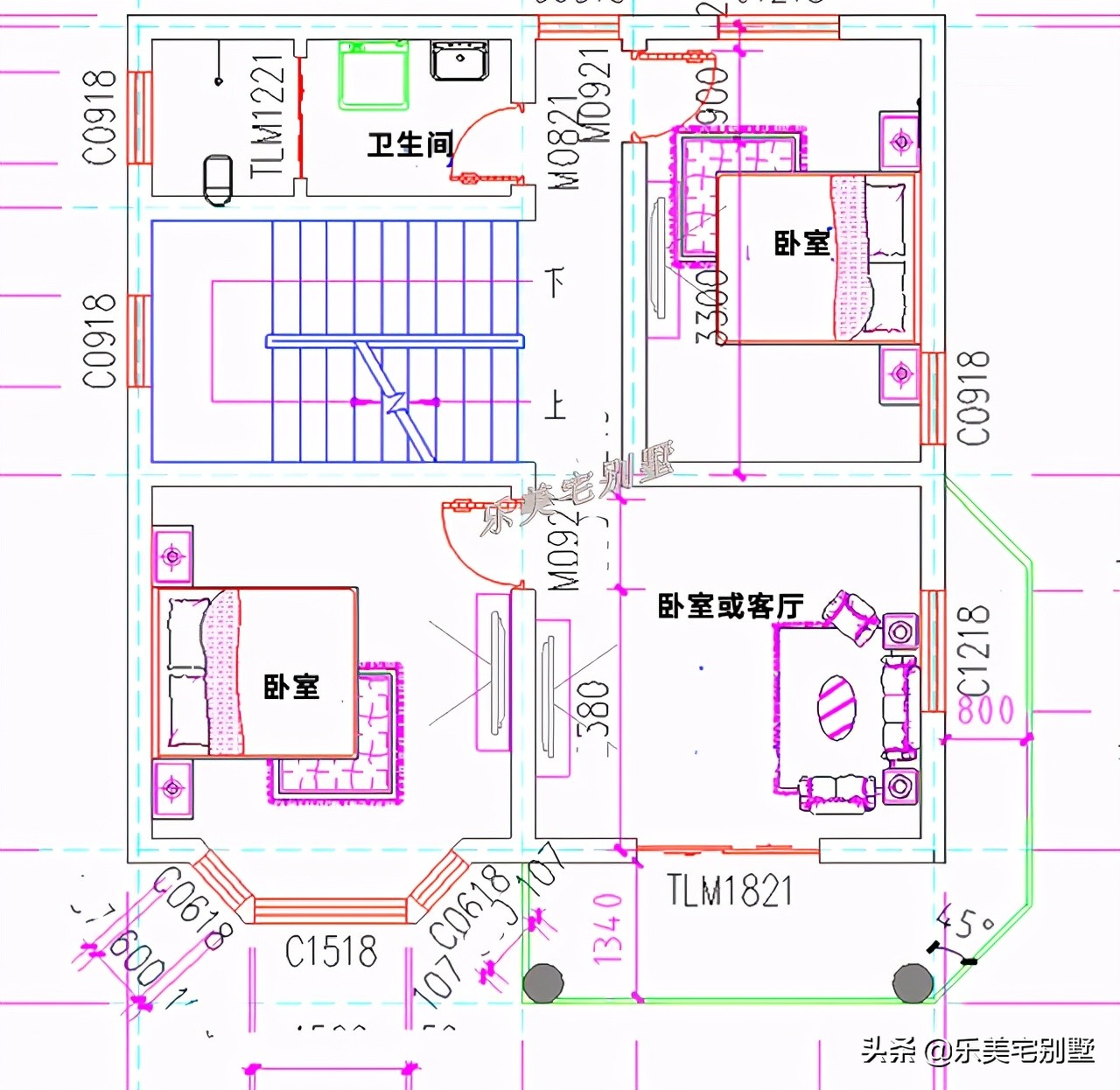
二层:卧室或客厅、2卧室、卫生间

此栋农村二层楼房设计图,一层和二层外墙面经典二段式设计。分别是用面砖和真石漆装饰,斜屋面处配红瓦。一层设有两处卧室,一处老人房,一处次卧,客厅后面则是封闭式厨房,避免油烟散出,宽敞的餐厅,让室内更加的通透,卫生间出于客厅和厨房中间,合适使用了有限的空间;二楼有三间卧室,中间为多功能厅,可以设为客厅、书房或棋牌室等。
开间:13.3米 进深:11.0米 占地面积:146平方米 建筑面积:265平方米

一层:客厅、餐厅、厨房、老人房、次卧、卫生间

二层:多功能厅、3卧室、卫生间、露台
这两款农村二层楼房设计图造价低,属于经济实用型的,内部局部完善,喜欢的朋友可以多多关注哦!








