您好,欢迎访问轩鼎房屋图纸网,轩鼎建筑为您提供新农村房屋设计图、别墅设计图纸以及别墅定制设计与咨询服务。
 
 
  热门搜索:自建房 别墅设计 房屋设计图   
网站首页 图纸大全 定制设计 作品展示 建房图文 联系我们
一层房屋图纸
二层房屋图纸
三层房屋图纸
四层以上图纸
双拼房屋图纸
其他建筑图纸
 
 
 您的位置:首页 ->> 建房图文 ->> 外观漂亮布局舒适实用的建房图纸,自建二层建房图纸
 
 

外观漂亮布局舒适实用的建房图纸,自建二层建房图纸

发布时间:2022/7/1 13:00:40 点击数: 1901次 

现在大家购买建房图纸,除了考虑外观造型,还应该注意哪些呢?我相信很多的建房朋友看重的就是房子本身的舒适度,能有一个让你下班回到家就感觉很舒服而又温馨的家,谁不喜欢呢?那肯定有人会问了,有没有兼具美观和舒适性的房子呢?唉,还真有!今天轩鼎小编就给大家推荐一套兼具美观性与实用性的建房图纸,让你住着更舒心!


96caf7d9c9fd477fbf122ad72d2aad5a.jpg

10×15米三层现代别墅建房图纸,宽敞内院加双厨房,三世同堂不拥挤!

户型基本信息

占地尺寸:10.06mX15.06m

占地面积:151㎡

建筑面积:262㎡

建筑高度:9.9m

建筑结构:砖混结构

户型编号:ZJ-1642

建筑情况:设1大客厅2厨房1餐厅4卧室4卫生间1储藏室1小客厅1阳台1杂物间1屋顶花园


8020eac7e85e436bbc2e3da5b7460001.jpg

平面布局图:

一层宽敞的内院,不管是种菜还是停放农具农车都是非常的方便。餐厨区设置在西南处,与室内卧室、客厅相分割,室内无油烟更干净。一层南向老人房搭配套卫,老人生活更方便、舒适。

5fd835d0c30d44479ac664a4c7d5fafa.png

二层主要作为居住空间使用,超大主卧搭配干湿分离的套卫,还有一个小阳台,让业主的居家生活更加舒适惬意。双厨房设计,满足子女自己做饭的需求。

f429346640f5493d9fe93554d488e01d.png

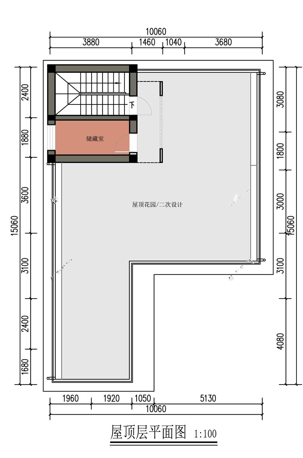
三层为屋顶花园,既可以作为一家人的休闲娱乐场所,同时还能种一些蔬菜,让家人在家也能吃上绿色无污染的的蔬菜。


9c5fc2aac52145d19aa3641d8e5df382.png


看了此款布局设计方案图,大家喜欢这种实用兼具舒适性的房子吗?大家还喜欢喜欢哪种类型的建房图纸呢?欢迎在评论区留言讨论!



 
· 卧室门尺寸一般是多少(卧室门的...
· 漂亮房子越来越多,赶快建吧1!...
· 如今在农村,建别墅的越来越多,...
· 新西兰松木怎么样(新西兰松木属...
· 建这样的欧式别墅,乐享乡村生活...
· 房屋设计平面图来了!(2022年自...
· 乡村130双层自建别墅,设计美观...
· 阁楼如何装修呢(阁楼装修注意事...
  关于我们 网站事务 帮助中心
客服热线:400-079-6579
客服QQ:10928711 10928755 10928799
地址:山东省潍坊财富大厦1801
 

预定须知
顾客必读
配送方式

 


Copyright 2016 www.lemeizhai.com All Rights Reserved ICP备案序号:鲁ICP备2026012448号-1
轩鼎房屋图纸 电 话:0536-3385581 3385582 传 真:0536-3385581 地 址:山东省潍坊财富大厦1801


keywords:房屋设计图 房屋设计图 农村房屋设计图 农村房屋设计图 建房图文