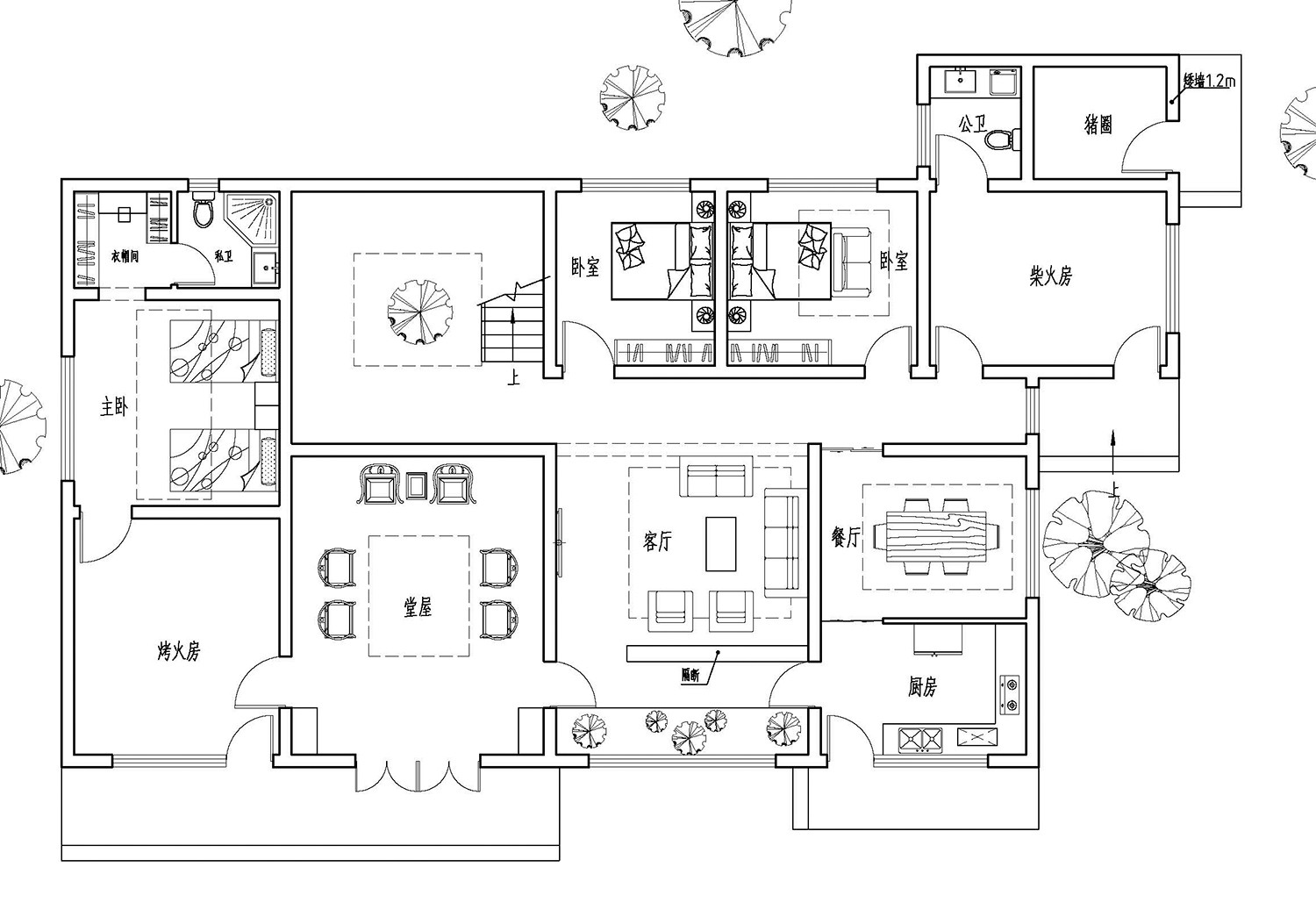
今天给大家推荐一款="://www.lemeizhai.com/Picture.asp?PicClassID=91" target="_self" style="font-size: 24px; text-decoration: underline;">三层别墅设计,这款别墅外装修采用真石漆和文化石搭配,很是漂亮。别墅功能齐全,有烤火房和柴火房,设计有堂屋,别墅特别多。

别墅层数: 三层
别墅风格: 现代
占地面积:287㎡
开 间:18.9m
进 深:15.2m
建筑占地:18.9m×15.2m
建筑面积:552㎡
主体造价:83.3~88.3万
建筑结构:砖混结构


主体设计:

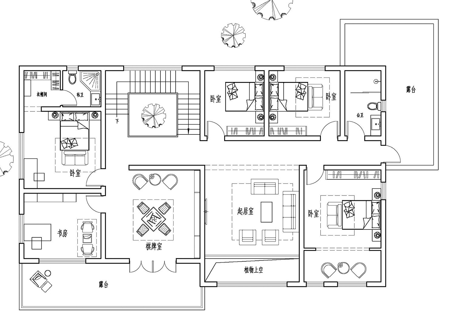
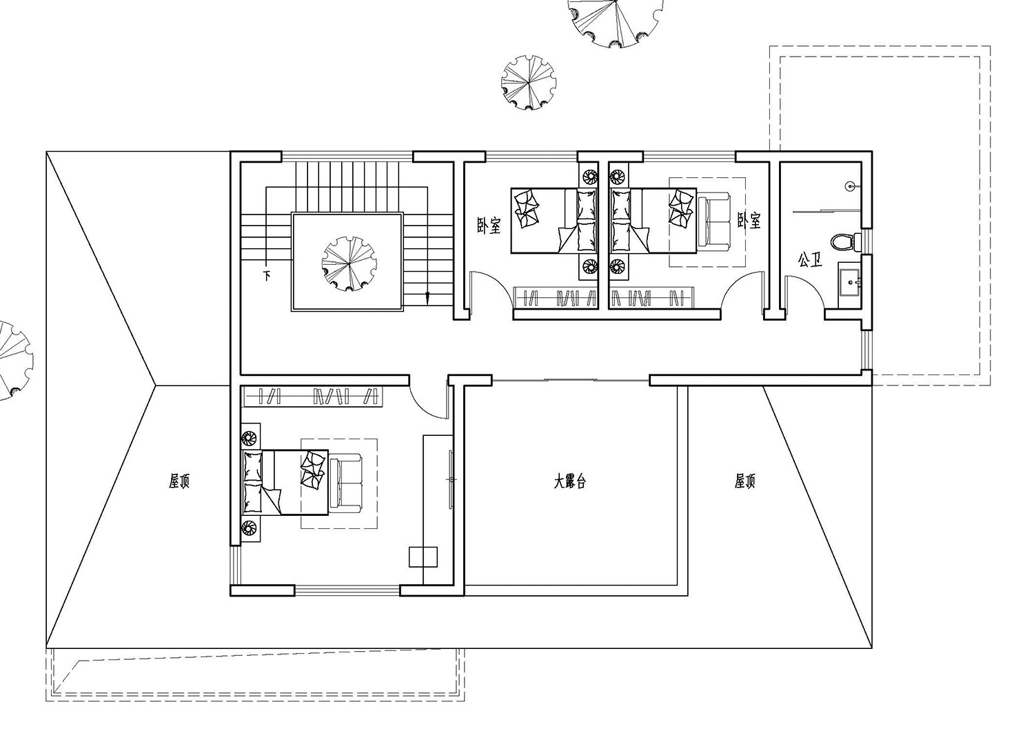
客厅、餐厅、厨房、卧室、公卫、阳台、露台。

。

="://www.lemeizhai.com/index.asp" target="_self" style="font-family: 楷体, 楷体_GB2312, SimKai; font-size: 24px; text-decoration: underline;">转载请注明出自轩鼎别墅设计:://www.lemeizhai.com/index.asp