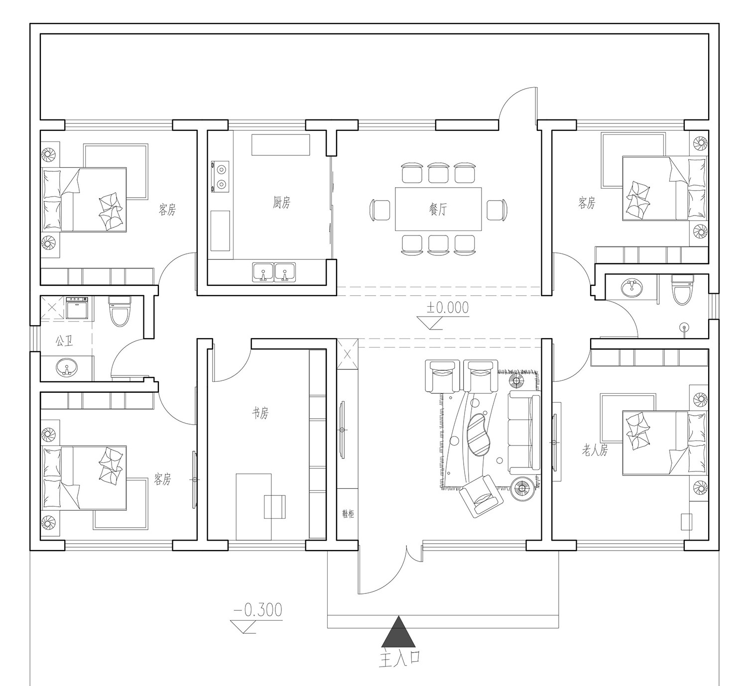
老人最适合住="://www.lemeizhai.com/Picture.asp?PicClassID=85" target="_self">一层别墅设计,今天给大家介绍邱总定制的一层自建房,这款别墅是有前后庭院的,采用真石漆装修,倾斜屋顶排水方便。室内布局:进门是客厅,客厅前面是餐厅,共四个卧室。喜欢一层别墅的请点击="://www.lemeizhai.com/Picture.asp?PicClassID=85" target="_self" style="font-size: 24px; text-decoration: underline;">别墅设计图纸及效果图大全一层

别墅层数: 一层
别墅风格: 欧式
占地面积:160㎡
开 间:16m
进 深:10m
建筑占地:16m×10m
建筑面积:160㎡
主体造价:31.0~36.0万
建筑结构:砖混结构

主体设计:

客厅、餐厅、厨房、卧室、公卫、阳台、露台。
。
="://www.lemeizhai.com/index.asp" target="_self">转载请注明出自轩鼎别墅设计:://www.lemeizhai.com/index.asp