很多人建房都喜欢大户型的房子,大户型的房子外观气派,同时使用面积大,功能更多,便于生活娱乐,如果设计的更好,那也会让整个房子更有魅力,更能让主人生活的愉悦舒适。今天给大家介绍一款户型比较大的农村自建别墅,外观设计大气美观,内部布局合,房屋占地14x16米,="://www.lemeizhai.com/Picture.asp?PicClassID=91" target="_self">三层别墅设计框架结构,房屋总面积550平方米,主体毛坯造价70-80万。房屋采用欧式风格,米黄色的外墙漆搭配蓝色的琉璃瓦,整体配色温馨精致,大面积使用落地窗,房屋整体通透大气。
效果图:



平面图:

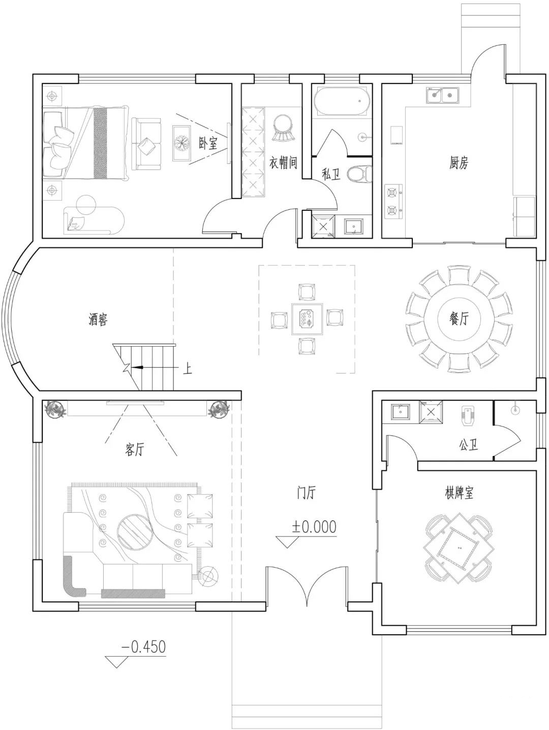
一层平面

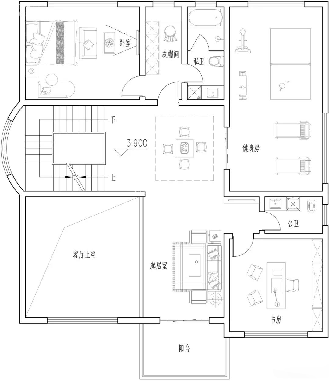
二层平面

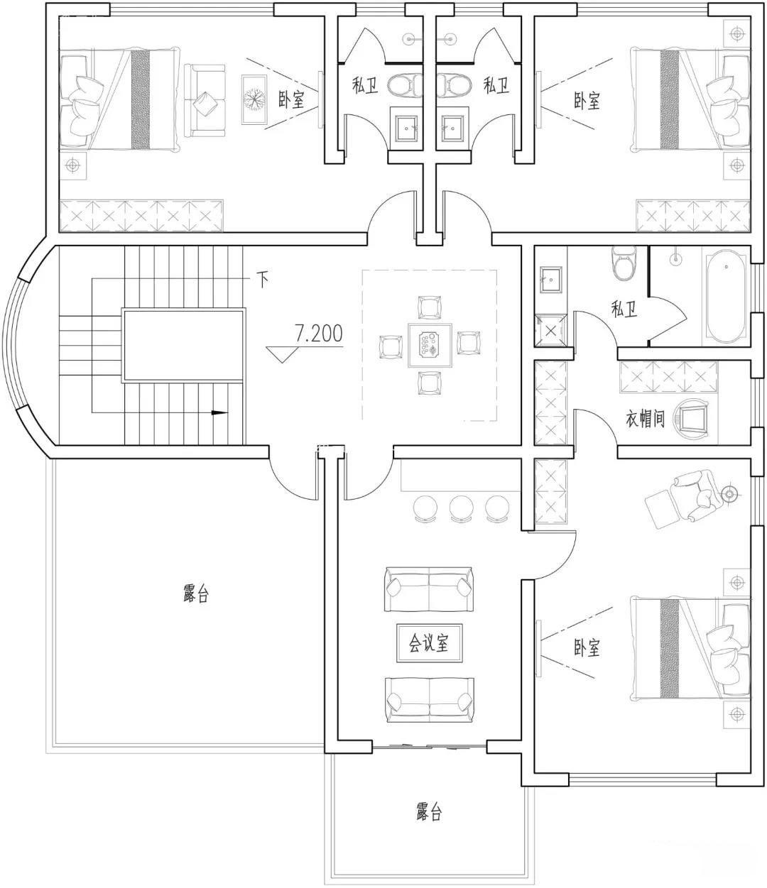
三层平面
转载请注明出自轩鼎别墅设计:://www.lemeizhai.com/