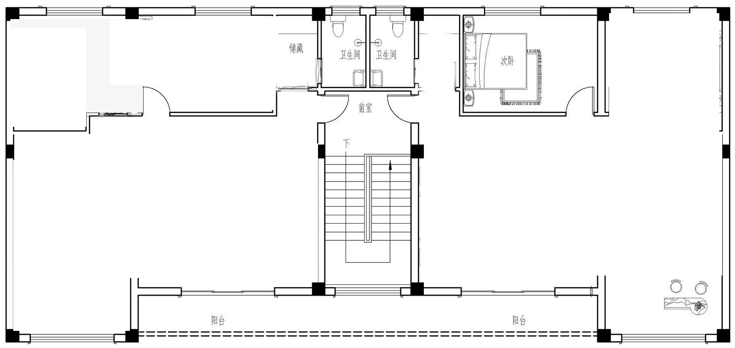
今天给大家介绍的案例是郝先生的二层双拼别墅设计,郝先生是在镇上开小饭馆的,挣了一笔钱想要翻新一下自己的门店,找到了我们轩鼎别墅。郝先生想要有两个厨房的别墅,经过实地考察设计师给出了双拼设计方案,风格采用新中式风,一层就是营业的小餐馆,两个厨房卖不同的吃食,二层也是摆放餐桌的地方,还有一个大的储藏间,设有一个卧室是监控室。想要设计图纸的可以点击="://www.lemeizhai.com/Channel.asp?ChannelID=33" target="_self" style="font-size: 24px; text-decoration: underline;">设计别墅图纸进官网查看

别墅层数: 二层
别墅风格: 中式
占地面积:241㎡
开 间:23m
进 深:10.5m
建筑占地:23m×10.5m
建筑面积:476㎡
主体造价:66.0~71.0万
建筑结构:框架结构


主体设计:

客厅、餐厅、厨房、卧室、公卫、阳台、露台。

。
转载请注明出自轩鼎别墅设计:://www.lemeizhai.com/index.asp