欧式自建房看起来有很多建造的,要说什么风格的别墅最受国人的喜爱,那当然是新中式风格的了,今天这款李先生定制的新中式别墅设计推荐给大家。喜欢三层别墅的请点击="://www.lemeizhai.com/Picture.asp?PicClassID=91" target="_self" style="font-size: 24px; text-decoration: underline;">别墅三层图片大全

别墅层数: 三层
别墅风格: 中式
占地面积:171㎡
开 间:9.7m
进 深:17.7m
建筑占地:9.7m×17.7m
建筑面积:317.6㎡
主体造价:46.0~51.0万
建筑结构:框架结构
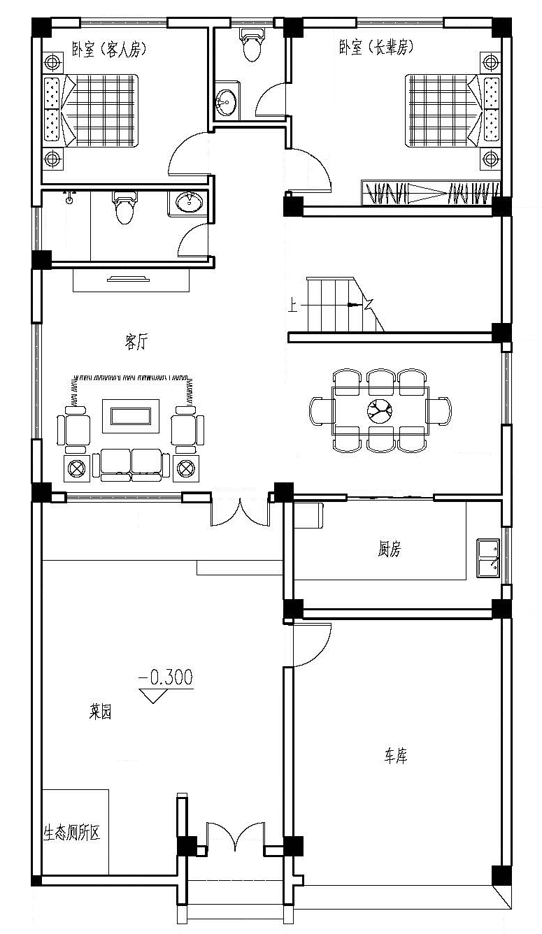
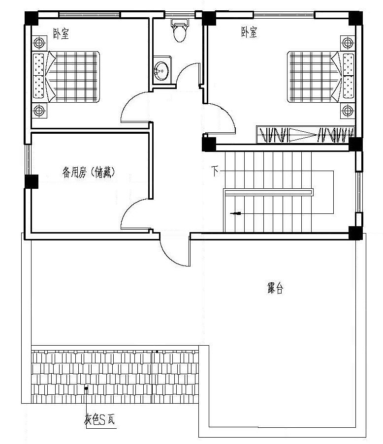
主体设计:

客厅、餐厅、厨房、卧室、公卫、阳台、露台。


。
转载请注明出自轩鼎别墅设计:://www.lemeizhai.com/index.asp