住房从现在到未来都是人们的一大难题,虽然不知道未来能不能买到便宜的房子,但我相信未来楼房不会成为人们的高负担。但现在买房不如在农村老家建房,建一栋漂亮舒适的房子不比城里买房舒服。今天推荐的是孙总私人定制的现代="://www.lemeizhai.com/Picture.asp?PicClassID=88" target="_self">二层别墅设计,这套别墅有露台内部空间大,非常舒适。
效果图:


别墅风格: 现代
占地面积:120㎡
开 间:10.7m
进 深:11.3m
建筑占地:10.7m×11.3m
建筑面积:232㎡
主体造价:37.0~42.0万
建筑结构:框架结构
效果图:


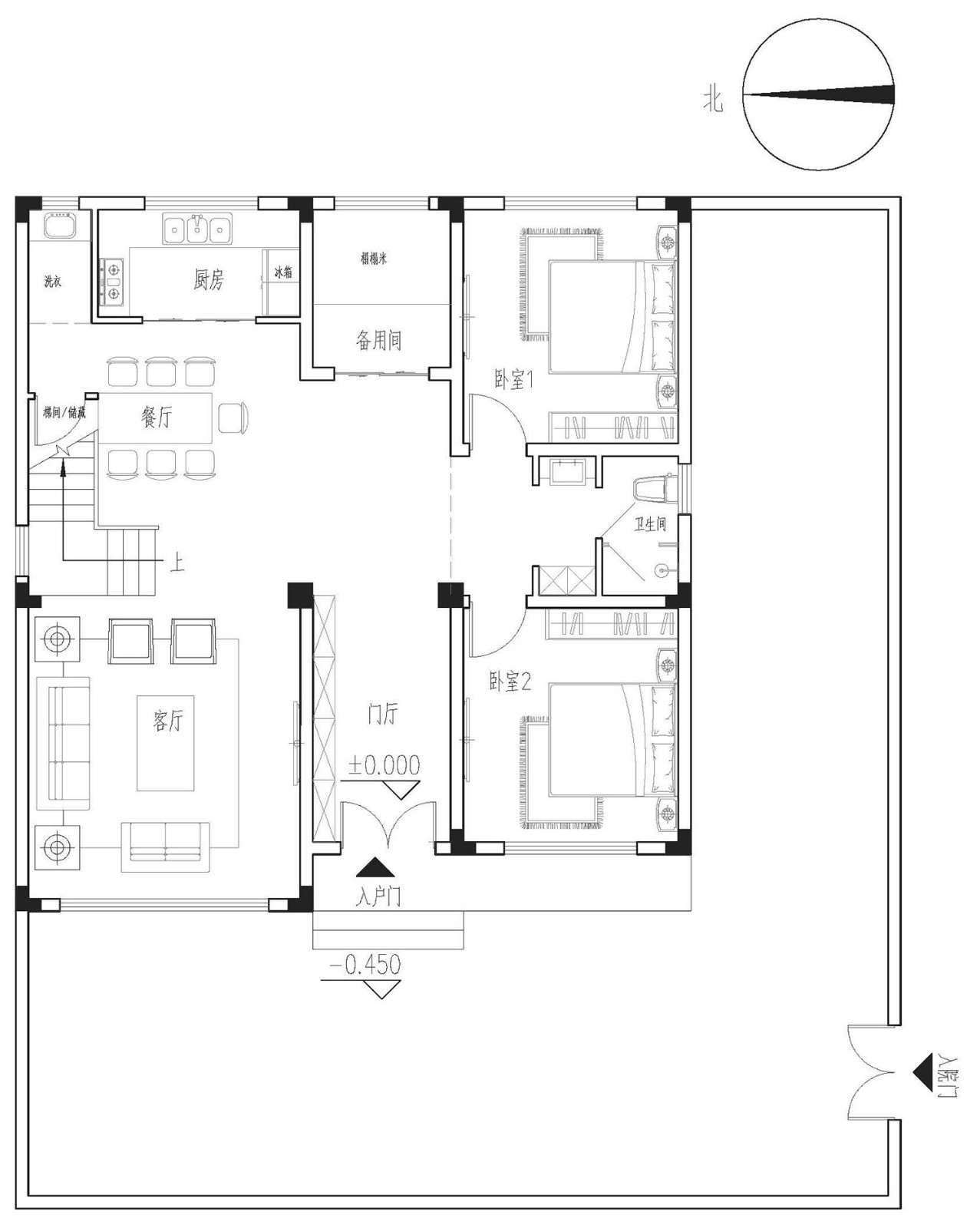
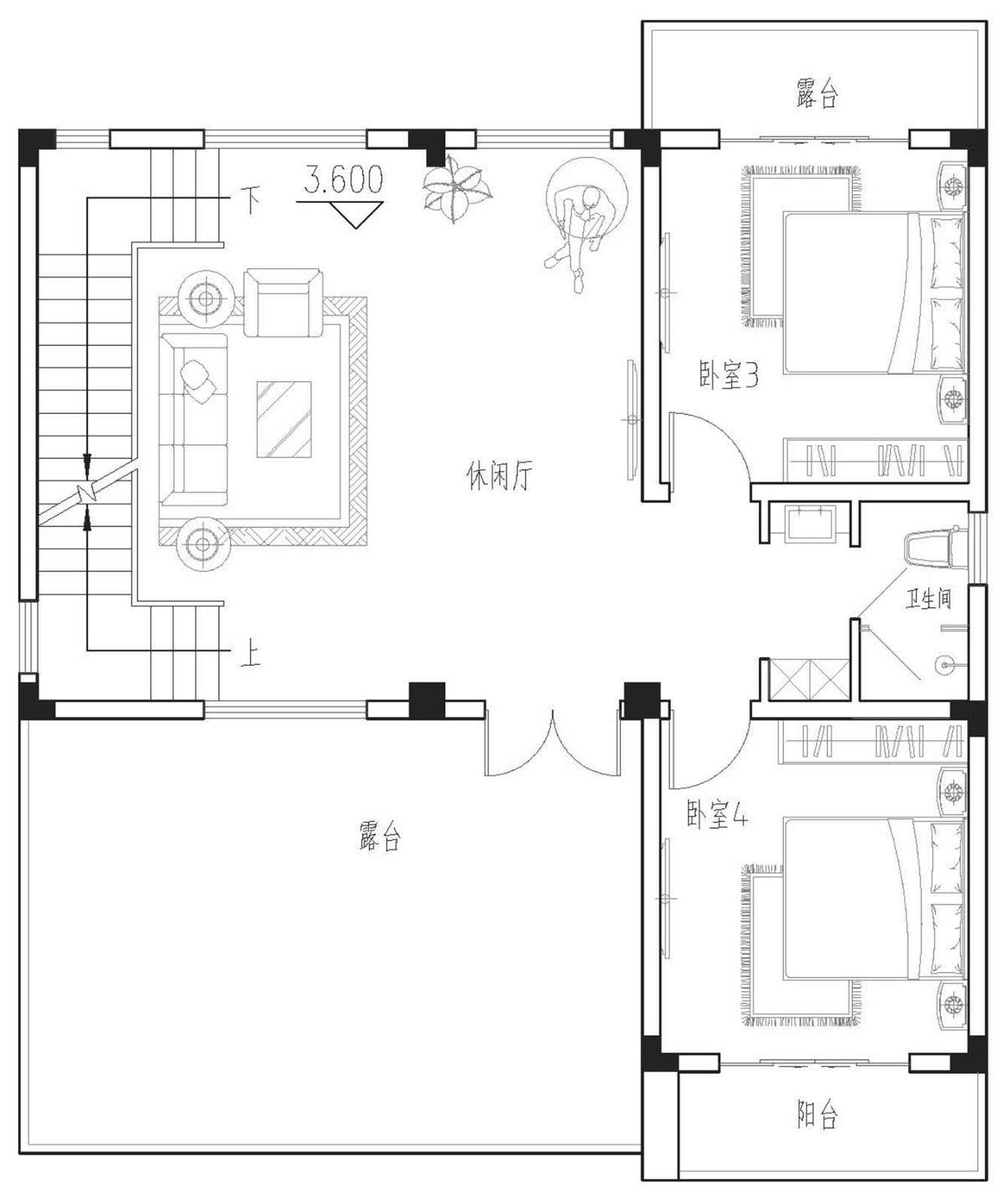
主体设计:进门是玄关,客厅向阳,厨房餐厅也在一个地方,卧室在两边,房间多。

客厅、餐厅、厨房、卧室、公卫、阳台、露台。

。
转载请注明出自轩鼎自建房:://www.lemeizhai.com/