有幸拥有一个小院,还有一个小池塘,种着我最爱的荷花,一年四季,小院里花开不断,蜜蜂蝴蝶翩翩起舞,鸟儿叽叽喳喳,最大的乐趣就是看花儿开花结果,鱼儿在水中畅游,压力再大也缓解了。
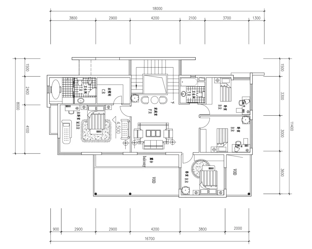
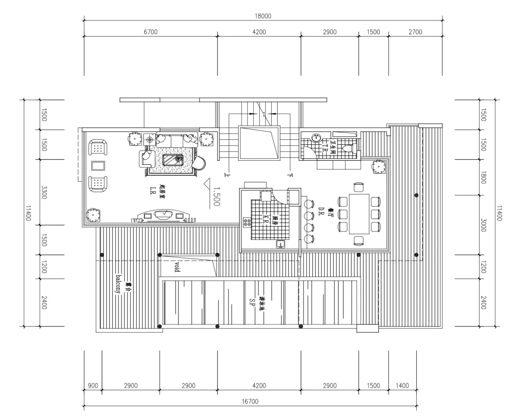
本建筑占地面积187.29㎡,东西方向11.4米,南北方向16.7米,建筑高度8.0米,建筑面积340.80㎡。




文章出自轩鼎房屋图纸网:="://www.lemeizhai.com/" _src="://www.lemeizhai.com" style="color: rgb(0, 112, 192); font-size: 13px; font-family: 宋体; white-space: normal;">://www.lemeizhai.com