展示两种不同风格的房屋设计
这三张房屋设计图展示了三种不同风格和布局的住宅设计,各具特色,满足了不同家庭的需求。
一层设有客厅、餐厅、厨房和卫生间,布局紧凑而实用。
二层则包含三间卧室和两个卫生间,适合小家庭居住。房屋外观采用浅色石材和深色屋顶的搭配,显得清新自然,门前的绿化设计增添了家的温馨感。

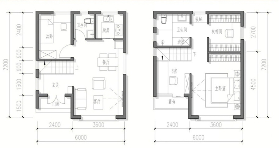
一层设有客厅、餐厅、厨房、玄关和两间卧室,布局宽敞明亮。
二层则包含三间卧室、两个卫生间和一个露台,提供了更多的私人空间和户外活动区域。房屋外观采用白色墙面和红色屋顶,显得典雅大气,适合追求品质生活的家庭。

这俩款房屋设计各具特色,无论是简约现代还是典雅欧式,都能为不同的家庭提供舒适和实用的居住环境。
- 转载请注明
="://www.lemeizhai.com/8848/admin.asp" target="_self">://www.lemeizhai.com/8848/admin.asp