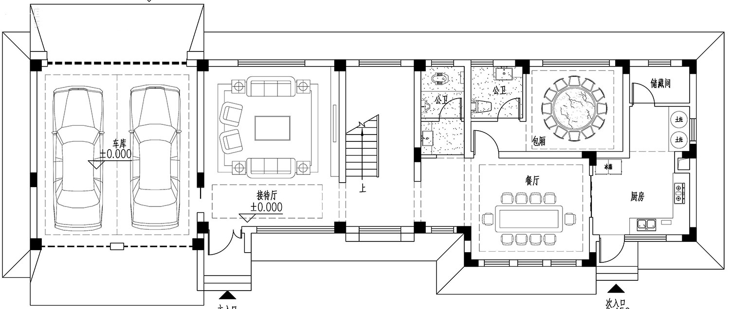
人生有很多喜事,金榜题名、添丁进口都是令人幸福的,建房是一个大事,乔迁之喜也是值得开心的事,在农村建一栋漂亮的新房不仅脸上有光,家人也跟着有面子。今天给大家推荐的="://www.lemeizhai.com/Picture.asp?PicClassID=88" target="_self">农村别墅设计是一款现代风的二层小别墅,别墅简洁漂亮,有双车库能停两辆车,而且采光良好居住舒适,总之非常棒!

别墅层数: 二层
别墅风格: 现代
占地面积:176㎡
开 间:23.9m
进 深:7.4m
建筑占地:23.9m×7.4m
建筑面积:300㎡
主体造价:47.0~52.0万
建筑结构:框架结构


主体设计:

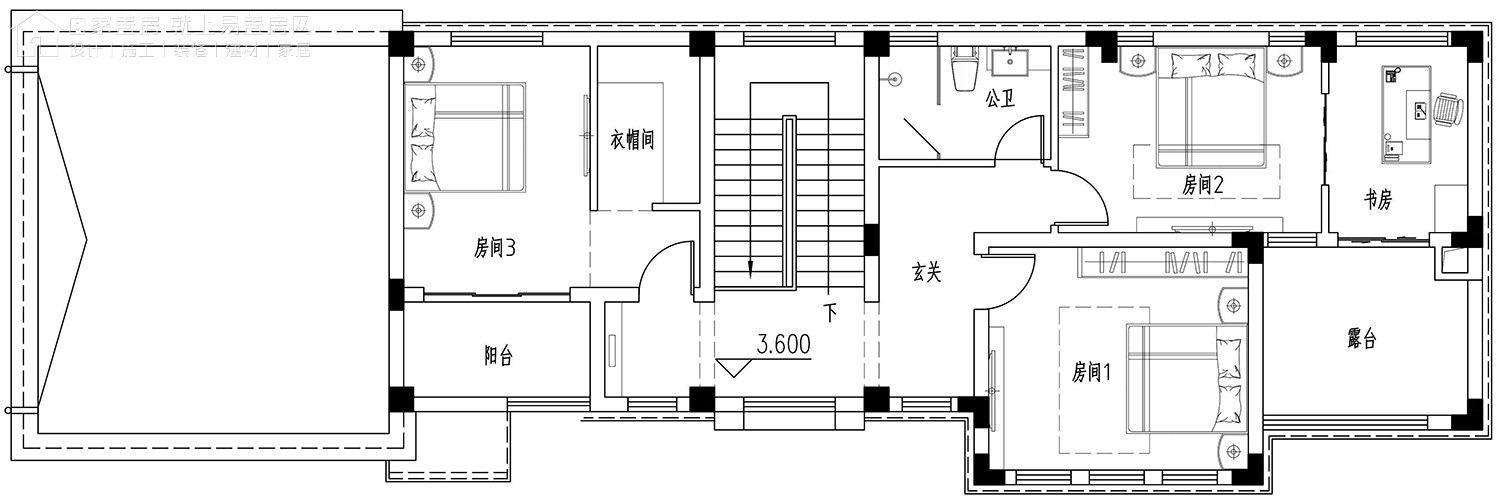
客厅、餐厅、厨房、卧室、公卫、阳台、露台。

。
转载请注明出自轩鼎自建房:://www.lemeizhai.com/