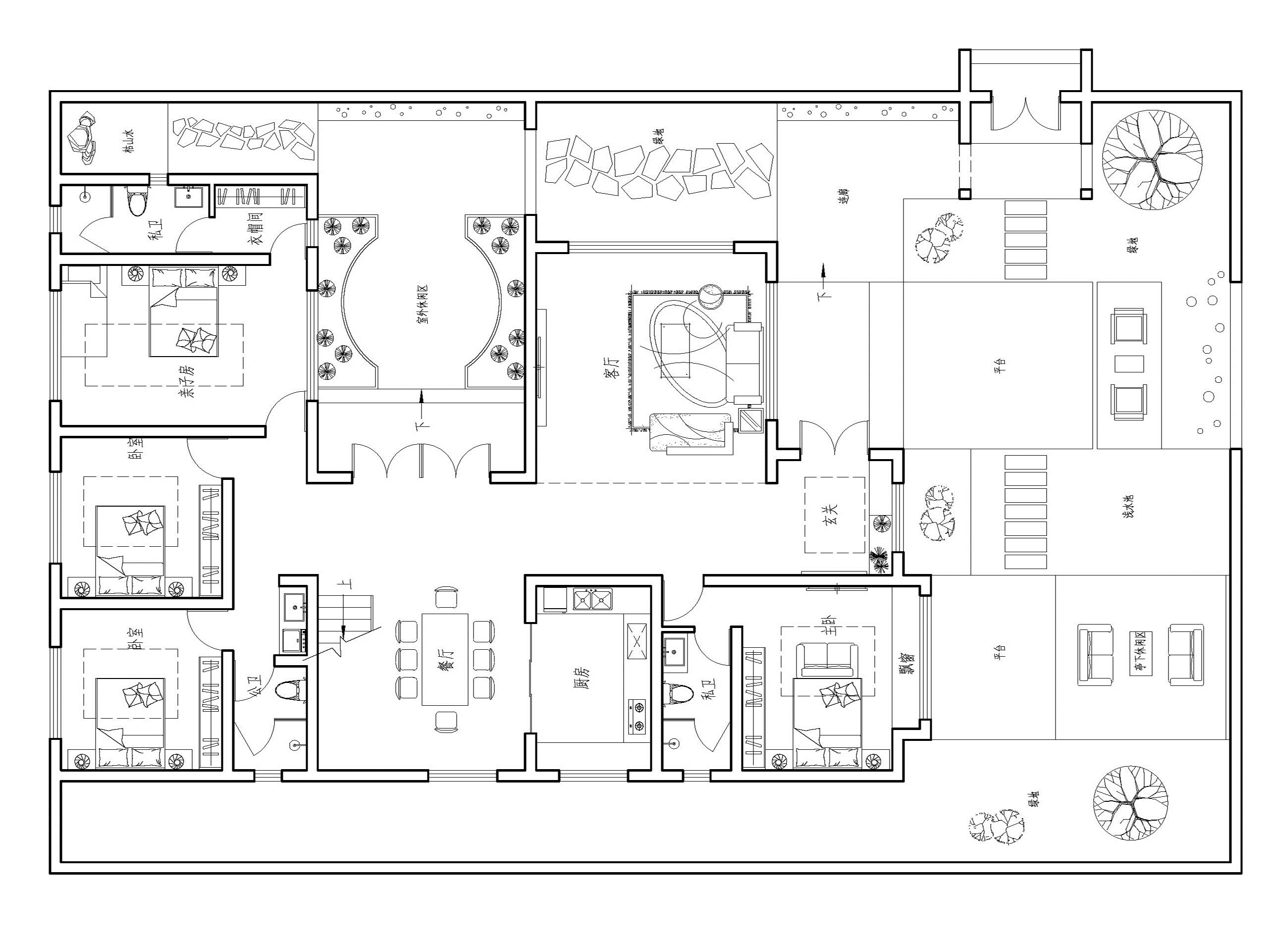
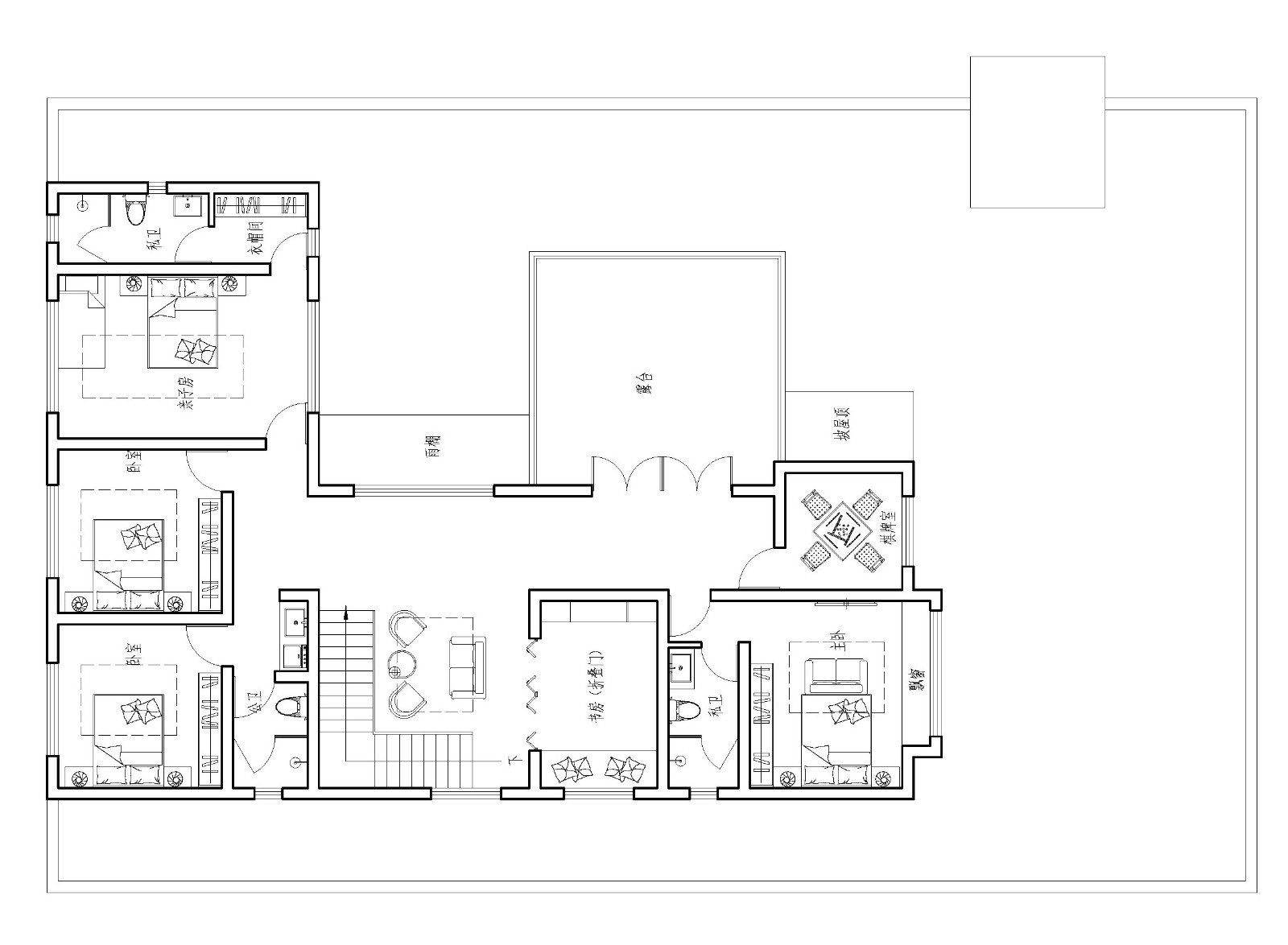
现在建房第一步就是先了解法律法规,了解建房的规定和细节,在向村集体提出申请,按照规定建设,建设三层以上的需要专门的建设团队。今天给大家推荐的是一款设计良好的="://www.lemeizhai.com/search.asp?SearchType=Software&imageField.x=40&imageField.y=41&SearchKey=%D0%C2%D6%D0%CA%BD" target="_self" style="font-size: 18px; text-decoration: underline;">新中式别墅设计,这款别墅空间不拥挤,客厅厨房错开,卧室够用两层能住很多人,不怕儿女多。


别墅风格:中式
占地面积:442㎡
开 间:26m
进 深:17m
建筑占地:26m×17m
建筑面积:363㎡
预估造价:43.0万
建筑结构:砖混结构


主体设计:

客厅、餐厅、厨房、卧室、公卫、阳台、露台。

。
转载请注明出自轩鼎自建房:://www.lemeizhai.com/