农村小别墅的类型中新中式风格的算是最符合国人的了,一些集体安置的房子就选的是新中式风格别墅,新中式别墅既美观又漂亮,很适合农村这个环境,又适合国人的气质。今天推荐河南吴总购买的二层别墅设计图,一款新中式别墅设计,为美丽乡村做贡献。


别墅层数: 二层
别墅风格: 中式
占地面积:207㎡
开 间:14.8m
进 深:14m
建筑占地:14.8m×14m
建筑面积:276㎡
主体造价:28.0~33.0万
建筑结构:砖混结构


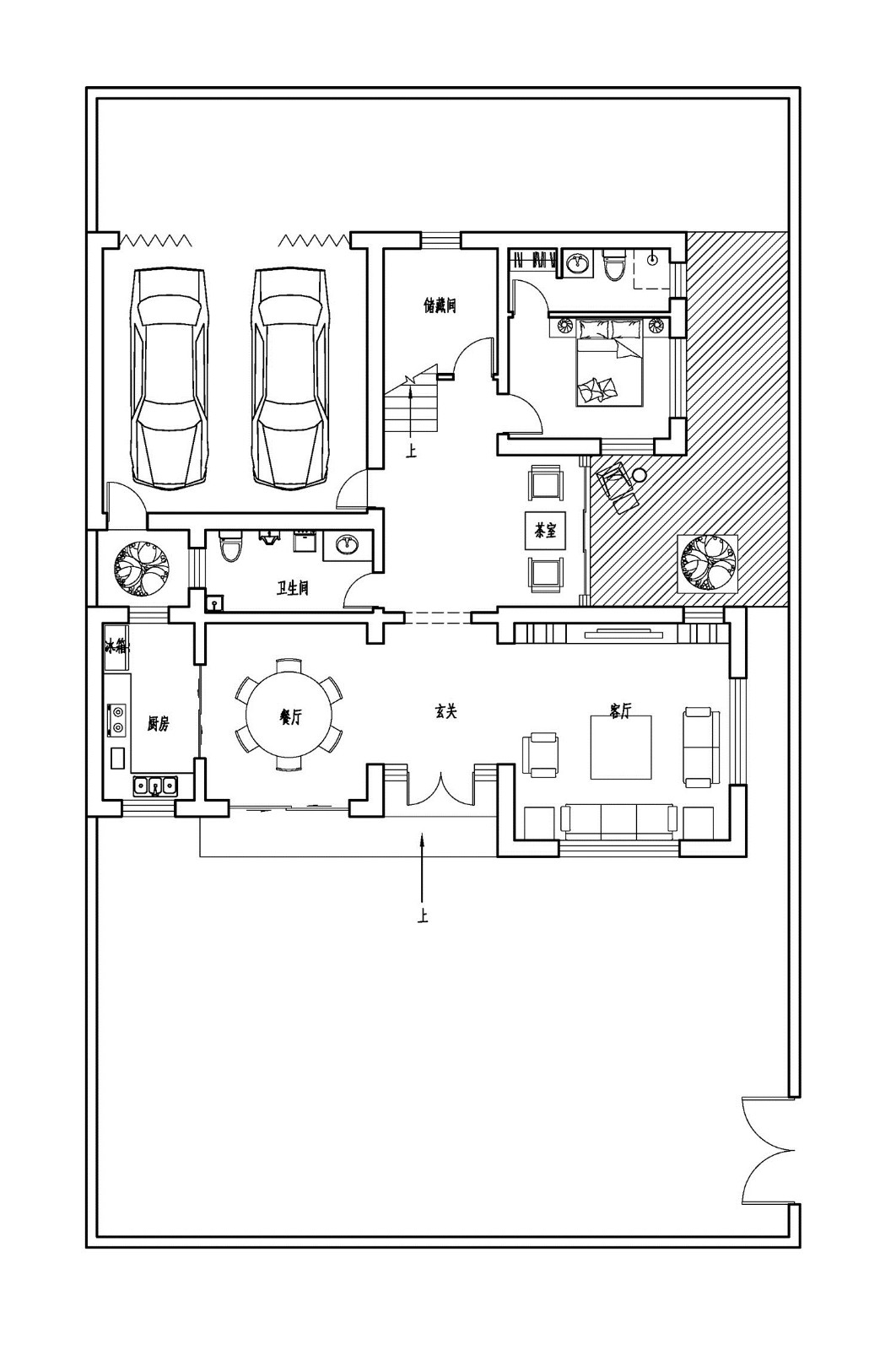
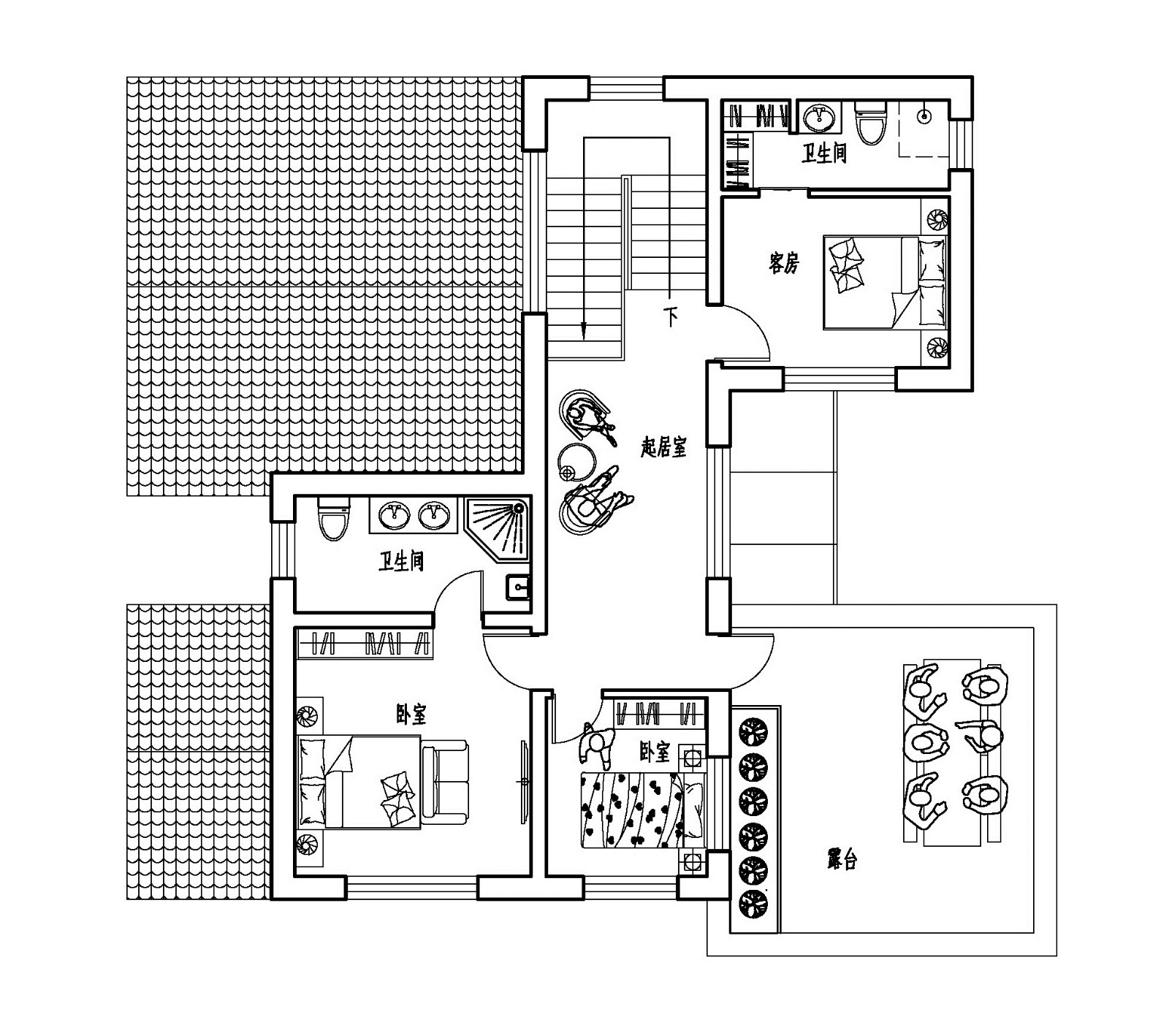
主体设计:

客厅、餐厅、厨房、卧室、公卫、阳台、露台。

。
转载请注明出自轩鼎自建房:://www.lemeizhai.com/