农村有宅基地就应该建房,不能占着地方不用,要建房就马上建早建好处多多,别等到不让建了再后悔,趁着现在还能建房建上一栋漂亮的小别墅好好享受。今天给大家推荐的是河南刘总私人订制的="://www.lemeizhai.com/Picture.asp?PicClassID=88" target="_self" style="font-size: 20px; text-decoration: underline;">二层农村自建别墅设计,这是一套现代别墅喜欢的收藏吧。
效果图:

别墅层数: 二层
别墅风格: 现代
占地面积:300㎡
开 间:15m
进 深:20m
建筑占地:15m×20m
建筑面积:389㎡
主体造价:53.0~58.0万
建筑结构:砖混结构
效果图:


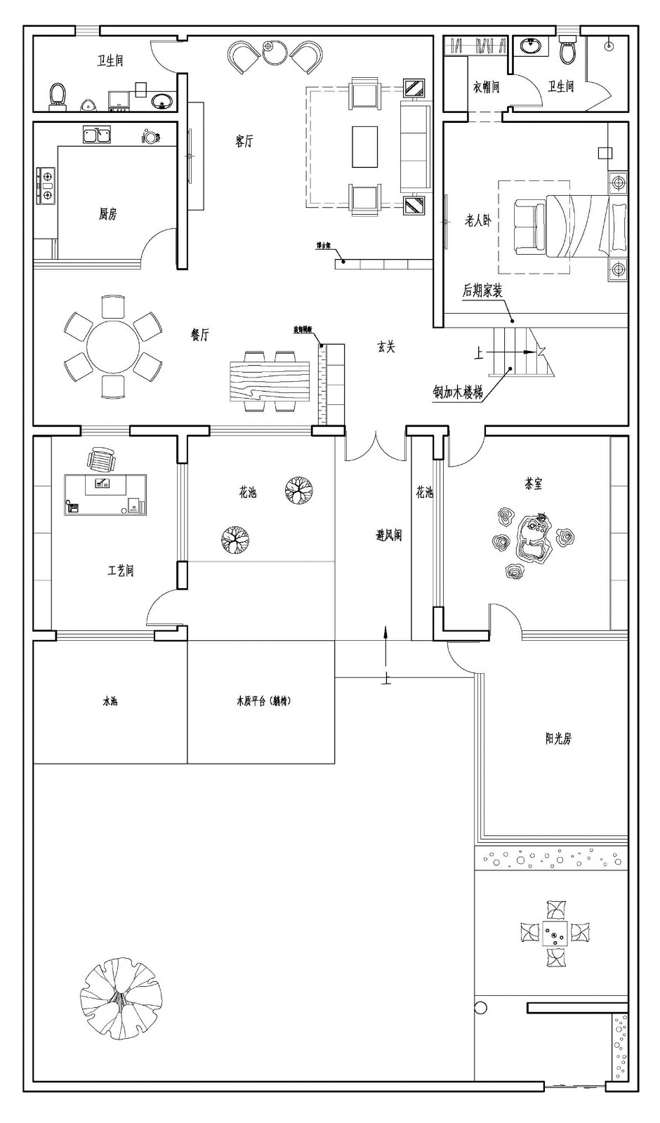
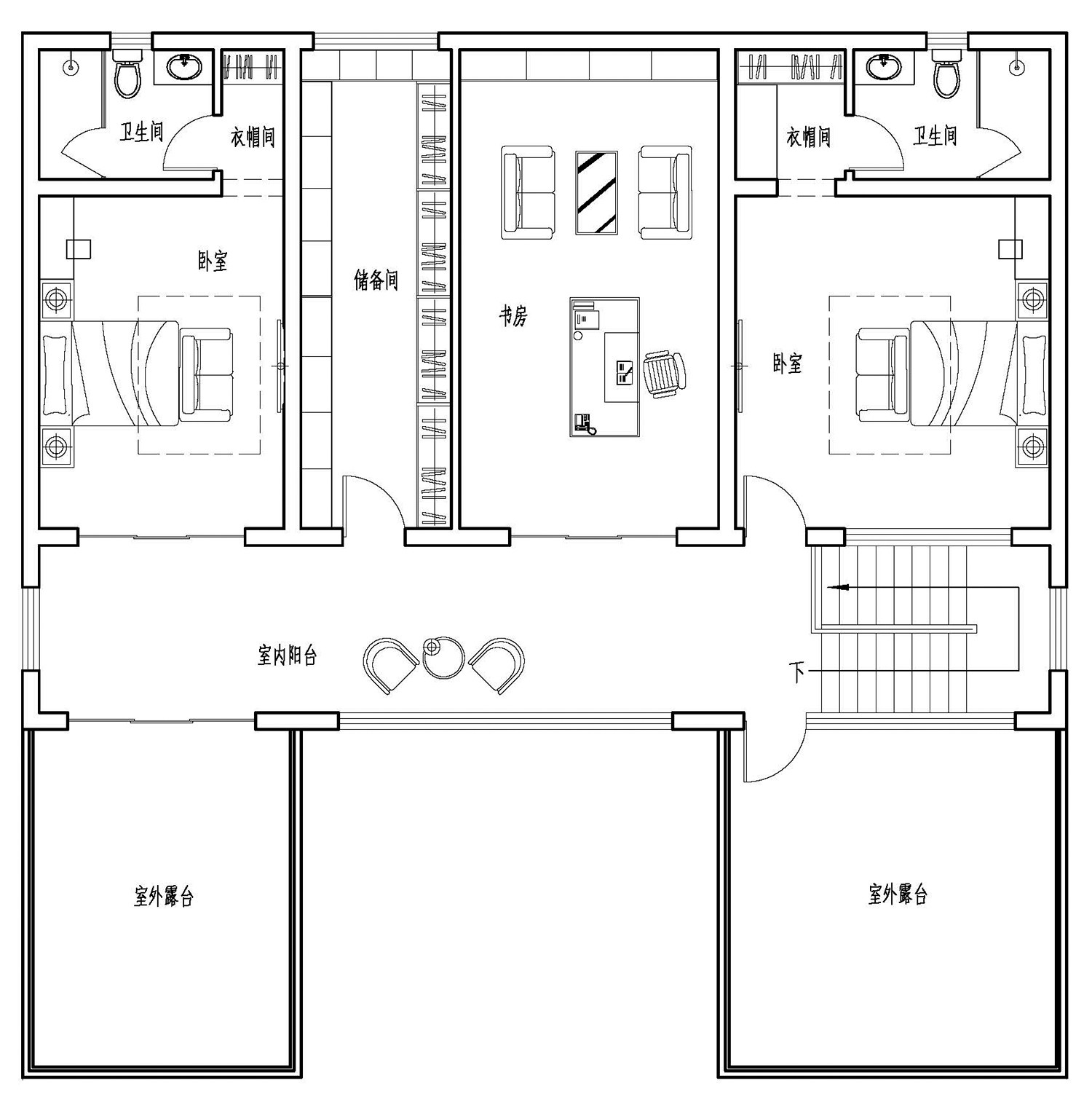
主体设计:。

客厅、餐厅、厨房、卧室、公卫、阳台、露台。

。
转载请注明出自轩鼎自建房:://www.lemeizhai.com/