在农村生活比城里过得好,通过疫情发现农村的日子比城里强,在农村至少能吃自己的种的粮食,所以农村有宅基地的都会在老家建一栋别墅,有的已经住在农村了。今天给大家推荐的是山东吕总私人订制的="://www.lemeizhai.com/search.asp?SearchType=Software&imageField.x=20&imageField.y=21&SearchKey=%D0%C2%D6%D0%CA%BD" target="_self">二层新中式别墅设计,白墙灰瓦小露台这样的小别墅非常适合农村建造。
效果图:


别墅层数: 二层
别墅风格: 中式
占地面积:354㎡
开 间:18m
进 深:19.7m
建筑占地:18m×19.7m
建筑面积:429㎡
主体造价:70.0~75.0万
建筑结构:砖混结构
效果图:


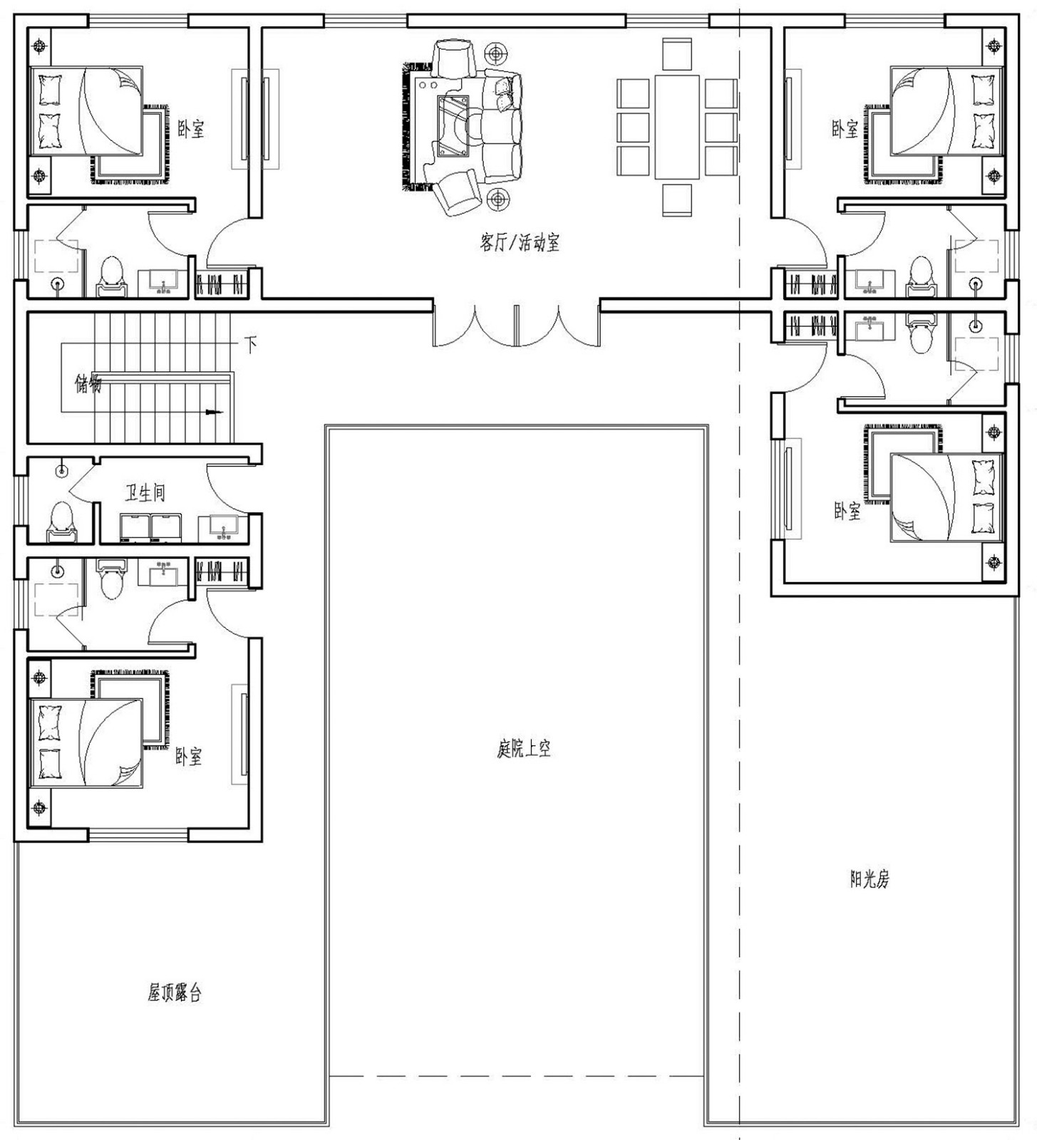
主体设计:

客厅、餐厅、厨房、卧室、公卫、阳台、露台。

。
转载请注明出自轩鼎自建房:://www.lemeizhai.com/