二层三层的别墅不一定适合农村,一层的新式自建房还是能满足现在的需求的,与其花大价钱弄个面子工程不如花少一点弄一套满足自己需求的房子。今天给大家推荐雷总私人订制的="://www.lemeizhai.com/search.asp?SearchType=Software&imageField.x=39&imageField.y=14&SearchKey=%D0%C2%D6%D0%CA%BD" target="_self">一层新中式农村自建房设计图,这套房子很漂亮能满足个人的住房需求空间不小,农村住上一套这样的房子别提多舒服了。
效果图:


别墅层数: 一层
别墅风格: 新中式
占地面积:121㎡
开 间:12.4m
进 深:9.8m
建筑占地:12.4m×9.8m
建筑面积:140㎡
主体造价:21.0~26.0万
建筑结构:砖混结构
效果图:


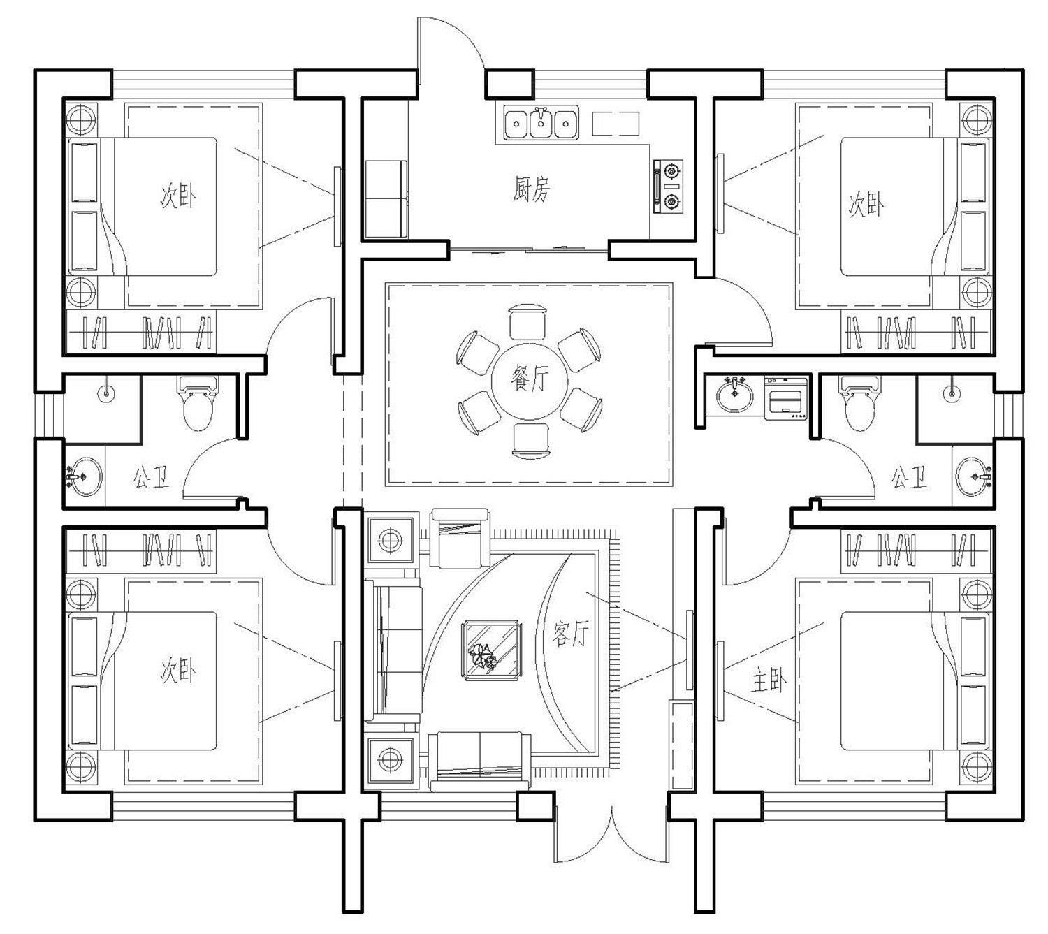
主体设计:

客厅、餐厅、厨房、卧室、公卫、阳台、露台。
。
转载请注明出自轩鼎自建房:://www.lemeizhai.com/