农村建别墅现在都不卖图纸了,私人订制才是现在的选择,还可以DIY自己设计房屋,早些年根本都不会想到现在建房都可以私人订制了。今天给大家推荐一款安徽刘总私人订制的="://www.lemeizhai.com/Picture.asp?PicClassID=91" target="_self">三层别墅设计,房屋非常通透有前后门看起来正反都一样,房间够多住着非常舒适,这套别墅造价不超过60万。
效果图:



别墅层数: 三层
别墅风格: 中式
占地面积:192㎡
开 间:15.4m
进 深:12.5m
建筑占地:15.4m×12.5m
建筑面积:330㎡
主体造价:51.0~56.0万
建筑结构:框架结构
效果图:


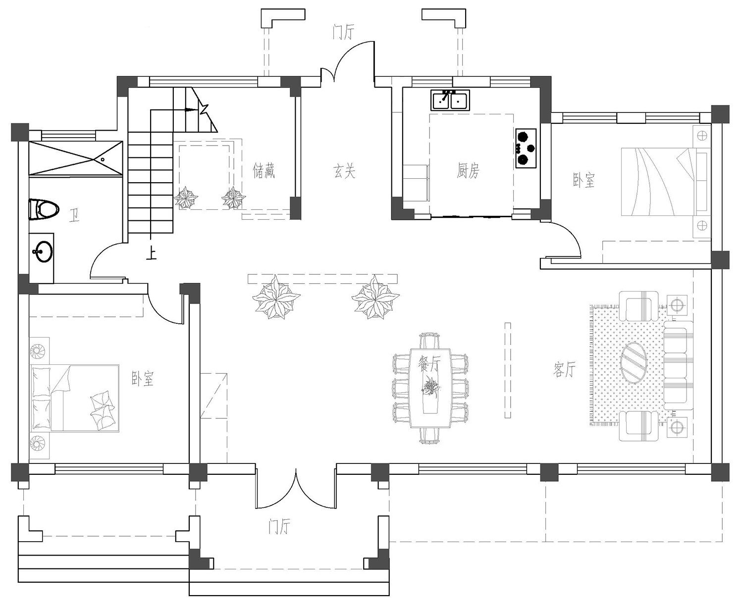
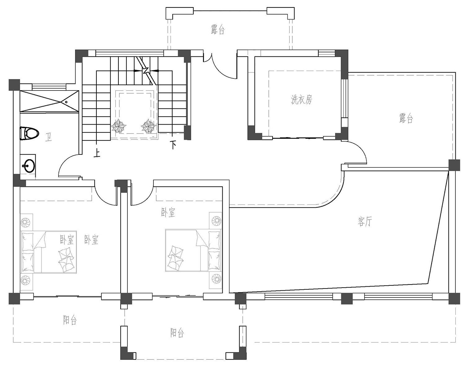
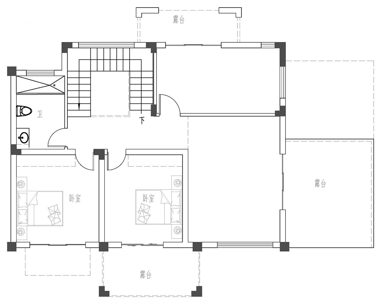
主体设计:

客厅、餐厅、厨房、卧室、公卫、阳台、露台。

。

转载请注明出自轩鼎自建房:://www.lemeizhai.com/