最新出炉(农村自建三层 欧式别墅设计)喜欢带地下室的90%的人
随着社会的发展,每个人在人生的某个阶段,总是给自己定下一些目标,一些是我今年一定要存钱买车,买房子。我要参加什么种类的考试,在什么样的比赛中排名等等。肯定很多人的目标都是和老家不同的近年来农村的自营住宅也越来越成为人们的好选择,但对于没有经验的农民朋友来说,要建一个户型户外光线漂亮或布局实用的户型几乎是不可能的。
特别是面对豪宅的时候,这个时候最好找专业的设计。 它与农村承包商自己起草、自己施工、装修而成的户型并不完全相同。
其次是农村的土豪定制了设计的钱,镇上绝对找不到第二栋的数百万人不敢工作!
效果图

别墅设计注重外观形态变化,室内采光第一。 但是,不能忘记农村这个大框架,根本是实用的。

为了采光掉在地板上的窗户当然少,也需要露台。 厚群强轻的采光窗,大量露台加强与自然的交流。
户型信息介绍:

占地面积: 16.28m*14.00m (含走廊) 227.92平方米,1层建筑面积168平方米。
建筑楼高:三层(带地下室)建筑高: 13.35米(含屋顶)
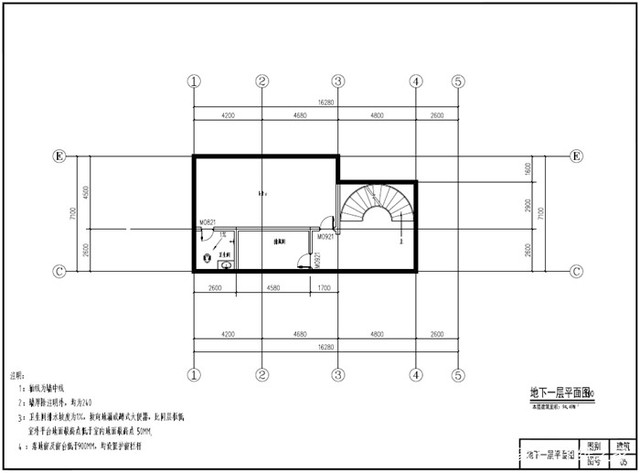
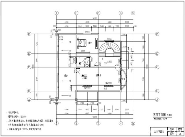
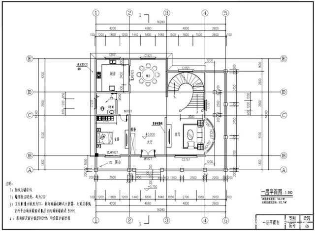
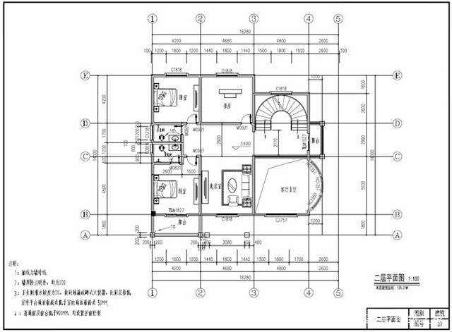
平面布局图:





地下层:储藏室、厕所、KTV (可定制功能)
一楼:大厅、客厅、厨房、餐厅、卧室、厕所、走廊
二楼:客厅上空、起居室、书房、主卧室(带厕所)、卧室、厕所、阳台
三楼:主卧(带厕所)、健身房、大露台、阳台
地下储藏室,在老板家里储藏垃圾等的功能方便,地下KTV的设计是很大的亮点,不妨碍上面的人居住,还有在没事的时候邀请几个朋友的美女唱KK歌等,想起来很兴奋。
一楼平面图:空着的客厅搭上旋转楼梯,客厅宽敞大气,作为一个客人来往最多的地方,既能为家庭主人赚面子,又能为老人设置一楼卧室等。
二楼平面图:布局清晰,书房设计成为最新农村别墅的设计潮流,旋转楼梯和直角楼梯完成切换,接着躺在阳台上,提供了一些户外空间。
三层平面图:占大部分面积的露台设计,是农村别墅设计的必要项目,健身房的设计也是不可缺少的。 现在的人们不仅重视生活质量的提高,也重视自己的身体。
户型的颜值高,实用性好,也不是这样的户型,像建筑这样的别墅在老家也太长了。
转载请注明出自轩鼎别墅设计="://lemeizhai.com" target="_self">://www.lemeizhai.com