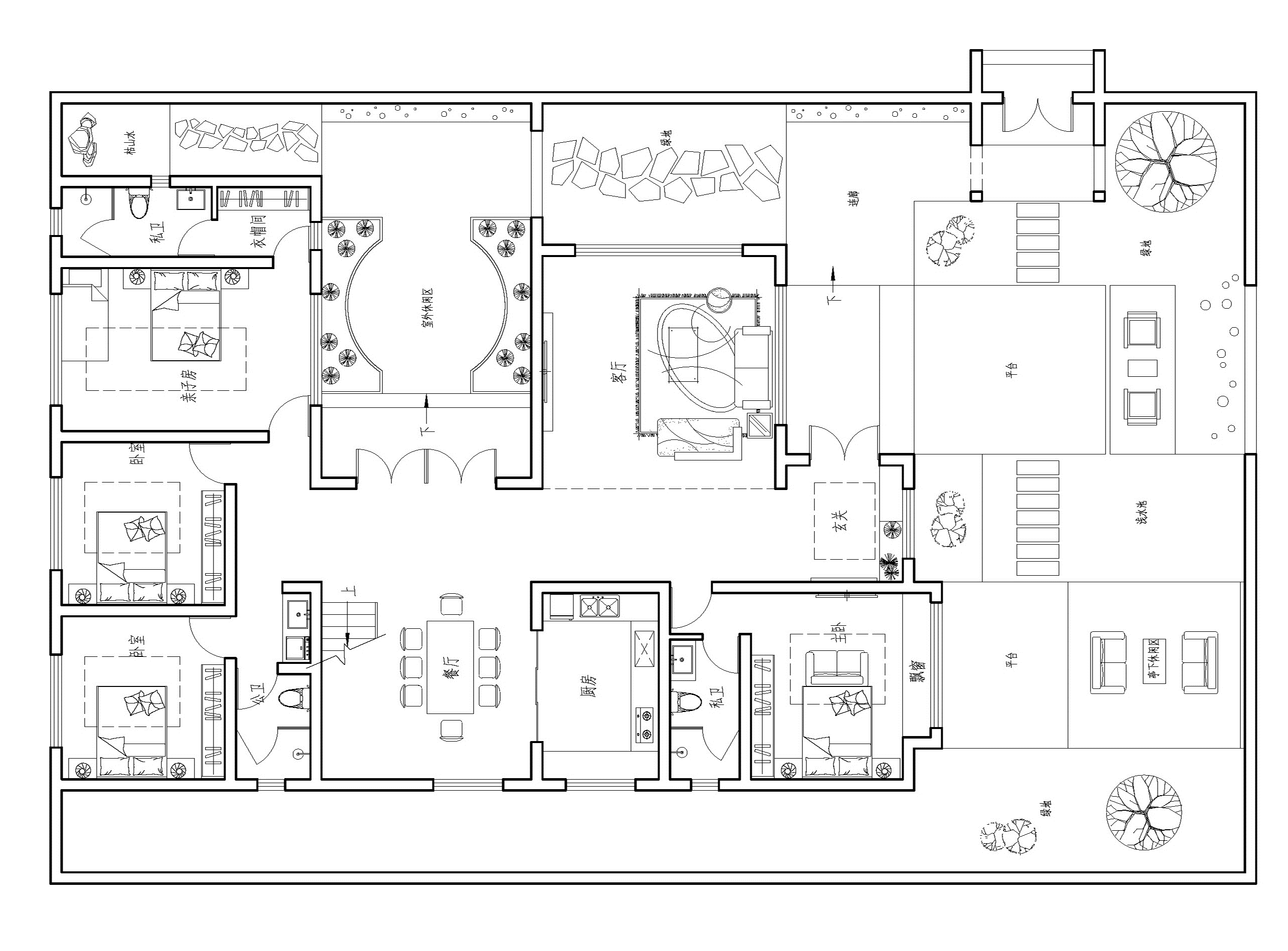
自建房是永不过时的话题,家住山东的谭先生私人订制了一套心仪的二层别墅设计,这套别墅清爽好看,非常适合年轻人居住,一层房间非常多,进门就是玄关客厅就在一旁,厨房和餐厅与客厅错开,。来看看实际效果图吧,非常不错实景图如下。

实际图:

别墅风格:现代
占地面积:178㎡
开 间:14.5m
进 深:12.3m
建筑占地:14.5m×12.3m
建筑面积:245㎡
预估造价:37.0万
建筑结构:砖混结构



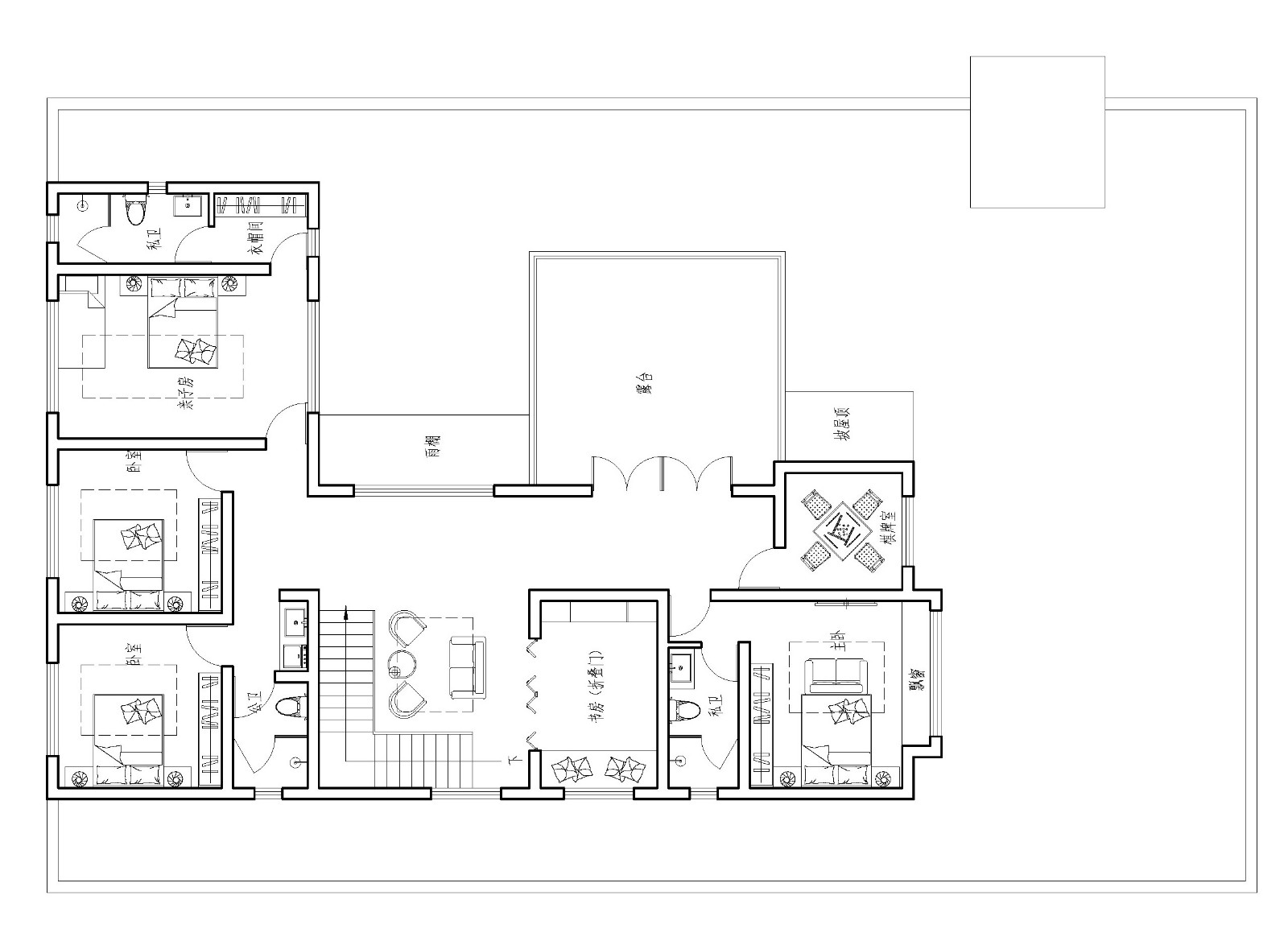
主体设计:

客厅、餐厅、厨房、卧室、公卫、阳台、露台。

。
转载请注明出自轩鼎自建房:://www.lemeizhai.com/