大气的洋楼也能建得起了,有钱了什么样的的房子建不了,只要不超出国家标准就行,建现代化别墅就应该凭请专业的团队,不然建出的房子不可靠。今天给大家推荐孙总私人订制的="://www.lemeizhai.com/Picture.asp?PicClassID=91" target="_self" style="font-size: 18px; text-decoration: underline;">三层别墅设计,这套别墅大气漂亮火红的屋顶喜庆好看,没有繁琐的花纹但也不失大气稳重 ,建房就应该建这样的农村别墅设计

别墅层数: 三层
别墅风格: 欧式
占地面积:323㎡
开 间:22.6m
进 深:14.3m
建筑占地:22.6m×14.3m
建筑面积:1103㎡
主体造价:155.0~160.0万
建筑结构:框架结构


主体设计:

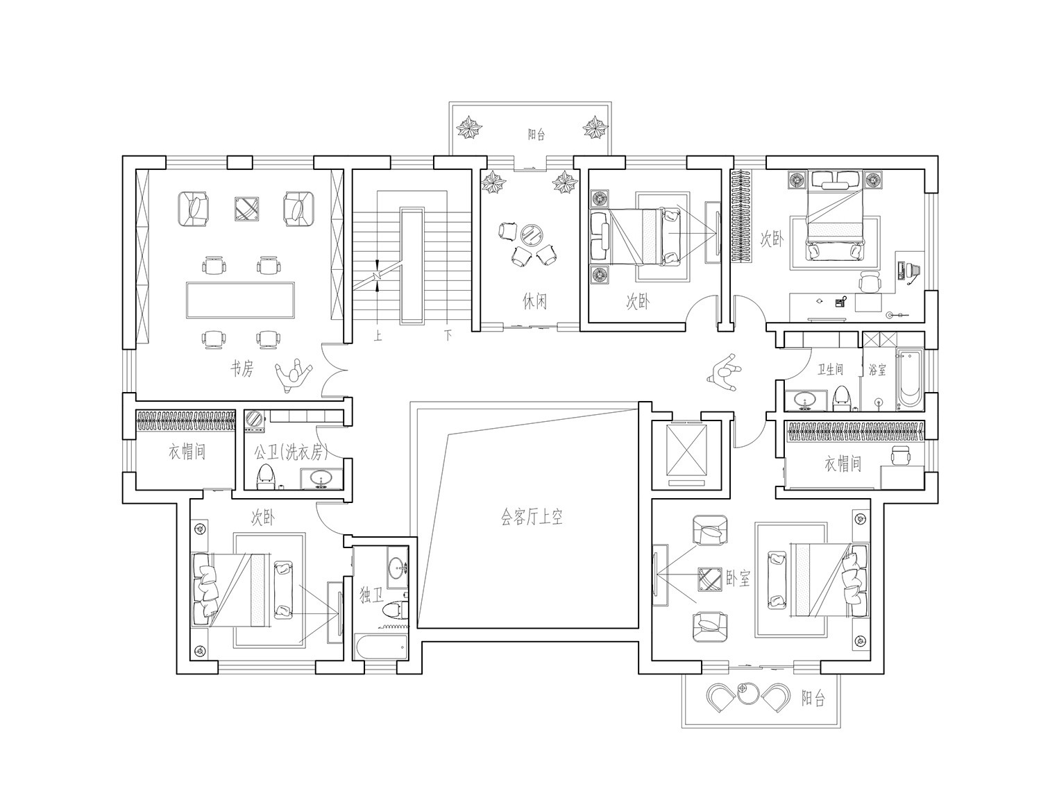
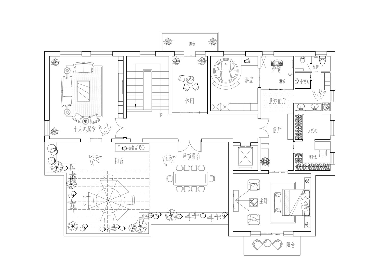
客厅、餐厅、厨房、卧室、公卫、阳台、露台。


。
转载请注明出自轩鼎自建房:://www.lemeizhai.com/