人就应该有自己放松的地方,在那里建一栋漂亮的小别墅,想舒心的时候就到别墅里住一住,缓解身上劳累与心理的疲劳。今天给大家推荐的是山东吕总私人订制的="://www.lemeizhai.com/search.asp?SearchType=Software&imageField.x=31&imageField.y=32&SearchKey=%D0%C2%D6%D0%CA%BD" target="_self">中式别墅设计二层小别墅,这套别墅简洁漂亮,中式元素也不显突兀,内部布局中规中矩,有阳光房,是一款休闲别墅。

别墅层数: 二层
别墅风格: 中式
占地面积:100㎡
开 间:10m
进 深:10m
建筑占地:10m×10m
建筑面积:179㎡
主体造价:22.0~27.0万
建筑结构:砖混结构


主体设计:

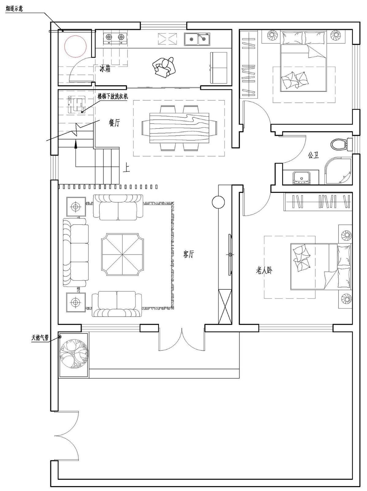
客厅、餐厅、厨房、卧室、公卫、阳台、露台。

。
转载请注明出自轩鼎自建房:://www.lemeizhai.com/