建新房是个值得开心事情,但先别急着建,想想建什么样的房子,到时候不要后悔,现代建新式房子的人越来越多,不如建一栋新式的农村自建房,虽然比传统房屋贵但舒适性却非常棒。今天推荐的="://www.lemeizhai.com/" target="_self" style="font-size: 18px; text-decoration: underline;">建房设计图是一款新中式一层自建房。

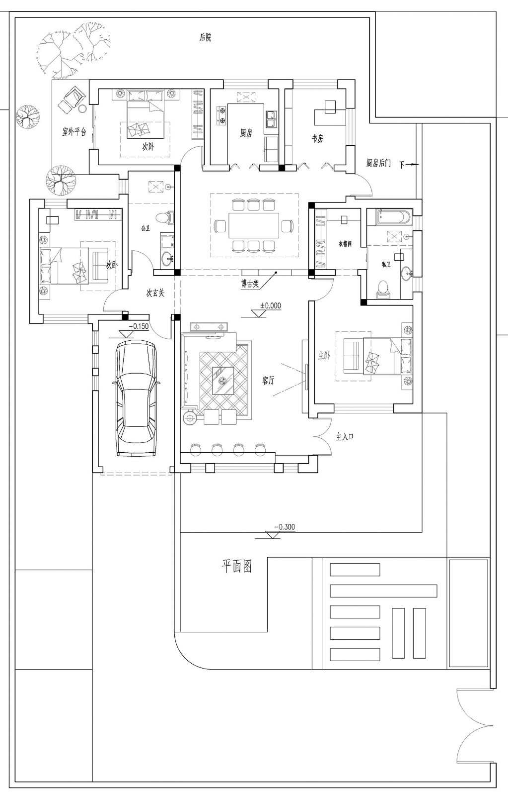
别墅层数: 一层
别墅风格: 现代
占地面积:249㎡
开 间:15.8m
进 深:15.8m
建筑占地:15.8m×15.8m
建筑面积:199㎡
主体造价:25.0~30.0万
建筑结构:框架结构


主体设计:
客厅、餐厅、厨房、卧室、公卫、阳台、露台。

。
转载请注明出自轩鼎自建房:://www.lemeizhai.com/