在农村有一套小院绝对是很多城里人的梦想,远离城市在乡村放松自己,好心情是好生活的象征,如果你有钱有房建一栋小别墅绝不是难事,早建早享受!今天给大家推荐钟总私人订制的="://www.lemeizhai.com/Picture.asp?PicClassID=88" target="_self">二层别墅设计,一款不错的欧式小别墅,最高主体造价47万左右。

别墅层数: 二层
别墅风格: 欧式
占地面积:192㎡
开 间:16m
进 深:12m
建筑占地:16m×12m
建筑面积:315㎡
主体造价:42.0~47.0万
建筑结构:砖混结构


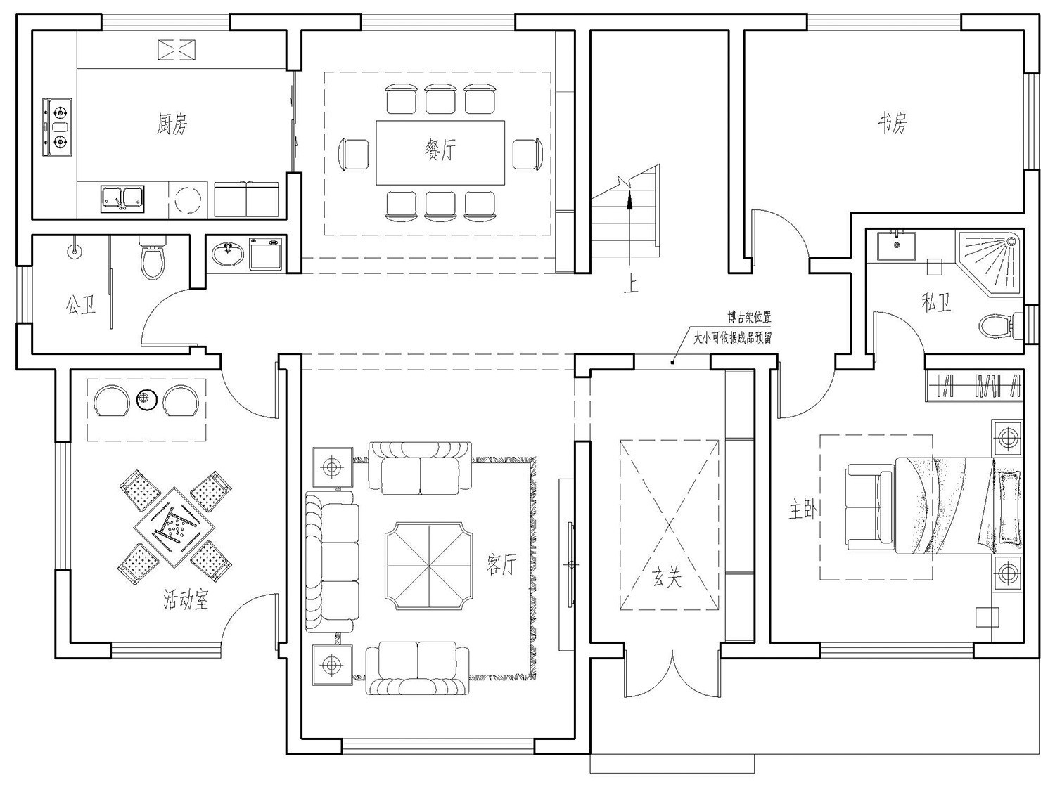
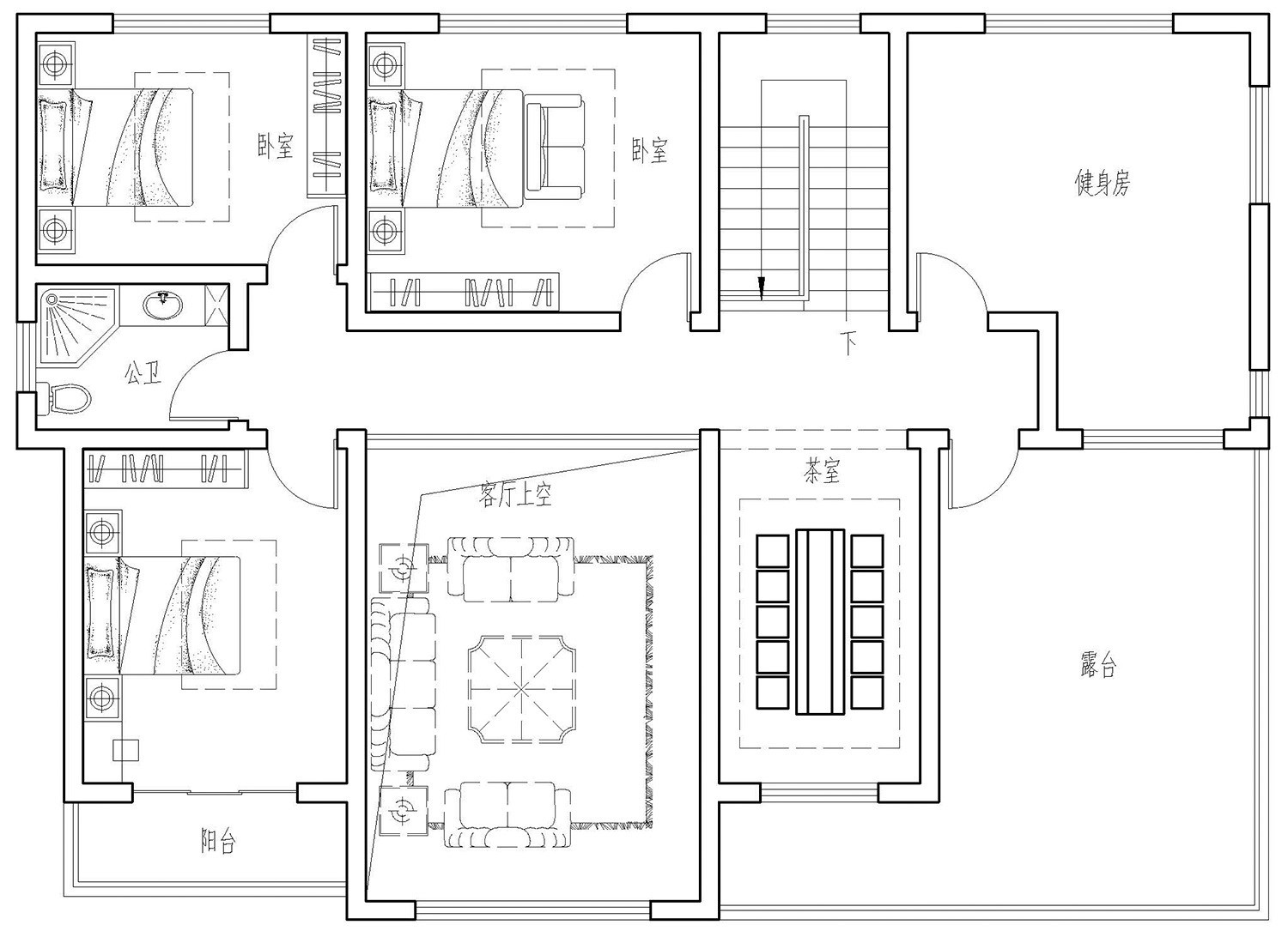
主体设计:

客厅、餐厅、厨房、卧室、公卫、阳台、露台。

。
转载请注明出自轩鼎自建房:://www.lemeizhai.com/