有人说农村建别墅都是为了面子,可我不这么认为,农村自建别墅是为了让自己住的更舒服,让家更有家的味道成为真正的安乐窝!人对舒适环境的追求永无禁止,能在农村建别墅绝对是幸福的。今天给大家推荐一款特别舒适的="://www.lemeizhai.com/Picture.asp?PicClassID=88" target="_self">二层别墅设计,房间设计合理,会客区和卧室区分开,非常舒适。

别墅层数: 二层
别墅风格: 现代
占地面积:219㎡
开 间:19.4m
进 深:11.3m
建筑占地:19.4m×11.3m
建筑面积:264㎡
主体造价:35.0~40.0万
建筑结构:砖混结构


主体设计:

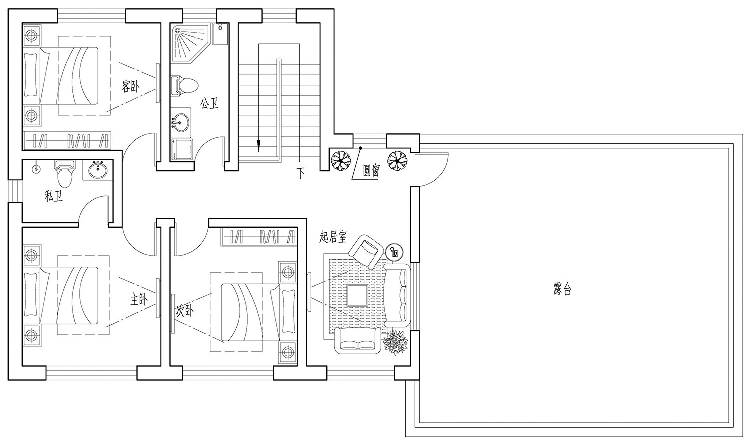
客厅、餐厅、厨房、卧室、公卫、阳台、露台。

。
转载请注明出自轩鼎自建房:://www.lemeizhai.com/