欧式别墅都觉得三层的别墅设计大气好看,但今天我就告诉你二层的欧式别墅设计也能大气好看,就比如这款二层别墅设计,米黄色外观配色高端,造型美观布局合理,卧室较多,适合人口较多的家庭居住,室内采光通风情况良好
图纸介绍:

别墅层数: 二层
别墅风格: 欧式
占地面积:206㎡
开 间:15.3m
进 深:13.5m
建筑占地:15.3m×13.5m
建筑面积:318㎡
预估造价:65.0万
建筑结构:砖混结构
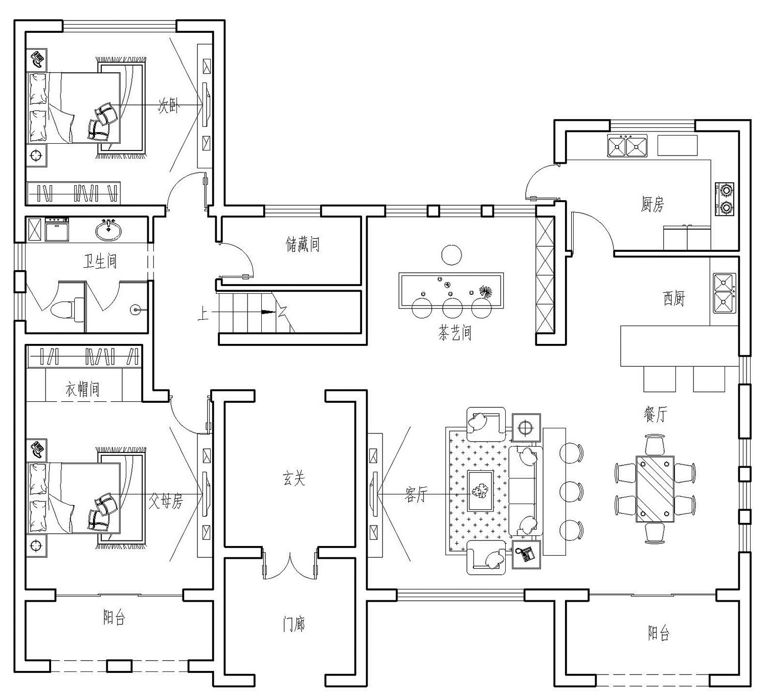
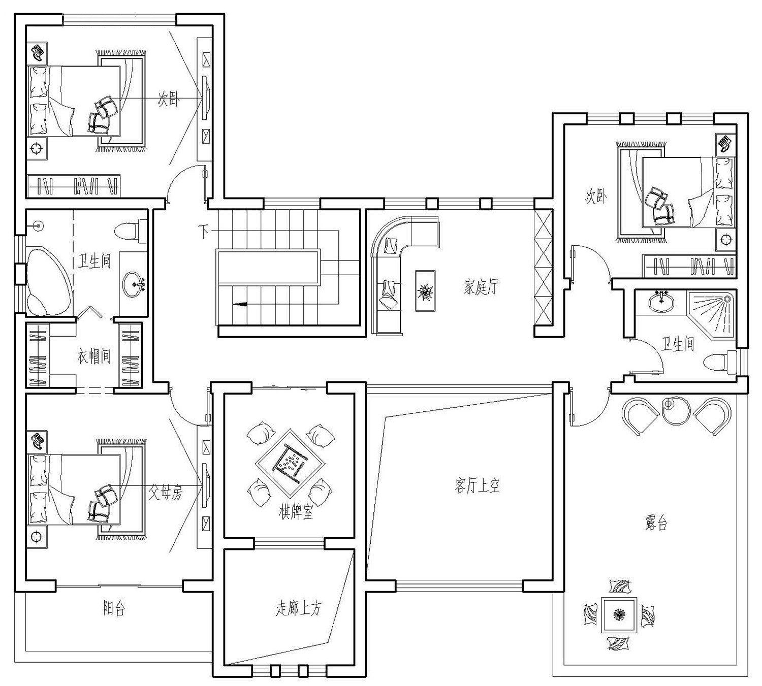
室内展示图:

主体设计:客厅、餐厅、厨房、卧室、公卫、阳台、露台。

。
转载请注明出自轩鼎别墅设计:://www.lemeizhai.com/index.asp