心气高的人一定不会差的,有心气能办大事,过得也比大部分人都舒服,而且儿女也幸福,人最主要的是相互理解家庭和睦,建一栋新房和家人一起平安度过每一天。今天给大家推荐一款="://www.lemeizhai.com/Picture.asp?PicClassID=88" target="_self">二层别墅设计,这款别墅有点像钱币的“币”向一边倾斜的屋顶非常有特点。这款房子能住下三代人非常适合普通家庭。

别墅层数: 二层
别墅风格: 中式
占地面积:263㎡
开 间:22.3m
进 深:11.8m
建筑占地:22.3m×11.8m
建筑面积:283㎡
主体造价:37.5~42.5万
建筑结构:砖混结构


主体设计:

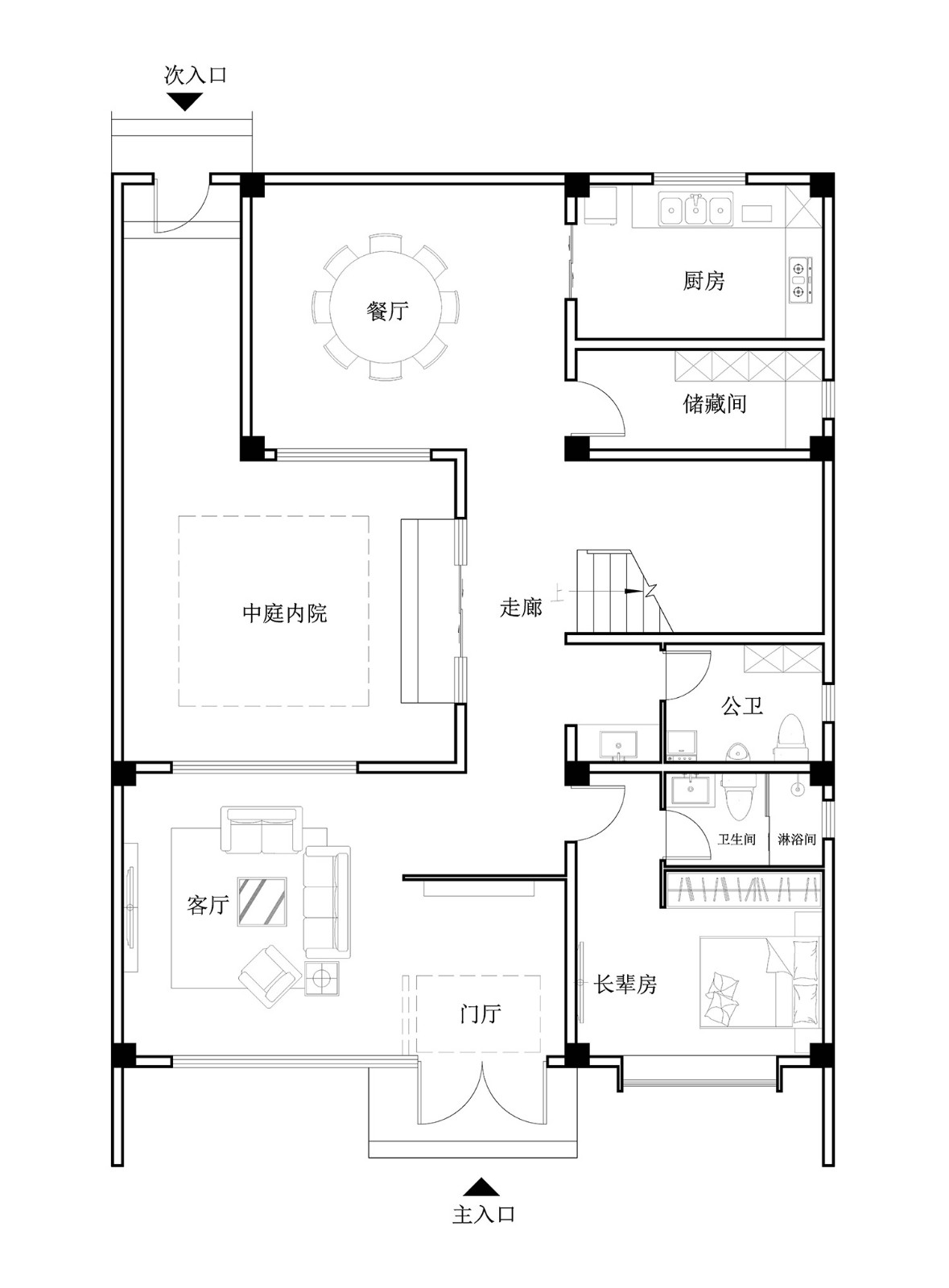
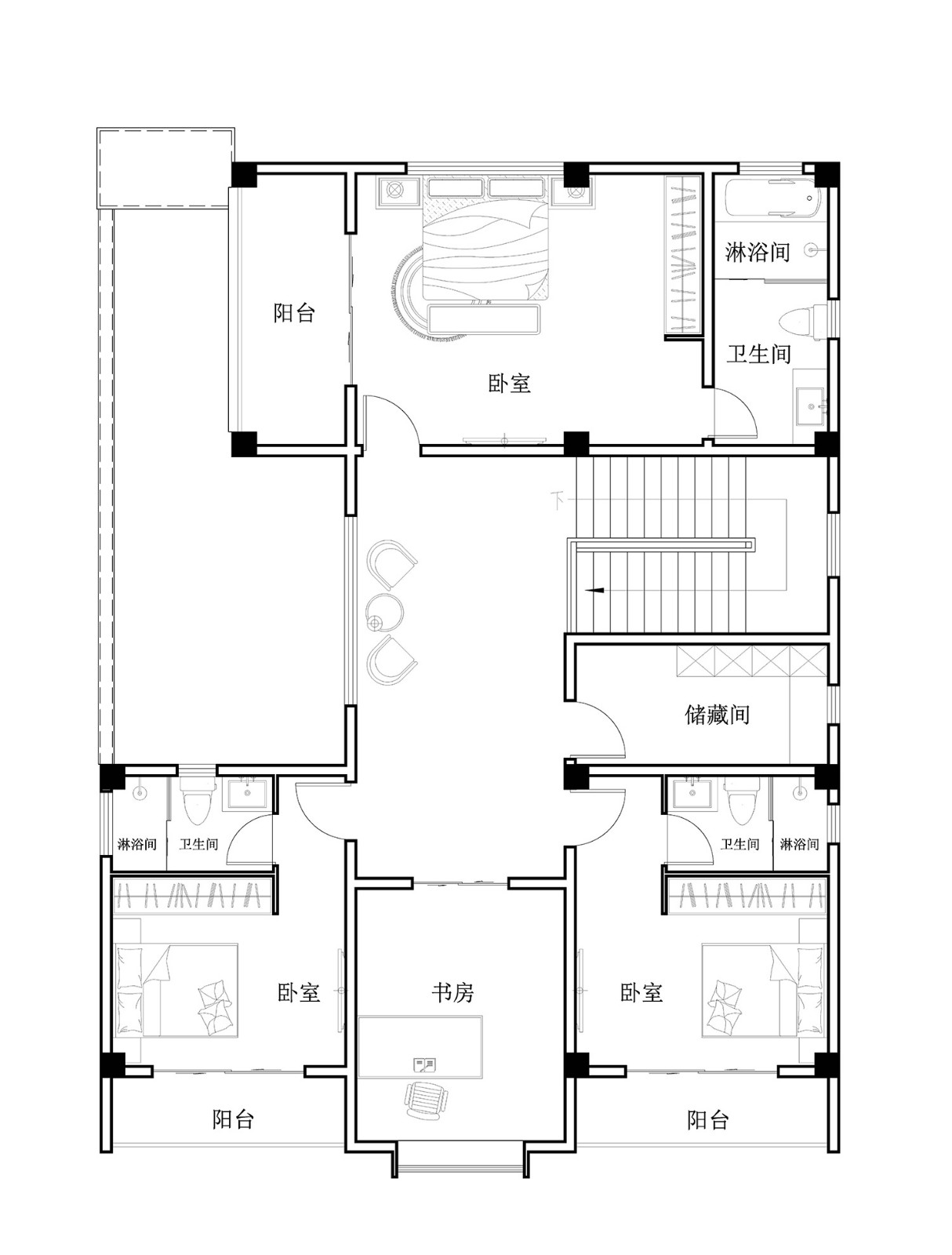
客厅、餐厅、厨房、卧室、公卫、阳台、露台。

。
转载请注明出自轩鼎自建房:://www.lemeizhai.com/