房子大才显得气派再简约的房子一大就气派,建一栋大房子绝对有面子,在村里别人也会高看你一眼,因此实力才是关键,有实力才能建那样的别墅。今天给大家推荐一款大气的农村="://www.lemeizhai.com/Picture.asp?PicClassID=88" target="_self" style="font-size: 18px; text-decoration: underline;">二层别墅设计,别墅大气简约一眼看去就觉得花这钱值!别墅造价最高81万左右


别墅层数: 二层
别墅风格: 欧式
占地面积:378㎡
开 间:18m
进 深:21m
建筑占地:18m×21m
建筑面积:477㎡
主体造价:76.0~81.0万
建筑结构:框架结构


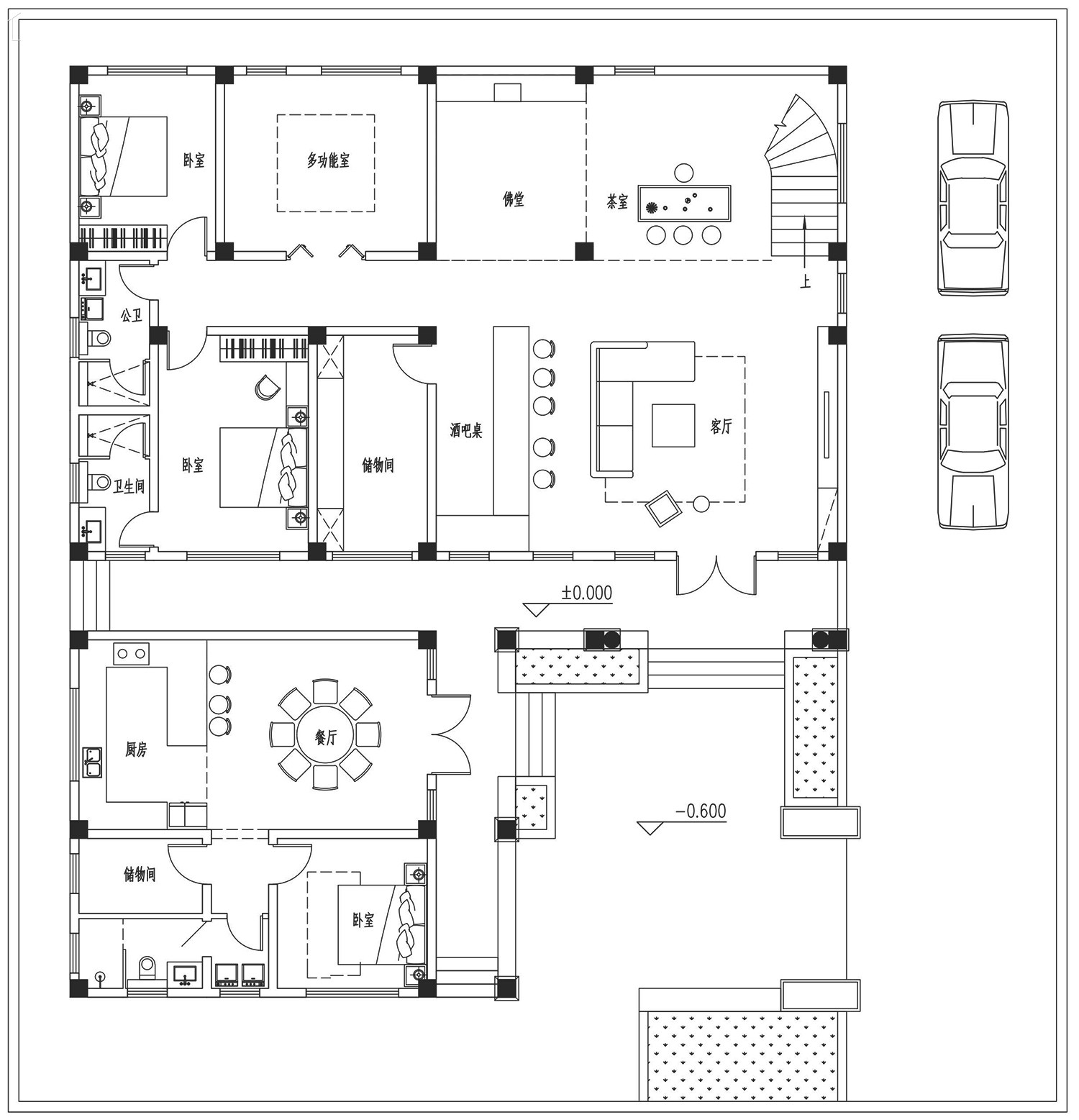
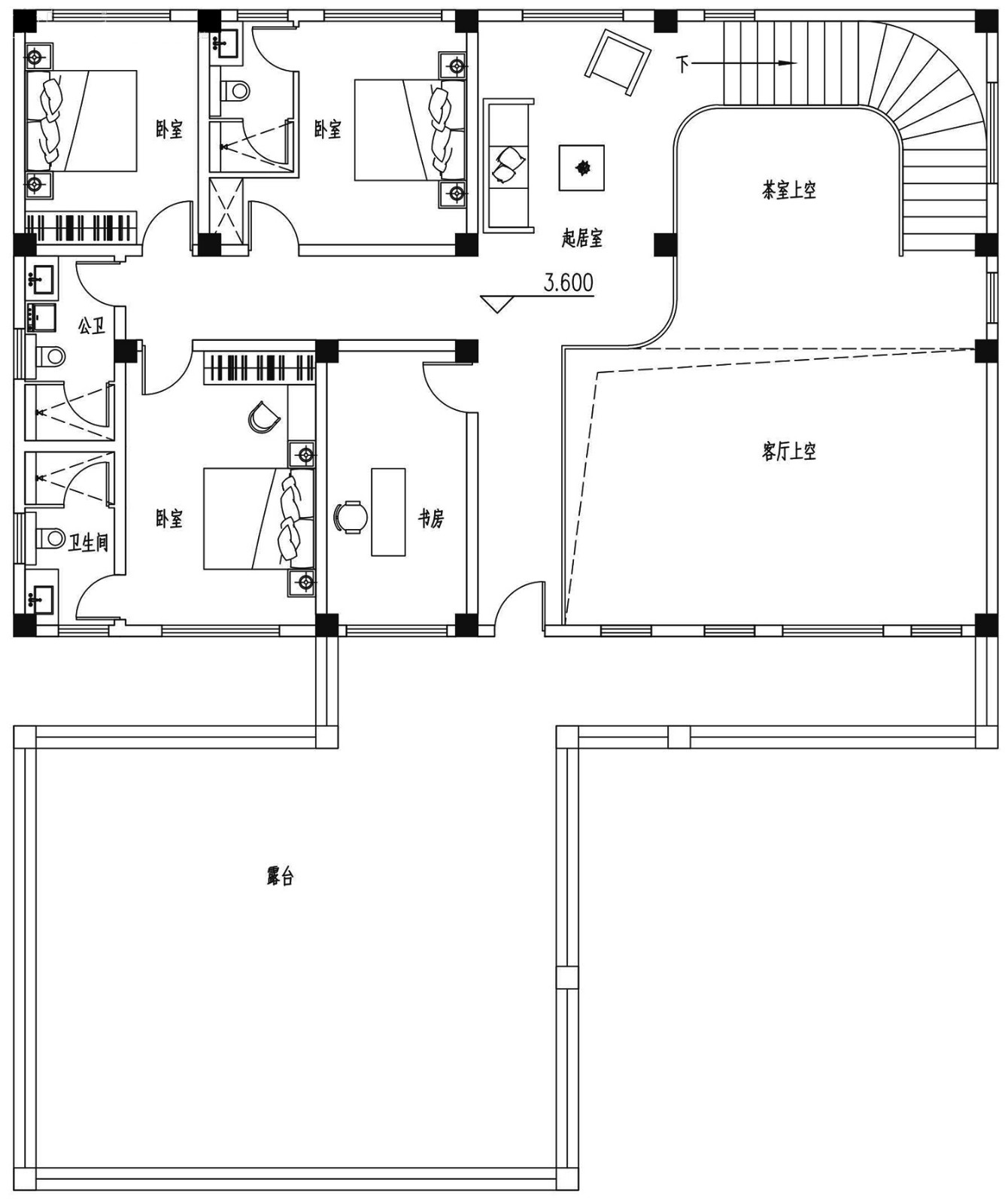
主体设计:

客厅、餐厅、厨房、卧室、公卫、阳台、露台。

。
转载请注明出自轩鼎自建房:://www.lemeizhai.com/