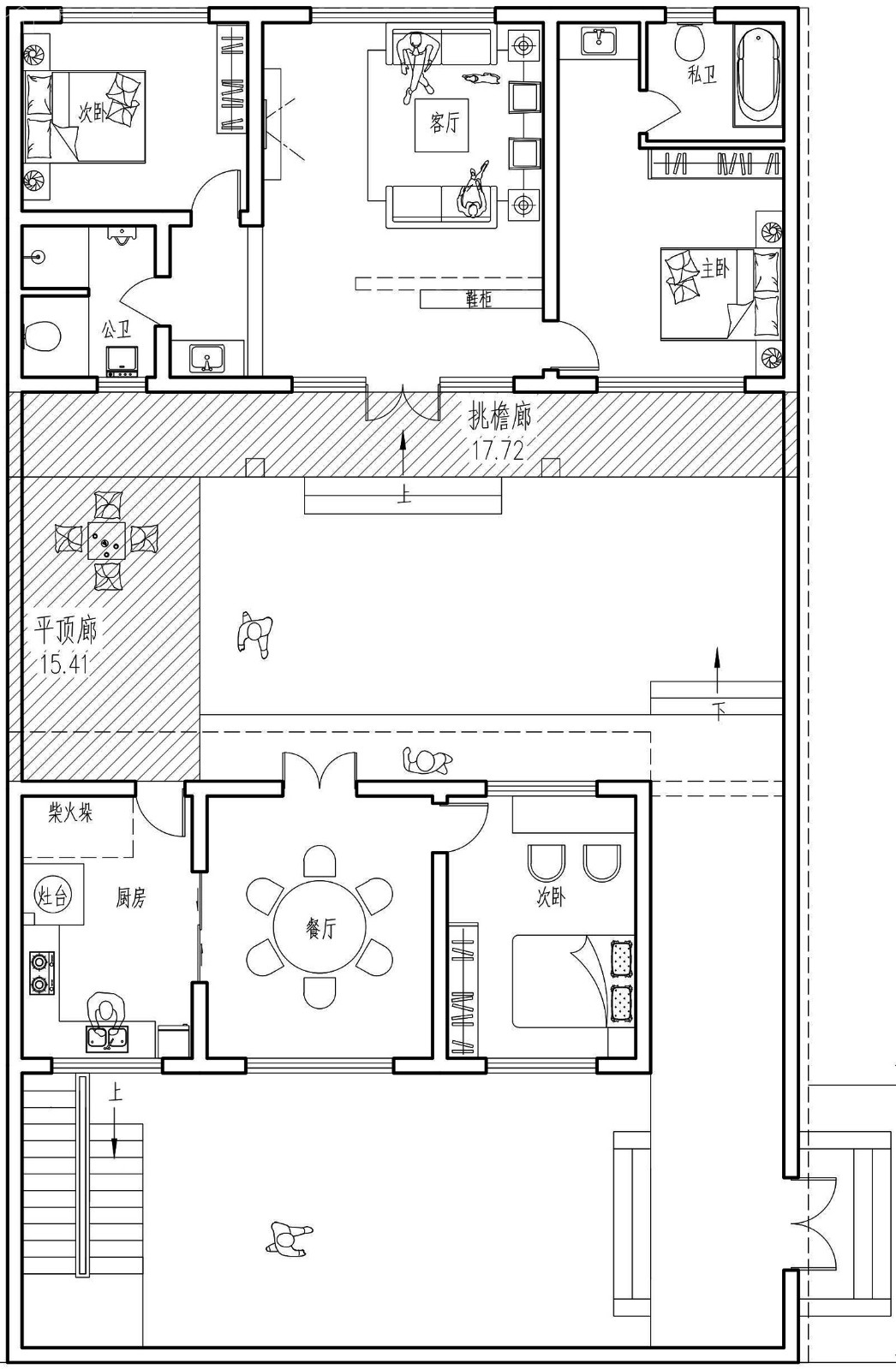
置一小院夏天吃瓜观星,和亲朋好友谈古论今好不快活,最幸福的是儿女双全陪伴身边,这样的生活很多人都羡慕不已,农村有房真不错哈哈。今天推荐的是一款合院式="://www.lemeizhai.com/Picture.asp?PicClassID=85" target="_self">农村自建房一层设计图,这样的自建房非常漂亮,房间正好,厨房单独设计。

别墅层数: 一层
别墅风格: 中式
占地面积:286㎡
开 间:13m
进 深:22m
建筑占地:13m×22m
建筑面积:146㎡
主体造价:18.0~23.0万
建筑结构:砖混结构


主体设计:
客厅、餐厅、厨房、卧室、公卫、阳台、露台。

。
转载请注明出自轩鼎自建房:://www.lemeizhai.com/