很多城里人都羡慕农村人能建小别墅,那是因为城里人不能买农村的房屋,地是国家的集体的所有不能随便卖,所以农村建房只能是我们的特权。今天给大家推荐一款适合大部分人建造的="://www.lemeizhai.com/Picture.asp?PicClassID=88" target="_self">二层别墅设计,最高造价50万左右,整体低调好看,没有繁杂的花纹只有简单的线条勾勒,内部空间宽敞非常漂亮,适合老人居住。

别墅层数: 二层
别墅风格: 欧式
占地面积:161㎡
开 间:13.6m
进 深:11.9m
建筑占地:13.6m×11.9m
建筑面积:301㎡
主体造价:45.0~50.0万
建筑结构:砖混结构


主体设计:

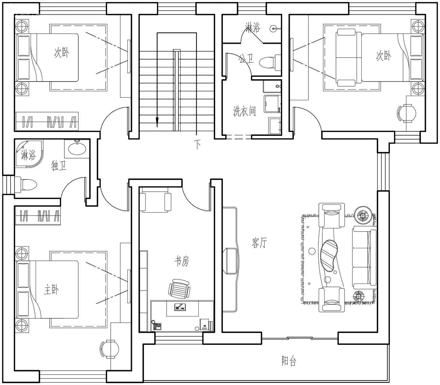
客厅、餐厅、厨房、卧室、公卫、阳台、露台。

。
转载请注明出自轩鼎自建房:://www.lemeizhai.com/