农村建房有设计图和没设计图的房子效果差别很大,没有设计图建出来的房子就是典型的农村房,没有太多的美感配色土气,而且有安全隐患不建议再建了。。但是设计图纸建造的房子不仅舒适外观漂亮,还能节约材料节省预算。今天带来一款农村二层欧式别墅。这款="://www.lemeizhai.com/Picture.asp?PicClassID=88" target="_self">二层别墅设计一般的家庭都能建,最高造价54.0万


别墅层数: 二层
别墅风格: 新中式
占地面积:194㎡
开 间:13.8m
进 深:14.1m
建筑占地:13.8m×14.1m
建筑面积:346㎡
主体造价:54.0万
建筑结构:砖混结构


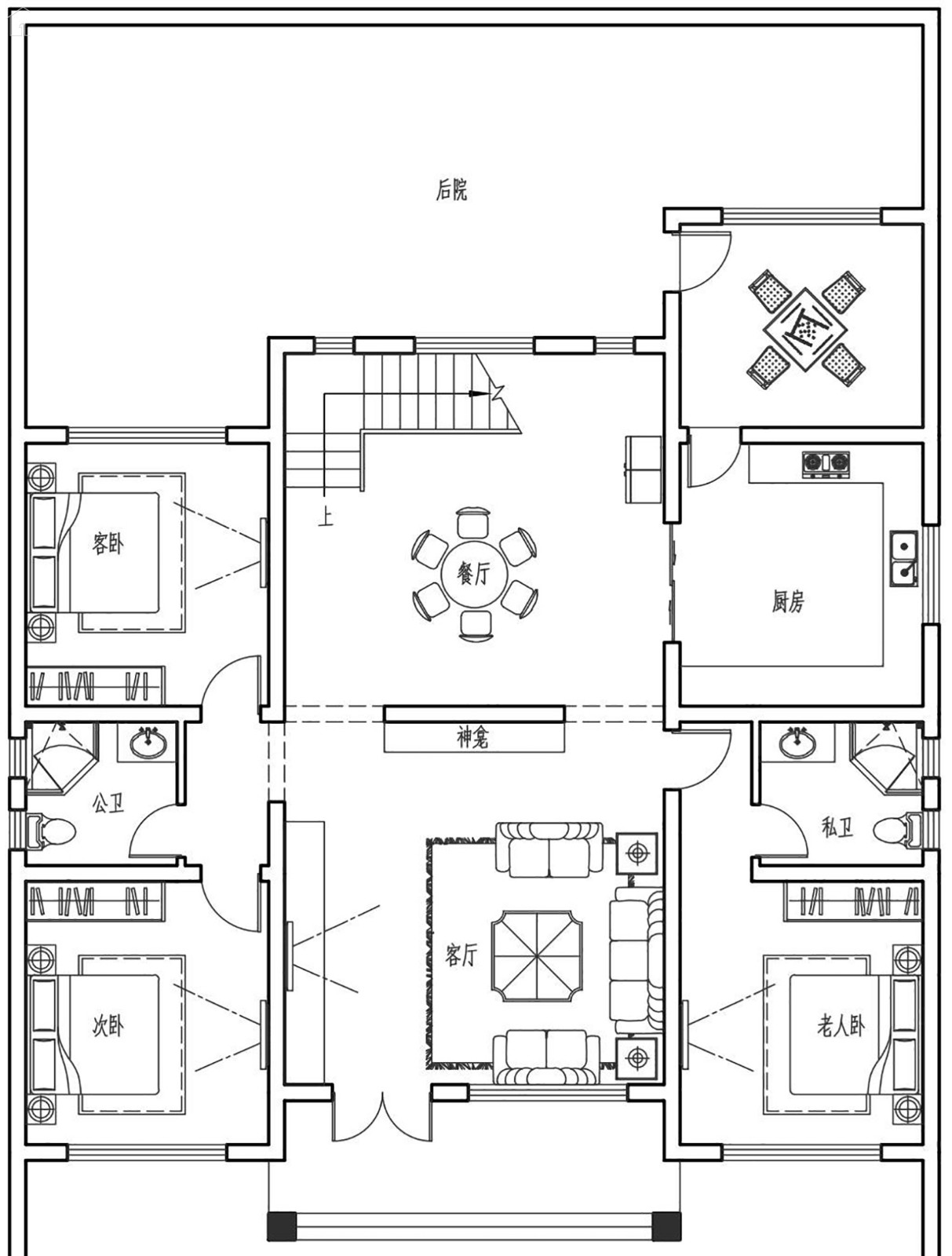
主体设计:

客厅、餐厅、厨房、卧室、公卫、阳台、露台。

。
转载请注明出自轩鼎自建房:://www.lemeizhai.com/