有时真的羡慕农村的朋友,不仅吃的是绿色的食物,而且还能自己建房子,虽然农村很苦但这两点怎能不令人羡慕?至少住的比城里人舒服,某些地方甚至还住上了别墅,而且建的一栋比一栋豪华。今天给大家推荐浙江温总私人订制的="://www.lemeizhai.com/Picture.asp?PicClassID=88" target="_self">二层别墅设计方案,这套方案非常大气豪华内部空间非常大!住在里面肯定很舒服
效果图:

别墅层数: 二层
别墅风格: 欧式
占地面积:186㎡
开 间:14.6m
进 深:12.8m
建筑占地:14.6m×12.8m
建筑面积:338㎡
主体造价:45.0~50.0万
建筑结构:框架结构
效果图:




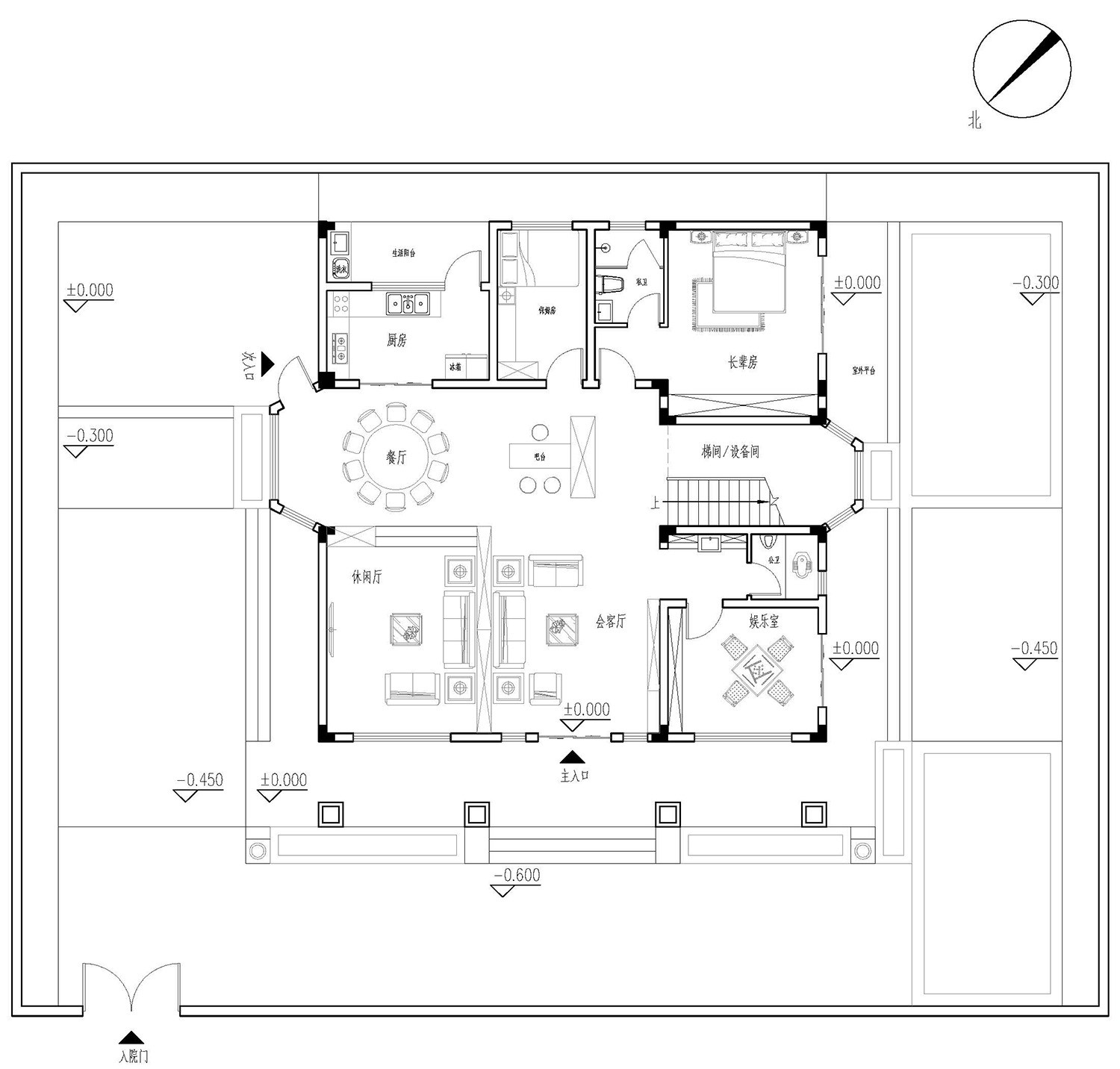
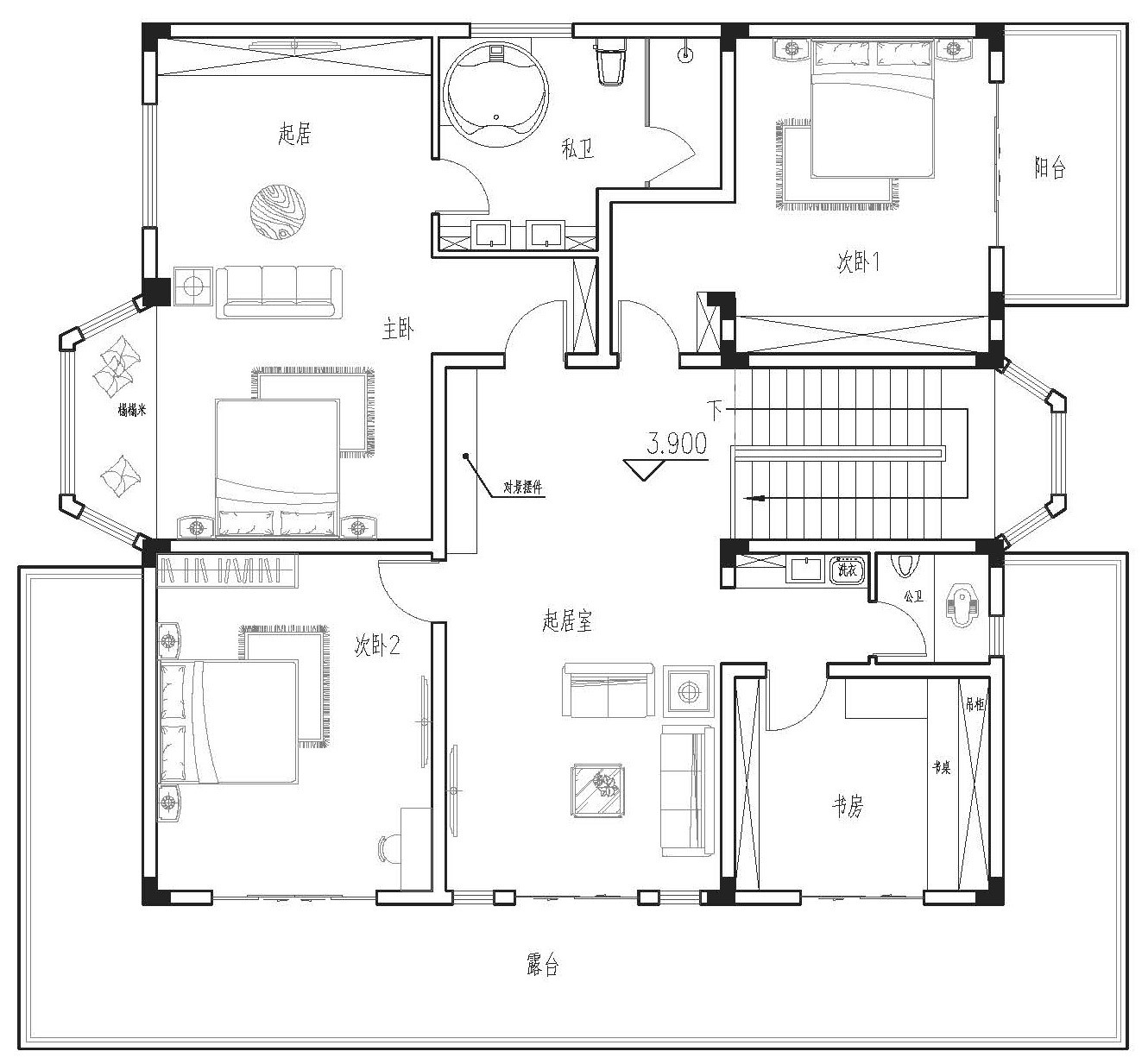
主体设计:

客厅、餐厅、厨房、卧室、公卫、阳台、露台。

。
转载请注明出自轩鼎自建房:://www.lemeizhai.com/