近年来现代风格逐渐成为了农村建房的流行款,生动布局特点和建筑线条深受到当代青年的喜爱,要想建一栋舒适大气的现代别墅可不是件容易事,那么如何根据自家条件,建一栋舒适的现代别墅呢?只有定制设计才能满足您的要求,自己喜欢才重要您说是不是?今天给大推荐一款现代别墅="://www.lemeizhai.com/Picture.asp?PicClassID=91" target="_self" style="font-size: 24px; text-decoration: underline;">三层别墅设计,这款别墅豪华大气非常舒适房间特别多,最高造价197.0万

别墅层数: 三层
别墅风格: 现代
占地面积:493㎡
开 间:29m
进 深:17m
建筑占地:29m×17m
建筑面积:1189㎡
主体造价:197.0万
建筑结构:框架结构


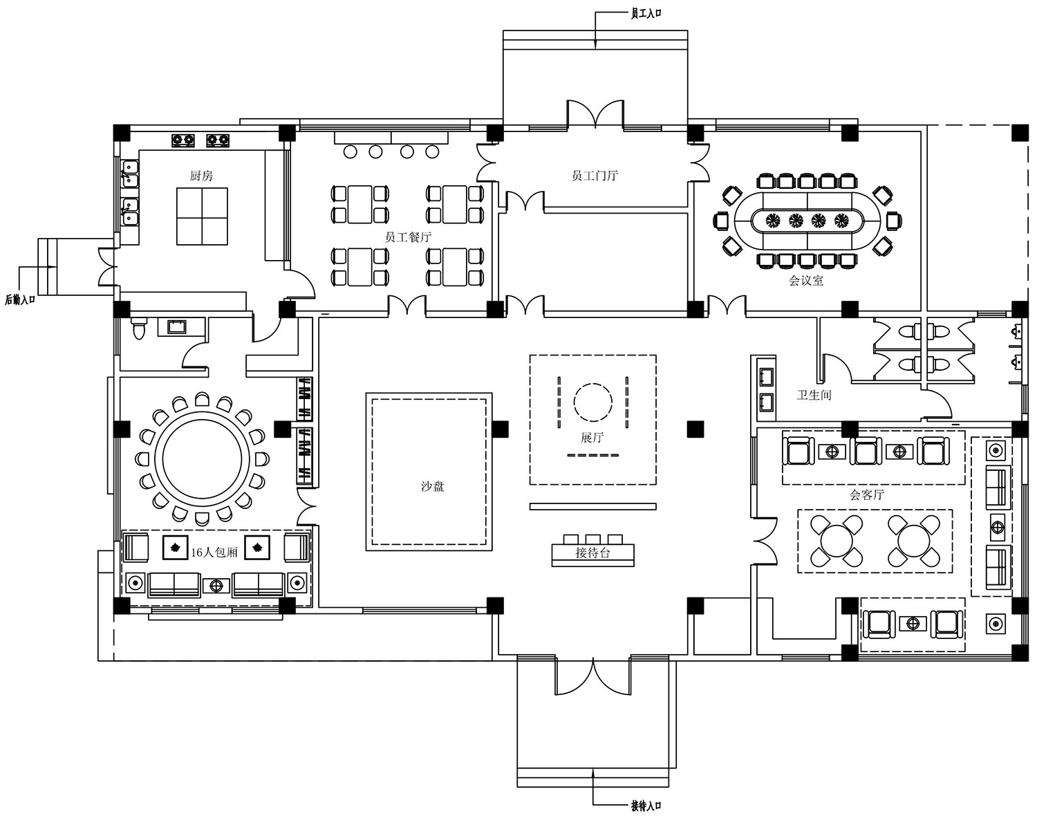
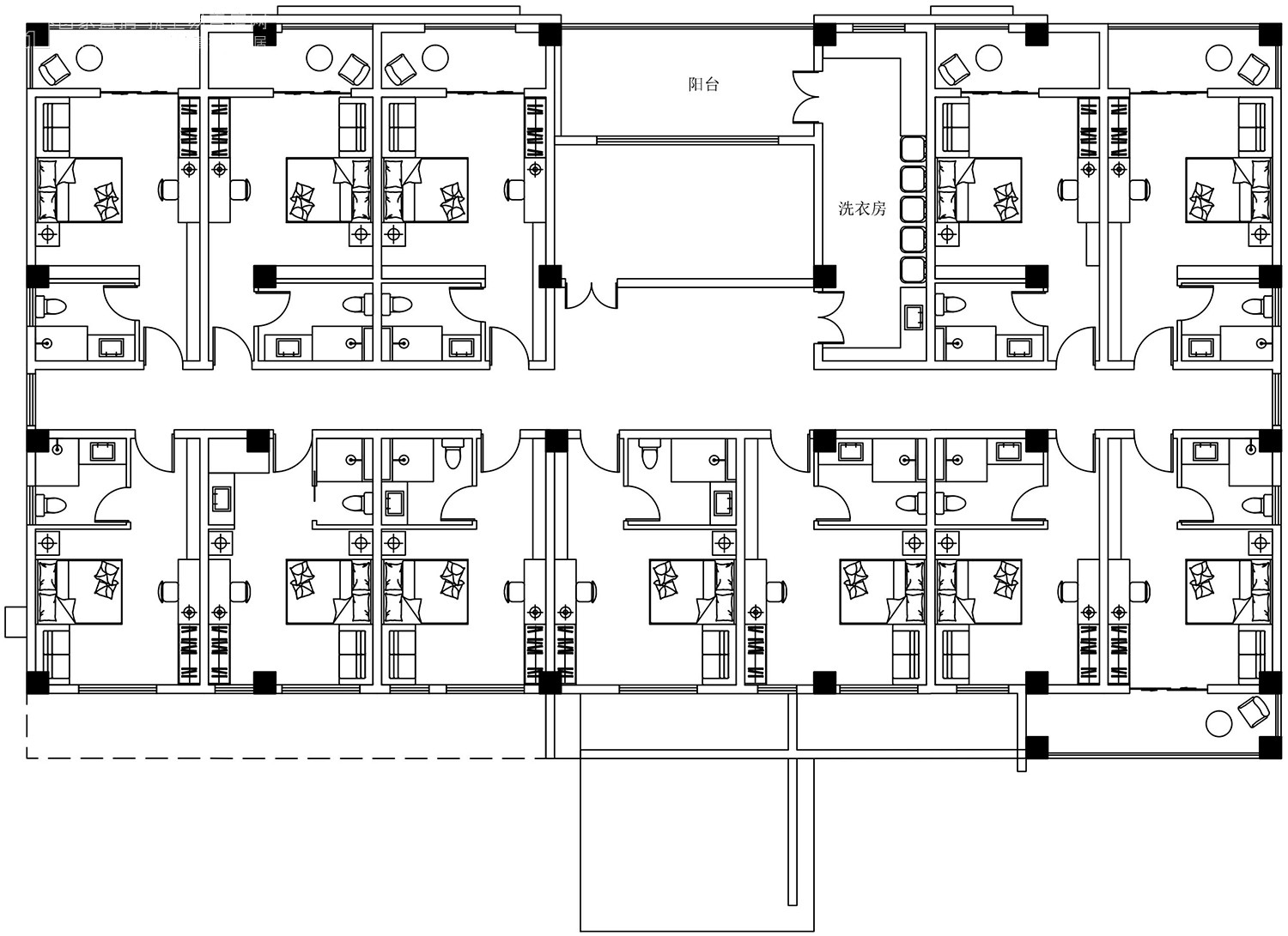
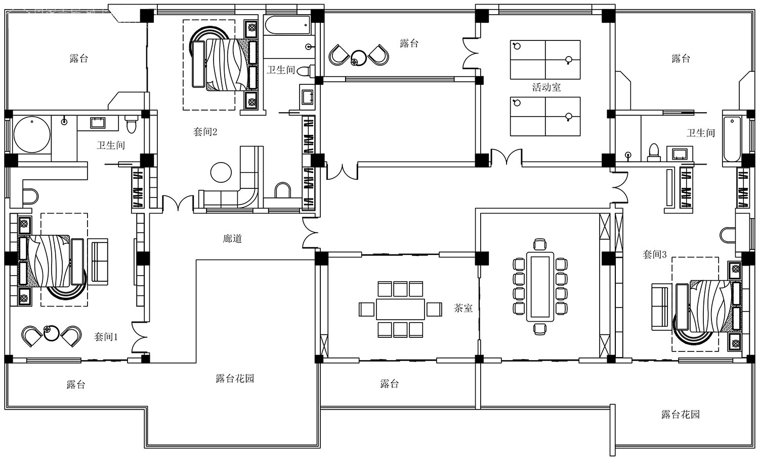
主体设计:

客厅、餐厅、厨房、卧室、公卫、阳台、露台。

。

转载请注明出自轩鼎自建房:://www.lemeizhai.com/