中式房屋现在建一套不再是繁复昂贵。而是传统与现代结合,飞檐翘壁、白墙灰瓦、是所有中式自建房设计样板,在这样的房子里住着仿佛置身于桃花源。今天给大家推荐一款大气的="://www.lemeizhai.com/Picture.asp?PicClassID=91" target="_self" style="font-size: 20px; text-decoration: underline;">三层别墅设计,妥妥的徽派样式,一层不是居住区,二层才是,这套别墅非常大不怕房间不够,够住。

别墅层数: 三层
别墅风格: 中式
占地面积:243㎡
开 间:18.9m
进 深:12.9m
建筑占地:18.9m×12.9m
建筑面积:607㎡
主体造价:105.0~110.0万
建筑结构:砖混结构


主体设计:

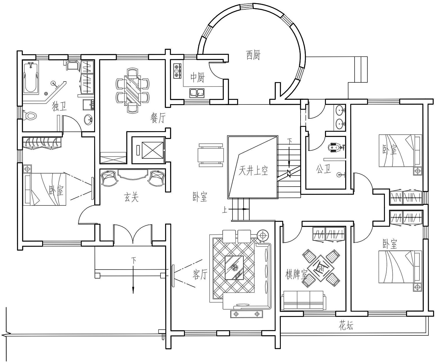
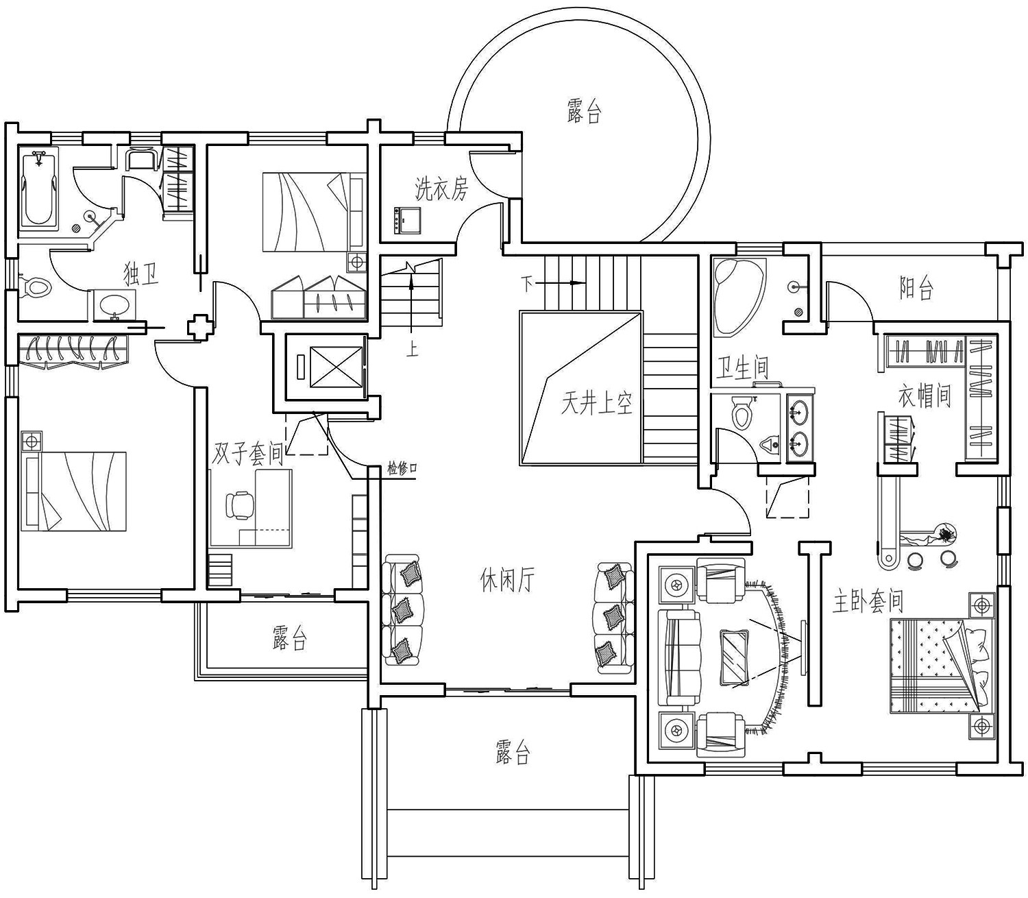
客厅、餐厅、厨房、卧室、公卫、阳台、露台。

。

转载请注明出自轩鼎自建房:://www.lemeizhai.com/