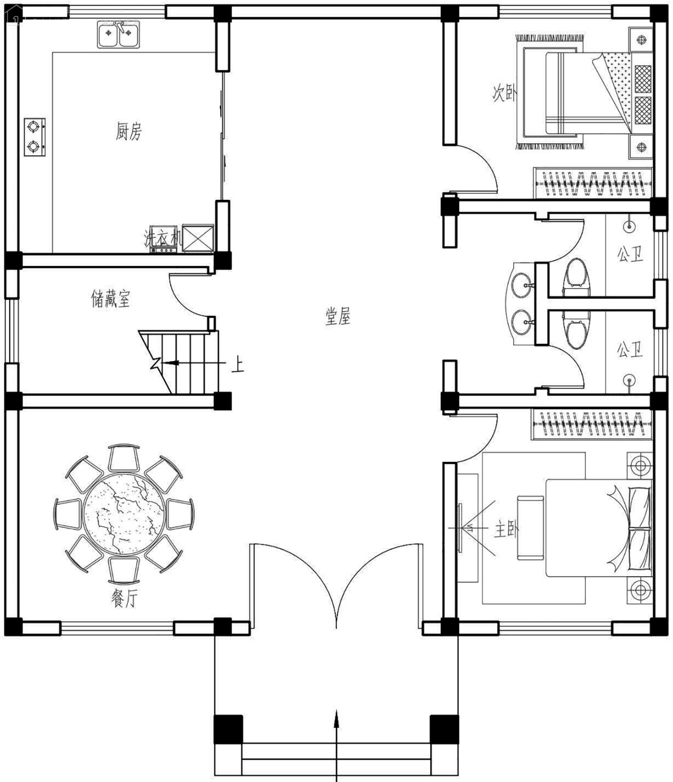
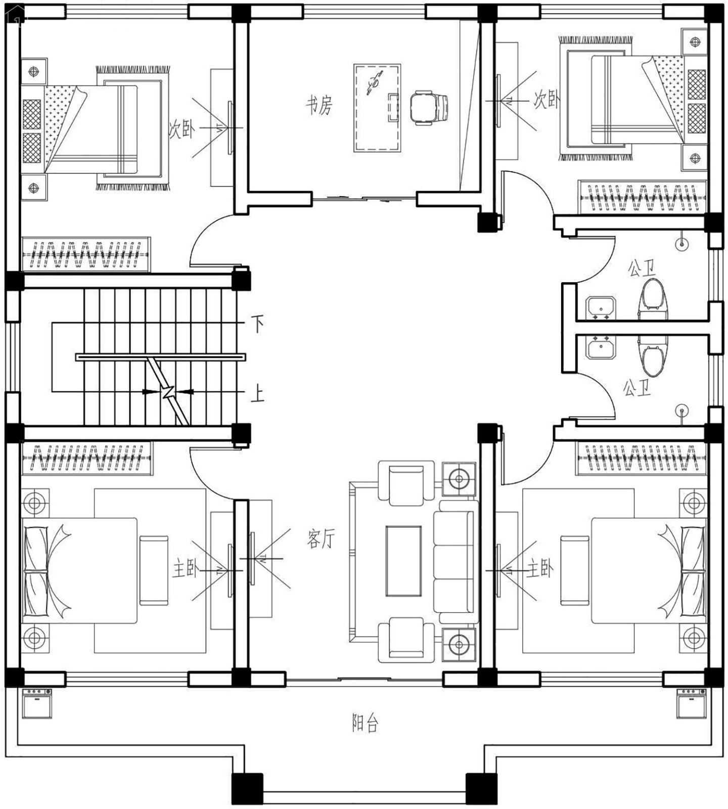
今天给大家推荐的是一款有着火红屋顶的三层欧式别墅,这样的="://www.lemeizhai.com/Picture.asp?PicClassID=91" target="_self">三层别墅设计非常好看,是框架结构的,进门就是堂屋共10个卧室,不是门丁兴旺的大家庭建不了这样的房子。

再来了解点农村自建房的知识吧。农村居民建房应当使用原有的宅基地和村内空闲地,能够利用劣地的不得占用好地,能够占用荒地的不得占用耕地,使用国有土地的必须办理出让手续。想 了解更多农村的政策,要多关注三农资讯,了解更多相关的法律知识,比如《中华人民共和国土地管理法 》-等一切有关这方面的法律法规。


别墅层数: 三层
别墅风格: 欧式
占地面积:136㎡
开 间:12m
进 深:11.4m
建筑占地:12m×11.4m
建筑面积:437㎡
主体造价:75.0~80.0万
建筑结构:框架结构

主体设计:

客厅、餐厅、厨房、卧室、公卫、阳台、露台。


。
转载请注明出自轩鼎自建房:://www.lemeizhai.com/