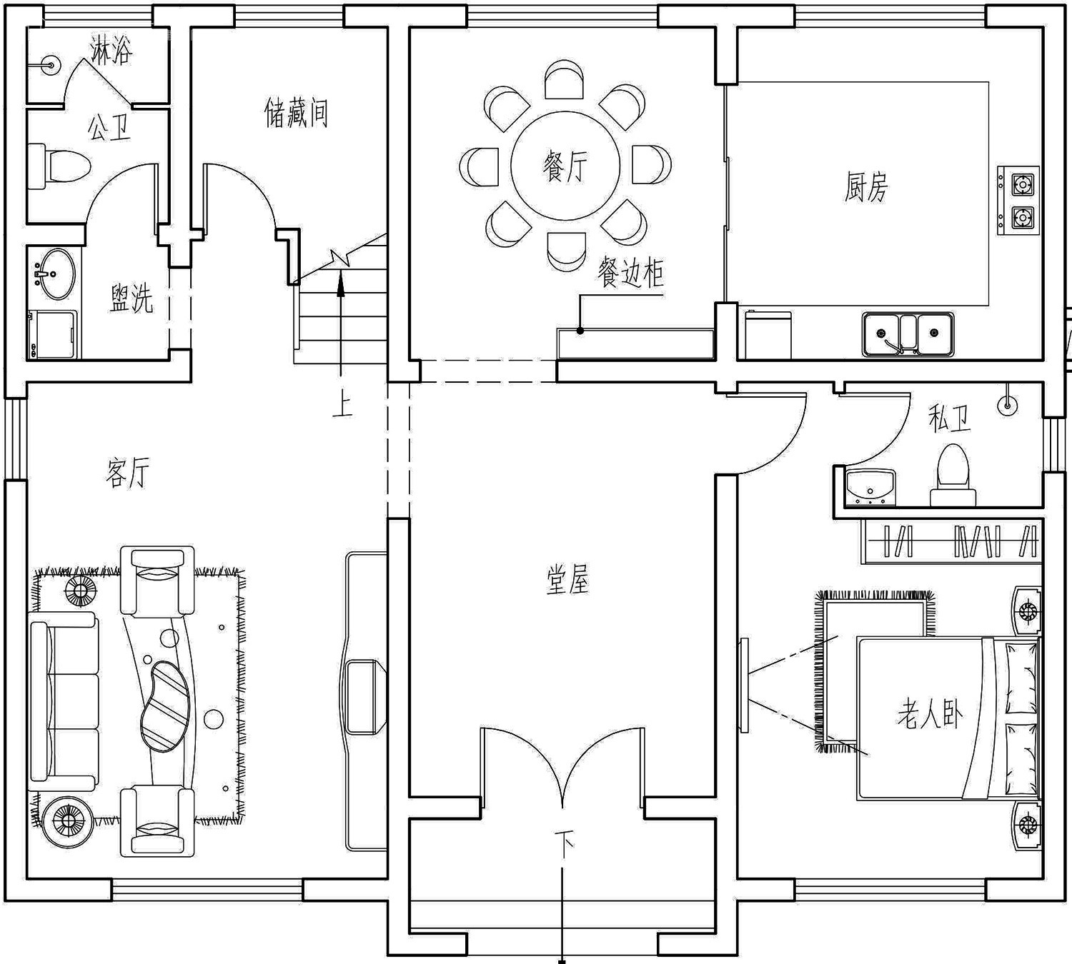
即使你的足迹踏遍祖国的大江南北,最想到的地方还是自己的安乐窝,人有情有义感情的力量是强大的,不论你是在何方家乡是永远遗忘不了的。今天的农村自建房就推荐 1套欧式风格的田园="://www.lemeizhai.com/Picture.asp?PicClassID=88" target="_self" style="font-size: 20px; text-decoration: underline;">二层别墅设计 , 这套别墅最高造价42万左右,火红的屋顶非常漂亮好看,这套别墅设计有堂屋,看着小房间特别多,一家5口住着不拥挤。

别墅层数: 二层
别墅风格: 欧式
占地面积:119㎡
开 间:11.4m
进 深:10.2m
建筑占地:11.4m×10.2m
建筑面积:258㎡
主体造价:37.0~42.0万
建筑结构:砖混结构


主体设计:

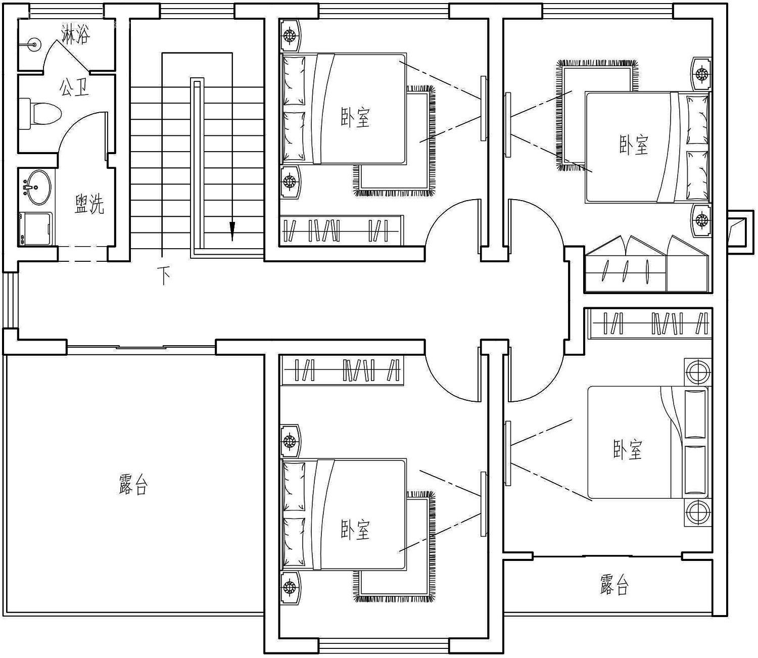
客厅、餐厅、厨房、卧室、公卫、阳台、露台。

。
转载请注明出自轩鼎自建房:://www.lemeizhai.com/