现代风格别墅,不同的设计方案
这座现代风格的两层住宅以其简洁的线条和明亮的色彩,展现了当代建筑设计的美学理念。
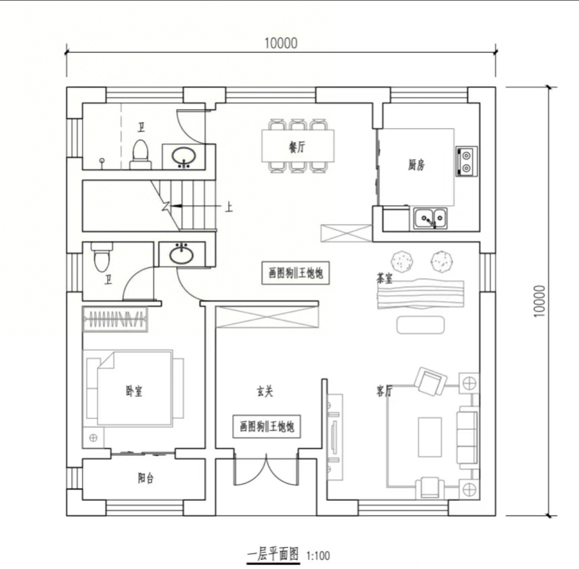
入口处设有玄关,紧接着是宽敞的客厅和餐厅,适合家庭聚会和日常休闲。
厨房位于餐厅旁边,便于烹饪和用餐。
一层还设有一间卧室和两个卫生间,方便家庭成员使用。

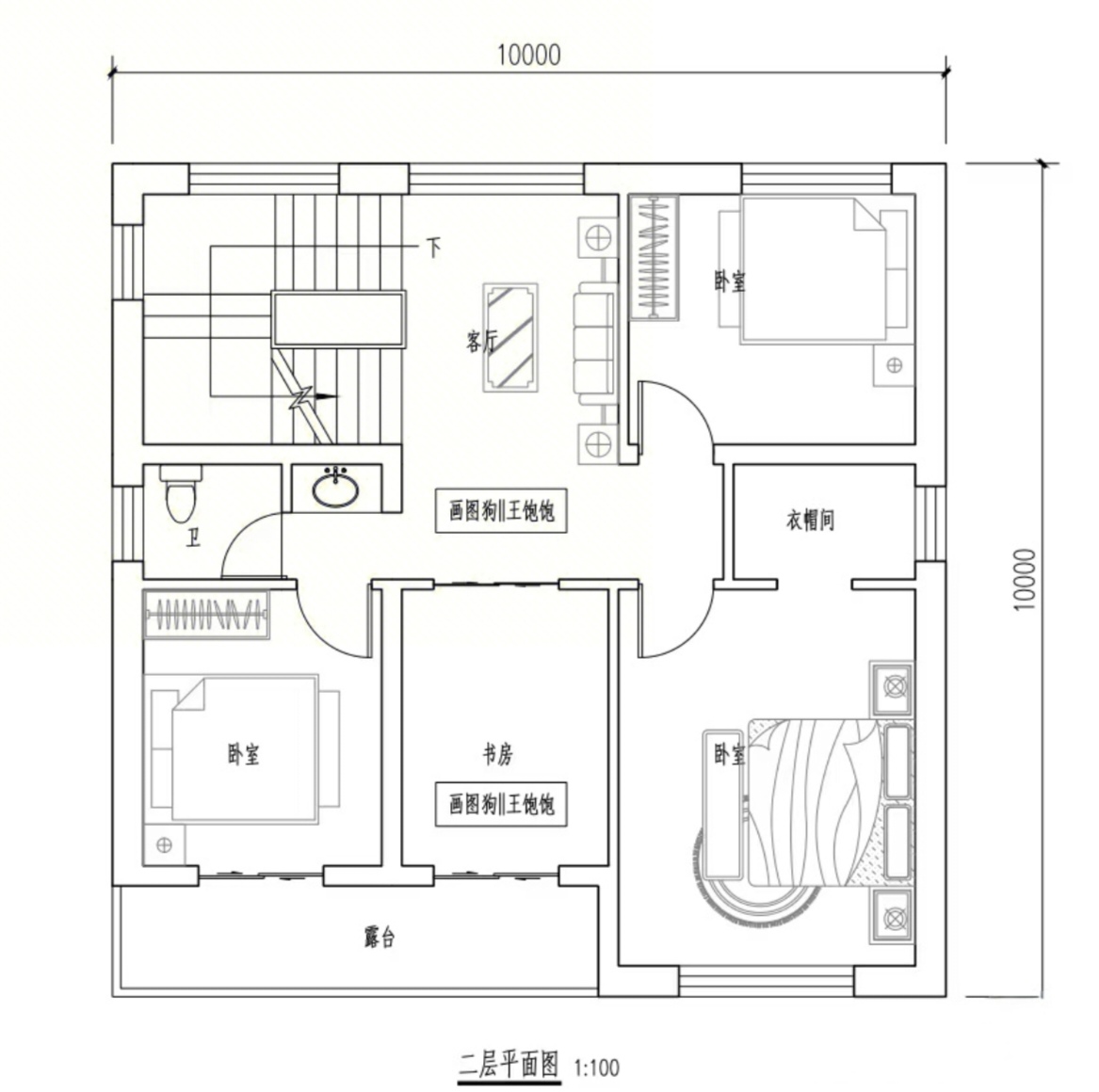
中央是起居室,适合家庭成员的休闲和交流。
两侧各有两个卧室,均配有独立卫生间,提供更多的私人空间。
此外,二层还设有书房和衣帽间,增加了居住的舒适性和实用性。露台的设计则为居住者提供了一个户外休闲的好去处。

整体来看,这座住宅的外形与内部设计相得益彰,既满足了现代家庭对居住空间的多功能需求,又保持了建筑的美观和实用性。无论是外观设计还是内部布局,都体现了设计师对居住舒适度和生活便利性的深刻理解。
- 转载请注明
="://www.lemeizhai.com/8848/admin.asp" target="_self">://www.lemeizhai.com/8848/admin.asp