您好,欢迎访问轩鼎房屋图纸网,轩鼎建筑为您提供新农村房屋设计图、别墅设计图纸以及别墅定制设计与咨询服务。
 
 
  热门搜索:自建房 别墅设计 房屋设计图   
网站首页 图纸大全 定制设计 作品展示 建房图文 联系我们
一层房屋图纸
二层房屋图纸
三层房屋图纸
四层以上图纸
双拼房屋图纸
其他建筑图纸
 
 
 您的位置:首页 ->> 建房图文 ->> 水是家乡甜,月是故乡明,109平欧式别墅房屋设计图,31万建一栋
 
 

水是家乡甜,月是故乡明,109平欧式别墅房屋设计图,31万建一栋

发布时间:2022/7/6 16:29:33 点击数: 1642次 

建房不一定要追求华丽的外表,建一栋舒适安心的别墅,让一家人团聚在一起,这样的房子,就是外出已久的游子永远的归宿。

下面这款是私人定制的三层欧式别墅,占地109平,布局实用性强,居住十分惬意。

ffa353be24df42e99bf87693ac9a6368_magic.jpg


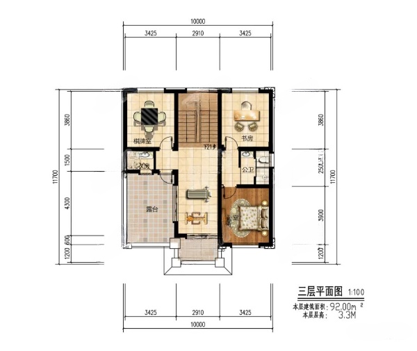
1、别墅层数:三层

2、主体毛坯参考造价:31-41万

3、占地面积:109平方米

4、建筑面积:310平方米

5、开间10米,进深11.7米

6、异型框架结构,建筑高12.732米


全屋展示图



平面布局图



 
· 可以三代人同时居住的简欧别墅设...
· 农村别墅建别墅就应该建居家休闲...
· 板房和塔房的区别(塔楼和板楼哪...
· 空调网拆下来后怎么安装(空调滤...
· 展示两种不同风格的房屋设计
· 二层别墅设计​,建一栋在...
· 现代双层别墅设计,大庭院和水景...
· 竹柏的养殖方法(日常家庭中竹柏...
  关于我们 网站事务 帮助中心
客服热线:400-079-6579
客服QQ:10928711 10928755 10928799
地址:山东省潍坊财富大厦1801
 

预定须知
顾客必读
配送方式

 


Copyright 2016 www.lemeizhai.com All Rights Reserved ICP备案序号:鲁ICP备2026012448号-1
轩鼎房屋图纸 电 话:0536-3385581 3385582 传 真:0536-3385581 地 址:山东省潍坊财富大厦1801


keywords:房屋设计图 房屋设计图 农村房屋设计图 农村房屋设计图 建房图文