返乡建房建那种小平房太寒酸了,建别墅才是正道,建一栋豪华霸气的别墅别提多有面子了,家乡有一栋好房子返乡才能风光。自建别墅也就三四十万,虽然这只是主体造价但不算贵,就算好几百万相信各位也能出得起。好房不怕贵嘛
今天这款外观华丽的三层别墅是周总特别定制的,主体造价30----50万,大部分人都能负担得起。
别墅效果图:

户型基本信息:
1. 开间:12.2米
2. 进深12.7米
3. 占地面积145平方米
4. 建筑面积385平方
5. .编号ZN2019S26
别墅整体漂亮美观, 后立面是通透的大窗,便于通风,后门可以通向院子,出入更方便。人字型的入户门厅,线条非常流畅,与二楼的阳台相对应,层次分明。
镜像图:

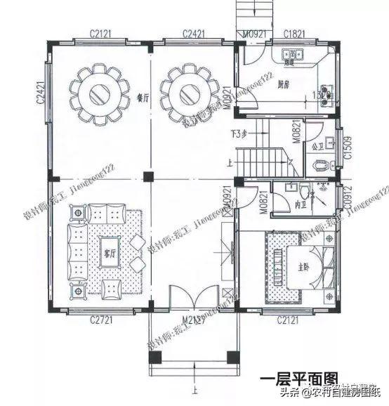
室内布局设计:
一层:

进门是大厅和客厅,非常宽敞,适合农村待客与生产。主卧室带有内卫方便家里的老人。两个餐厅,可以根据需求,改做卧室或娱乐室。
二层:

设计非常注重舒适性,每间卧室都带有卫生间,另有书房、娱乐室和起居室。
三层:

2间卧室带卫生间,屋顶露台,非常大,做个屋顶花园非常的舒适。
转载请注明出自轩鼎别墅设计://www.lemeizhai.com/